Dvosoban stan na prodaju, Crveni Krst, 135.100€, 57m²


135.100 €
2.370 € / m2
- Stan u zgradi
- Grejanje na struju
- Novo
- Prostorije: terasa
- Opremljenost: Prazno - interfon
- Oglas oglašava agencija pod reg. brojem 2068
- 1 lift
Opis oglasa
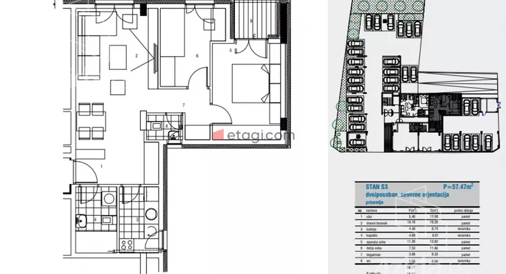
Prodaje se stan u novogradnji, površine 57,47m² po strukturi dvosoban koji se nalazi u prizemlju stambene zgrade sa liftom i internetom. Zgrada je građena po savremenim standardima i namenjena je dugoročnom i kvalitetnom stanovanju.
Stan je funkcionalnog rasporeda, prostorije su pravilnih oblika i omogućavaju racionalno korišćenje prostora. Završna obrada obuhvata kvalitetne materijale, uključujući parket i keramiku, sigurnosna ulazna vrata, savremenu stolariju i opremljeno kupatilo.
Nekretnina je pogodna kako za porodično stanovanje, tako i kao investicija za izdavanje.
Stan poseduje udernu dokumentaciju i moguća je kupovina putem stambenog kredita.
U neposrednoj blizini objekta na samo par minuta hoda nalaze se: vrtić, škola, prodavnice, park, javni prevoz, kao i mesta za opuštanje i uživanje.
Više informacija o ovoj ponudi možete dobiti pozivom na broj
061... (prikaži broj telefona)
i
018... (prikaži broj telefona)
.
Agencija ETAGI NEKRETNINE DOO je upisana u registar posrednika pod rednim brojem 2068.
*Sačuvaj oglas uz belešku i primaj obaveštenja o njihovom pojeftinjenju ili pojavljivanju sličnih
Prikaz stana na mapi
Kontakt oglašivača
Krediti OTP banke
Saznaj više
Prikazana rata odnosi se na maksimalni period otplate. Kalkulator je informativnog karaktera.
* Nakon isteka 5 godina, prelazi se na varijabilnu kamatnu stopu






















