Dvoiposoban stan na prodaju, Centar, 184.000€, 80m²




184.000 €
2.300 € / m2
- Stan u zgradi
- Centralno grejanje
- U izgradnji
- Prostorije: kupatilo, toalet, terase (2)
- Uknjiženo
- Oglas oglašava agencija pod reg. brojem 1574
- 1 lift
- 1 telefonska linija
Opis oglasa
Na prodaju stan u novogradnji – Centar Niša, opština Medijana – Blizina Foruma
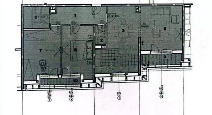
Prodaje se dvoiposoban stan površine 80,22 m², koji se nalazi u novogradnji u samom centru Niša, na opštini Medijana, u neposrednoj blizini Foruma.
🔹 Cena: 2.3l00 €/m² sa PDV-om
🔹 Sprat: 6/7
🔹 Grejanje: Centralno
🔹 Lift: Da
Struktura stana:
- Ulazni hodnik
- Prostrani dnevni boravak
- Kuhinja sa trpezarijom
- Kupatilo i dodatni toalet
- Dve spavaće sobe
- Dve terase
Stan je svetao, funkcionalnog rasporeda i idealan za porodičan život. Kvalitetna gradnja, moderna arhitektura i odlična lokacija čine ovu nekretninu izuzetnom investicijom, bilo za život ili izdavanje.
📍 Lokacija: U strogom centru grada, na pešačkoj udaljenosti od svih važnih sadržaja – škola, vrtića, prodavnica, kafića i gradskog prevoza.
Mi smo tim Residence nekretnine, vaš partner u pronalaženju savršenog doma. Pružamo vam sveobuhvatnu podršku advokata i garantujemo prisustvo prilikom overe ugovora kod javnog beležnika. Pozovite nas već danas na navedene brojeve telefona kako biste saznali više o lokaciji ili samoj nekretnini. Spremni smo da se prilagodimo vašem rasporedu, bilo da želite obilazak tokom radnih dana ili vikendom.
Pored ovog projekta u našoj ponudi imamo veliki broj stanova u novogradnji i starogradnji širom grada. Za više informacija budite slobodni da nas nazovete na sledeće brojeve telefona, biće nam zadovoljstvo da učestvujemo u pronalaženju idealnog doma za Vas.
065... (prikaži broj telefona)
065... (prikaži broj telefona)
Residence Nekretnine
Broj u registru posrednika : 1574
*Sačuvaj oglas uz belešku i primaj obaveštenja o njihovom pojeftinjenju ili pojavljivanju sličnih
Prikaz stana na mapi
Parkovi u blizini
- Park Čair14 min
- Park heroja NOB-a14 min
- Park složnih komšija25 min

Obeležja kulture u blizini
- Donina česma1 min
- Vladičanski dvor3 min
- Spomenik Stevanu Sremcu i Kalči7 min

Škole/Fakulteti/Vrtići u blizini
- Osnovna škola (Osnovna škola Dositej Obradović)6 min
- Srednja škola (Gimnazija Svetozar Marković)4 min
- Vrtić (Dečiji centar Bambini)2 min
- Fakultet (Univerzitet u Nišu Fakultet zaštite na radu)13 min

- Bolnica (Urgentni centar Niš)7 min
- Klinika (Poliklinika Longa Vita)3 min
- Teretana (Gym Town 1)8 min
- Prodavnica (IDEA)1 min
- Restoran (Restoran Fidel Gastro)3 min
- Kafana (Pivnica Nemir)4 min
- Taksi stajalište (Bros Taxi Niš)6 min
- Autobuska stanica (Marger)1 min
- Banka (Banca Intesa)5 min
- Pošta (Pošta Niš 5)1 min
Kontakt oglašivača
Stambeni krediti

- Period otplate od
96 -360 meseca
- NKS 4.75%
EKS 5.74%
Fiksna kamatna stopa
- Bez troškova obrade kredita
stranici kreditnih kalkulatora
Keš krediti
Period otplate
13 meseci