Jednoiposoban stan na prodaju, Centar, 57.293€, 47m²


57.293 €
1.219 € / m2
- Stan u zgradi
- Oglas oglašava agencija pod reg. brojem 22
Opis oglasa
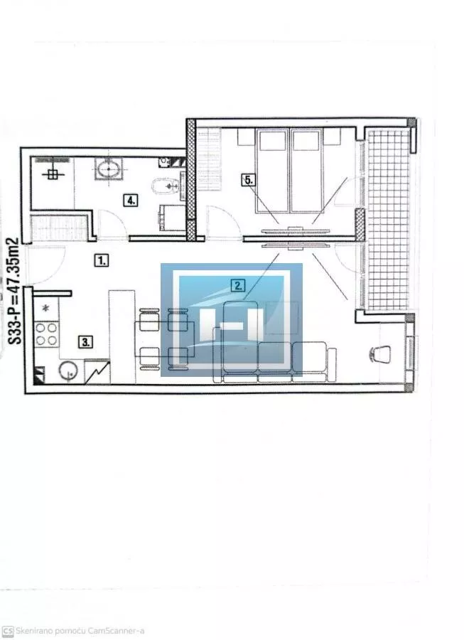
Prodajemo stan u izgradnji stambene zgrade sa liftom.
Grejanje-gas.
Izdvojena kuhinja.
Spavaća soba sa izlaskom na terasu.
Izražena cena je sa PDV-om.
Moguć je povraćaj PDV-a za kupce prvog stana.
Informacije:
065... (prikaži broj telefona)
064... (prikaži broj telefona)
035... (prikaži broj telefona)
Agencija:
Kralja Petra I, lokal 6
Tu smo za Vas svakim radnim danom 09-18h
Subotom 09-14h
Vaš ''HEROLDO''
*Sačuvaj oglas uz belešku i primaj obaveštenja o njihovom pojeftinjenju ili pojavljivanju sličnih
Prikaz stana na mapi
Parkovi u blizini
- Park Paraćin10 min

Obeležja kulture u blizini
- Crkva Svete Bogorodice20 min
- Spomenik žrtvama NATO agresije 1999.21 min
- Manastir Svete Petke22 min

Škole/Fakulteti/Vrtići u blizini
- Osnovna škola (Osnovna škola Đura Jakšić)5 min
- Srednja škola (Gimnazija Paraćin)3 min
- Vrtić (Dečiji vrtić Šećerko)12 min
- Fakultet (Visoka medicinska škola strukovnih studija Ćuprija)15 min

- Bolnica (Opšta bolnica Paraćin)7 min
- Klinika (Poliklinika Alba)7 min
- Teretana (Cafe bar & gym Mr. Hill)7 min
- Prodavnica (Market Zlatni delišes)1 min
- Restoran (Restoran Park)manje od 1 min
- Kafana (Kafana Tu negde)12 min
- Autobuska stanica12 min
- Banka (NLB Komercijalna banka)3 min
- Pošta (Pošta Paraćin)2 min
Kontakt oglašivača

Stambeni krediti
- Period otplate od
96 -360 meseca
- NKS 4.50%
EKS 5.74%
Fiksna kamatna stopa
- Bez troškova obrade kredita
- Period otplate od
96 -360 meseca
- NKS 4.34%
Kombinovana kamatna stopa
- Bez troškova obrade kredita
- Odobrenje kredita do 48h
stranici kreditnih kalkulatora
Keš krediti
Period otplate
13 meseci


















