Jednoiposoban stan na prodaju, Piskavac, 58.800€, 27m²
















58.800 €
2.178 € / m2
- Stan u zgradi
- Grejanje na struju
- Novo
- Oglas oglašava agencija pod reg. brojem 22
- 1 garažno mesto
- 1 lift
- Godina izgradnje: 2022.
- Zgrada poseduje: video nadzor
Opis oglasa
Nova oaza za život, u srcu Srbije, u Vrnjačkoj Banji. U mirnom delu Banje, VB Residences je Vaša adresa za budućnost, stvaranje novih priča i ostvarenje snova. VB Residences je zamišljen kao kutak mira, sa 14 stambenih jedinica raspoređenih na 4 etaže.
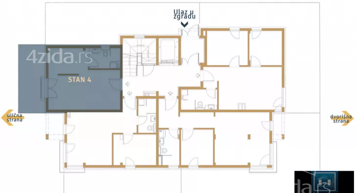
Stan broj 4: 27.58m2
4.1 Predprostor 3.21 m²
4.2 Dnevna soba sa trpezarijom i kuhinjom 13.65 m²
4.3 Deo za spavanje 6.73 m²
4.4 Kupatilo 4.00 m²
Tri stana u prizemlju imaju mogućnost kupovine dela dvorišta po ceni od 8.000 eura.
KOMFORNO, SVETLO I PROSTRANO - visina plafona u VB Residences stanovima iznosi 2,60m, što stanarima obezbeđuje optimalnu količinu vazduha i potrošnje grejanja kao i osećaj lagodnosti i komfora.
SMART SISTEM GREJANJA
- grejanje stambenih jedinica se vrši preko elektro kotlova proizvođača BOSCH sa radijatorima I mogućnošću regulisanja temperature na svakom radijatoru posebno (svaki radijator poseduje sopstvenu termo glavu za regulisanje temperature). Smart system karakteriše upravljanje putem mobilne aplikacije što Vam obezbeđuje da u svakom trenutku stižete u topao stan.
-Svaki stan poseduje i DAIKIN klima uređaj, koji greju i hlade Vaš dom, koristeći obnovljiv izvor energije i po tome su prepoznatljivi na tržištu.
TOPLOTNA IZOLACIJA - saradnja sa vrhunskim stručnjacima iz oblasti građevine je doprinela izuzetnom kvalitetu objekta.
ALU STOLARIJA - stanovi su opremljeni kvalitetnom aluminijumskom bravarijom tretiranom u antracit sivoj boji, AL profil sa termo prekidom i Four Season staklima. Uz fasadnu bravariju integrisane su roletne kojima se upravlja pomoću elektro pogona, kao i komarnici na svim fasadnim otvorima.
VIDEO NADZOR - vaša i bezbednost vaše porodice je na prvom mestu. Ulaz u zgradu je obezbeđen najsavremenijim kamerama, kojima se kontroliše ulaz i izlaz iz objekta, kao i javne površine ispred zgrade.
GARAŽA - svaki stan poseduje pripadajuće garažno parking mesto. Pristup garaži - ulazak i izlazak iz garaže se vrši rampom, a u garaži je obezbeđeno dnevno svetlo i prirodna ventilacija.
Cena garažnog mesta 15.000eLIFT - iako niske spratnosti, objekat poseduje lift, kako bi stanarima VB Residences u potpunosti olakšali obavljanje svakodnevnih životnih aktivnosti.
Imate dodatna pitanja o VB Residences projektu ili dostupnim stanovima? Kontaktirajte nas, tu smo da odgovorimo na Vaše zahteve i sva pitanja.
*Sačuvaj oglas uz belešku i primaj obaveštenja o njihovom pojeftinjenju ili pojavljivanju sličnih
Prikaz stana na mapi
Parkovi u blizini
- Japanski vrt22 min

Obeležja kulture u blizini
- Izvor lekovite vode Jezero6 min
- Izvor lekovite vode Snežnik7 min
- Izvor lekovite vode Topla voda7 min

Škole/Fakulteti/Vrtići u blizini
- Osnovna škola (Osnovna škola Popinski borci)7 min
- Srednja škola (Ugostiteljsko-turistička škola)8 min
- Vrtić (Dečiji klub Mali princ)31 min
- Fakultet (Univerzitet u Kragujevcu Fakultet za hotelijerstvo i turizam)8 min

- Bolnica (Bolnica za interne bolesti Vrnjačka Banja)6 min
- Klinika (Poliklinika SVS Medicus)33 min
- Teretana (Teretana Colosseum)33 min
- Prodavnica (Market Tea)16 min
- Restoran (Restoran Sunce)13 min
- Kafana (Pivnica Sonata)18 min
- Taksi stajalište (Profi taxi)14 min
- Banka (OTP banka)6 min
- Pošta (Pošta Vrnjačka Banja)7 min
Kontakt oglašivača

Stambeni krediti
- Period otplate od
96 -360 meseca
- NKS 4.34%
Kombinovana kamatna stopa
- Bez troškova obrade kredita
- Odobrenje kredita do 48h
- Period otplate od
96 -360 meseca
- NKS 4.50%
EKS 5.74%
Fiksna kamatna stopa
- Bez troškova obrade kredita
stranici kreditnih kalkulatora
Keš krediti
Period otplate
13 meseci


















