Trosoban stan na prodaju, Aleksandra Deroka, 227.680€, 77m²


















227.680 €
2.957 € / m2
- Stan u zgradi
- Grejanje na toplotnu pumpu
- U izgradnji
- Prostorije: kupatilo, toalet
- Opremljenost: Prazno - internet
- Pogled na: ulicu
- Uknjiženo
- Oglas oglašava agencija pod reg. brojem 1299
- 1 garažno mesto, garaža u sklopu zgrade
- 1 lift
- Godina izgradnje: 2026.
- Zgrada poseduje: lođa
- Kablovska
- 1 telefonska linija
Opis oglasa
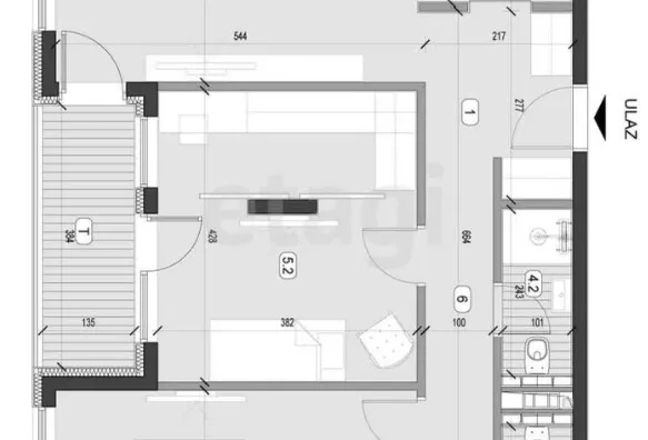
Na prodaju trosoban stan površine 76,66 m², na 1. i 2. spratu zgrade u izgradnji, na uglu Bulevara kralja Aleksandra i Ustaničke. Stan se sastoji od dve spavaće sobe, prostrane dnevne sobe i kupatila. Završetak radova očekuje se u avgustu–septembru 2026. Gradnja vrhunskog kvaliteta, sa pažljivo odabranim materijalima i modernim standardima. Grejanje na toplotne pumpe. Moguća kupovina garažnog mesta.
Posrednička naknada je u skladu sa Opštim uslovima poslovanja posrednika kompanije "Etagi com" d.o.o.
Продается трехкомнатная квартира площадью 76,66 м², на 1 и 2 этажах строящегося дома, на углу бульваров Краля Александра и Устаничка. Квартира состоит из двух спален, просторной гостиной и ванной комнаты. Завершение работ ожидается в августе-сентябре 2026 года. Строительство высочайшего качества, с использованием тщательно отобранных материалов и современных стандартов. Отопление тепловыми насосами. Возможна покупка гаражного места.
For sale, a three-room apartment with an area of 76.66 m², on the 1st and 2nd floors of a building under construction, on the corner of Kralja Aleksandra and Ustanička Boulevards. The apartment consists of two bedrooms, a spacious living room and a bathroom. Completion of the works is expected in August-September 2026. Top quality construction, with carefully selected materials and modern standards. Heating with heat pumps. Possible purchase of a garage space.
*Sačuvaj oglas uz belešku i primaj obaveštenja o njihovom pojeftinjenju ili pojavljivanju sličnih
Prikaz stana na mapi
Parkovi u blizini
- Park Slavujev potok35 min
- Zvezdarska šuma35 min
- Park Šumice37 min

Obeležja kulture u blizini
- Pašina česma6 min
- Trećepozivačka česma11 min
- Spomenik Ćirilu i Metodiju16 min

Škole/Fakulteti/Vrtići u blizini
- Osnovna škola (Osnovna škola Dragojlo Dudić)6 min
- Srednja škola (Građevinska tehnička škola Branko Žeželj)8 min
- Vrtić (Dečiji vrtić Dečiji lug)6 min
- Fakultet (Visoka građevinsko-geodetska škola Beograd)7 min

- Bolnica (MedicOne - specijalna bolnica za plastičnu, estetsku i rekonstruktivnu hirurgiju)11 min
- Klinika (Poliklinika i laboratorija LaboMedica)11 min
- Teretana (Sportski centar Ranković)8 min
- Prodavnica (Dućan moj)3 min
- Restoran (Kafana Dve lipe)2 min
- Kafana (Pub Republika)7 min
- Taksi stajalište (Taxi stanica)6 min
- Autobuska stanica (Prvomajska)2 min
- Tramvajska stanica (Ustanička)5 min
- Trolejbuska stanica (Marčanska)17 min
- Banka (Eurobank Direktna)4 min
- Pošta (Pošta Beograd 141)7 min
Kontakt oglašivača
Krediti OTP banke
Saznaj više
Prikazana rata odnosi se na maksimalni period otplate. Kalkulator je informativnog karaktera.
* Nakon isteka 5 godina, prelazi se na varijabilnu kamatnu stopu


