Jednoiposoban stan na prodaju, Ivana Milutinovića, 99.000€, 42m²
OBIĐI 3D TURU





















99.000 €
2.357 € / m2
- Etažno grejanje
- Uobičajeno stanje
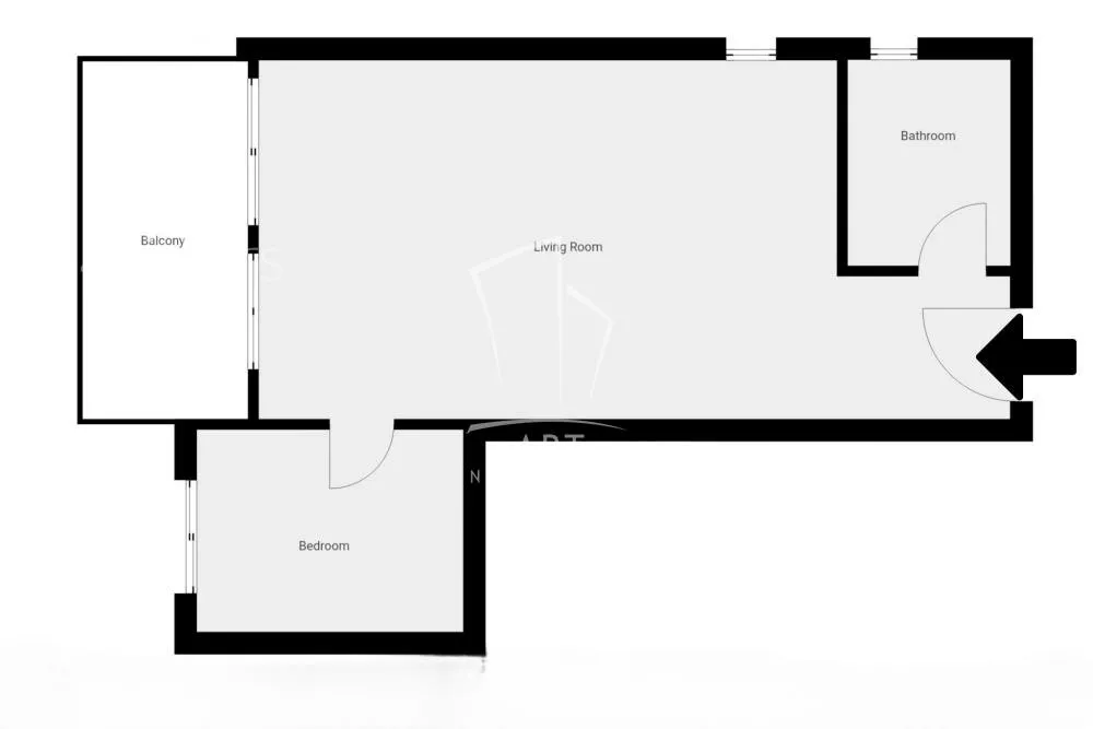
- Prostorije: kupatilo, terasa
- Opremljenost: Namešteno - interfon, klima
- Oglas oglašava agencija pod reg. brojem 339
- 1 parking mesto
- 1 lift
- Godina izgradnje: 2018.
- 1 telefonska linija
Opis oglasa
Lep, komforan, 1.5 soban stan u ulici Ivana Milutinovića u Borči. Zgrada je iz 2018, lepo održavana, ima lift i svoj parking. Izuzetno svetao - istočna strana. Dnevni boravak izlazi na lepu terasu. Neposredna blizina svih infrastrukturnih sadržaja neophodnih za lagodan život, autobusko stajalište je ispred zgrade. Predato na ozakonjenje. Prodaje se kompletno namešten i opremljen. U sklopu stana imate i svoje parking mesto.
Prostorije: ulazni hodnik, kupatilo, kuhinja, dnevna soba i trpezarija sa izlazom na terasu, manja soba.
Samo za keš kupce.
Agencijska provizija 2%
Agent: Milivoje Đorđević br. licence 2498
Art nekretnine d.o.o. Beograd.
Reg. br. 339.
011... (prikaži broj telefona)
.
*Sačuvaj oglas uz belešku i primaj obaveštenja o njihovom pojeftinjenju ili pojavljivanju sličnih
Prikaz stana na mapi
Obeležja kulture u blizini
- Spomenik Menora u plamenu25 min
- Česma Udruženja svih etničkih grupa Roma26 min
- Spomenik braniteljima Beograda 191526 min

Škole/Fakulteti/Vrtići u blizini
- Osnovna škola (Osnovna škola Stevan Sremac)9 min
- Srednja škola (Poljoprivredna škola PK Beograd)15 min
- Vrtić (Dečiji vrtić Cvrčak)9 min
- Fakultet (Univerzitet Nikola Tesla)21 min

- Bolnica (Bolnica Sirius Medical)15 min
- Klinika (Poliklinika Endo Top)20 min
- Teretana (Teretana R.Olimpic)8 min
- Prodavnica (Shorty Market)1 min
- Restoran (Kineski restoran Panda 011)5 min
- Kafana (Pivnica Hogar)manje od 1 min
- Taksi stajalište (Taxi stanica)15 min
- Autobuska stanica (Valjevskog Odreda)1 min
- Banka (Poštanska štedionica)2 min
- Pošta (Pošta Borča)7 min
Kontakt oglašivača
Krediti OTP banke
Saznaj više
Prikazana rata odnosi se na maksimalni period otplate. Kalkulator je informativnog karaktera.
* Nakon isteka 5 godina, prelazi se na varijabilnu kamatnu stopu





















