Dvosoban stan na prodaju, Jurija Gagarina, 235.000€, 72m²


























235.000 €
3.264 € / m2
- Stan u zgradi
- Centralno grejanje
- Prostorije: terasa
- Opremljenost: Prazno - interfon
- Uknjiženo
- Oglas oglašava agencija pod reg. brojem 167
- 1 parking mesto
- 1 lift
- Zgrada poseduje: podrum
- 1 telefonska linija
Opis oglasa
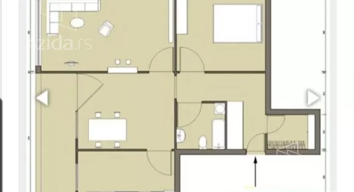
Novi Beograd, Blok 70 - Jurija Gagarina
2.0, 72m2 (terasa 5m2), 8/11, CG, dva lifta, telefon, interfon, podrum, parking
U ponudi funkcionalan dvosoban stan, lako adaptibilan u dvoiposoban, pri čemu bi se adaptacijom dobile dve spavaće sobe. Dvostrano je orijentisan - sa terase se pruža pogled na Delta city i A Blok, dok druga strana gleda ka Savskom keju, parku, školi i vrtiću.
Idealna prilika za renoviranje po sopstvenoj meri na jednoj od najtraženijih lokacija Novog Beograda.
Uknjižen na 67m2 korisne površine, merena površina sa terasom iznosi 72m2.
Agencijska provizija 2%
Agent: Anđela Stojanović 065... (prikaži broj telefona) (licenca br.6665)
*Sačuvaj oglas uz belešku i primaj obaveštenja o njihovom pojeftinjenju ili pojavljivanju sličnih
Prikaz stana na mapi
Parkovi u blizini
- Park Blok 705 min
- Dečje igralište13 min
- Park Republike Argentine20 min

Obeležja kulture u blizini
- Česma8 min
- Spomenik Mahatma Gandiju8 min
- Hangar Starog aerodroma na Novom Beogradu9 min

Škole/Fakulteti/Vrtići u blizini
- Osnovna škola (Osnovna škola Mladost)6 min
- Srednja škola (Srednja škola Kosta Cukić)4 min
- Vrtić (Dečiji vrtić Pačići)4 min
- Fakultet (Visoka škola strukovnih studija za informacione tehnologije ITS)8 min

- Bolnica (Puls kardiološki centar)6 min
- Klinika (Poliklinika Solar Medical Center)5 min
- Teretana (Fitness studio Elit)5 min
- Prodavnica (Market Venera)3 min
- Restoran (Restoran Li Xia)3 min
- Kafana (Helga's Pub)7 min
- Taksi stajalište (Taxi stanica)2 min
- Autobuska stanica (Blok 70)2 min
- Tramvajska stanica (Blok 23)38 min
- Banka (Eurobank Direktna)6 min
- Pošta (Pošta Beograd 53)4 min
Kontakt oglašivača
Krediti OTP banke
Saznaj više
Prikazana rata odnosi se na maksimalni period otplate. Kalkulator je informativnog karaktera.
* Nakon isteka 5 godina, prelazi se na varijabilnu kamatnu stopu






















