Jednoiposoban stan na prodaju, Apelovac, 61.920€, 34m²




61.920 €
1.821 € / m2
- Etažno grejanje
- Novo
- Prostorije: kupatilo
- Oglas oglašava agencija pod reg. brojem 940
- 1 lift
- 1 telefonska linija
Opis oglasa
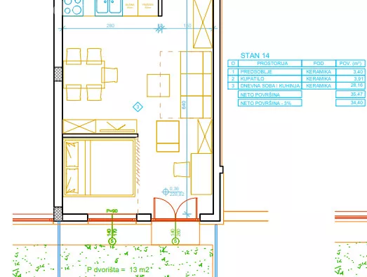
Na prodaju stan u stambenoj zgradi PO+PR+P4, na Ispratu ukupne površine 34,40m na prizemlju. Stan se sastoji od predsoblja, dnevne sobe sa kuhinjom i trpezarijom, jedne spavaće sobe, kupatila i lođe.Stambeni objekat će biti izgrađen po standardima, izolacija od kamene vune d-10 cm, kvalitetna keramika iz uvoza, stolarija spoljašnja PVC i sa Alu roletnama sa termo ispunom zastakljena sa niskoemisionim vakumiranim staklima, unutrašnja od furniranog medijapana, kvalitetna podna obloga sa završnim belim drvenim lajsnama, ulazna sigurnosna vrata sa atestom na vatrootpornost, u kupatilu ugradni vodokotlić, sponski tuš, stakleni paravan u skladu sa uslovima kupatila, umivaonik sa ormarićem, sve jednoručne baterije. Grejanje je mermernim grejnim telima u kombinaciji sa kaloliferom na električnu energiju i po jedna ugrađena klima u stanu. Postoji mogućnost kupovine parking mesta u sklopu stambenog objekta. U cenu je uključen PDV i kupci prvog stana imaju pravo na povraćaj PDV-a u iznosu od 10%. Hvala Vam što ste pogledali oglas. Za više informacija o ovoj ili drugim nekretninama i zakazivanje razgledanja kontaktirajte agenta na broj telefona iz oglasa (poziv, sms, viber) ili putem e-maila. Kompletnu ponudu dostupnih nekretnina možete pronaći na našem sajtu. Agencija Proagent nekretnine je upisana u Registru posrednika pod brojem: 940.
*Sačuvaj oglas uz belešku i primaj obaveštenja o njihovom pojeftinjenju ili pojavljivanju sličnih
Prikaz stana na mapi
Parkovi u blizini
- Park Čair17 min
- Park složnih komšija21 min
- Park Svetog Save26 min

Obeležja kulture u blizini
- Zgrada Pasterovog zavoda7 min
- Vladičanski dvor7 min
- Donina česma8 min

Škole/Fakulteti/Vrtići u blizini
- Osnovna škola (Osnovna škola Sreten Mladenović Mika)5 min
- Srednja škola (Medicinska škola Dr Milenko Hadžić)10 min
- Vrtić (Kreativno zabavište Mikijeva radionica)4 min
- Fakultet (Fakultet za pravo, bezbednost i menadžment Konstantin Veliki)6 min

- Bolnica (Urgentni centar Niš)5 min
- Klinika (Poliklinika Dr Nikolić)5 min
- Teretana (Centar za rekreaciju Miss Fit Line)8 min
- Prodavnica (Zlatan Trag supermarket)3 min
- Restoran (Etno kafana Jastrebac)9 min
- Kafana (Pivnica Berta)23 min
- Taksi stajalište (Duga taksi)26 min
- Autobuska stanica (Pivara)8 min
- Banka (UniCredit Bank)6 min
- Pošta (Pošta Niš 5)7 min
Kontakt oglašivača
Krediti OTP banke
Saznaj više
Prikazana rata odnosi se na maksimalni period otplate. Kalkulator je informativnog karaktera.
* Nakon isteka 5 godina, prelazi se na varijabilnu kamatnu stopu


