Dvosoban stan na prodaju, Adice, 90.920€, 43m²


90.920 €
2.114 € / m2
- Stan u zgradi
- Podno grejanje
- U izgradnji
- Prostorije: kupatilo, terasa
- Opremljenost: Prazno - internet
- Pogled na: dvorište
- U procesu uknjižavanja
- Oglas oglašava agencija pod reg. brojem 2043
- Tip interneta: optički
- Kablovska
- 1 telefonska linija
- Autobuske linije: 6
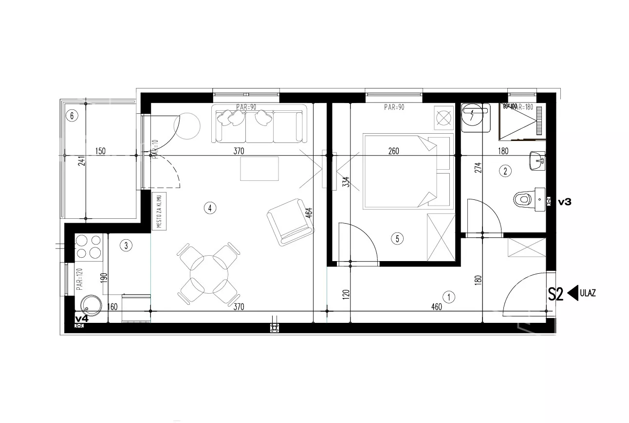
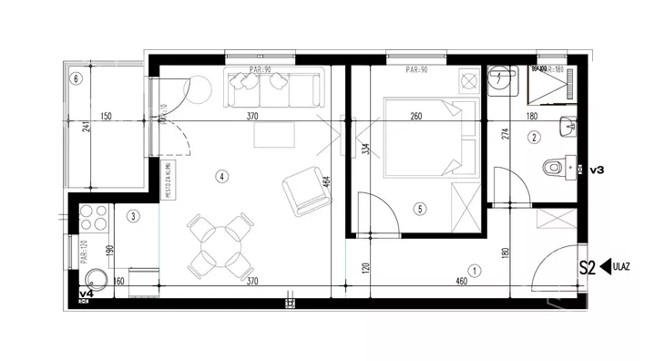
Opis oglasa
Dvosoban stan u izgradnji proverenog investitora čije su zgrade među najkvalitetnijim i najlepšim u ovom delu grada a i šire! U blizini ulice Branka Ćopića i gradskog previza 6, velikog marketa i ostalog potrebnog za svakodnevni život.
Stan je odličnog rasporeda, ne gubi se ni milimetar prostora, sve prostorije su pravilnog oblika. Nalazi se na prvom spratu od dva modernog manjeg kompleksa.
- izuzetno osvetljen dnevni boravak - dvostrana tarasna vrata i dvostruki veliki prozor
- kuhinja sa svojom prirodnom ventilacijom
- lepa terasa
Povrat PDV-a za kupce prve nekretnine.
Moguća kupovina putem stambenog kredita.
Agencijska provizija je uračunata.
Aničić nekretnine, broj u registru posrednika 2043
*Sačuvaj oglas uz belešku i primaj obaveštenja o njihovom pojeftinjenju ili pojavljivanju sličnih
Prikaz stana na mapi
Parkovi u blizini
- Park Bistrica41 min
- Futoški park48 min

Obeležja kulture u blizini
- Jodna Banja13 min
- Dvorac Eđšeg14 min
- Galerija Matice srpske18 min

Škole/Fakulteti/Vrtići u blizini
- Osnovna škola (Privatna osnovna škola Sveti Kirilo i Metodije)15 min
- Srednja škola (Gimnazija Laza Kostić)5 min
- Vrtić (Dečiji vrtić Dunavski cvet)21 min
- Fakultet (Protestantski teološki fakultet)5 min

- Bolnica (Ginekološka bolnica Ferona)23 min
- Klinika (Poliklinika Consilium)5 min
- Teretana (Fintess centar Basic Control Academy)4 min
- Prodavnica (Mikromarket)1 min
- Restoran (Restoran Žal za mladost)17 min
- Kafana (Kafanica Kod Dače)20 min
- Taksi stajalište (Taxi prevoz Novi Sad)7 min
- Autobuska stanica (Branka Ćopića - Jesenjinova)1 min
- Banka (Erste Bank Ekspres ekspozitura)17 min
- Pošta (Pošta Novi Sad 21142)9 min
Kontakt oglašivača
Krediti OTP banke
Saznaj više
Prikazana rata odnosi se na maksimalni period otplate. Kalkulator je informativnog karaktera.
* Nakon isteka 5 godina, prelazi se na varijabilnu kamatnu stopu






















