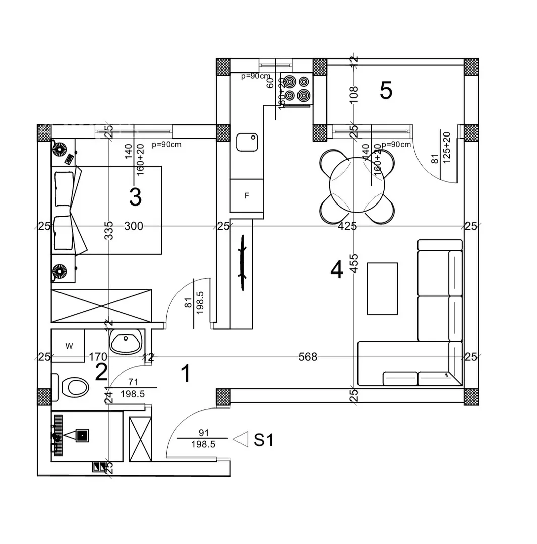
Dvosoban stan na prodaju, Veternička Rampa, 92.180€, 41m²


92.180 €
2.248 € / m2
- Stan u zgradi
- Grejanje na gas
- U izgradnji
- Prostorije: kupatilo, terasa
- Opremljenost: Prazno - internet
- Pogled na: dvorište
- U procesu uknjižavanja
- Oglas oglašava agencija pod reg. brojem 2043
- 1 parking mesto, parking u dvorištu zgrade
- Tip interneta: optički
- Kablovska
- 1 telefonska linija
Opis oglasa
Najkvalitetnija gradnja u ovom delu grada, a i šire! Na odličnoj lokaciji u blizini svega potrebnog za život!
Jednoiposoban stan savršenog rasporeda na prvom spratu od dva, novog kompleksa.
- tarket-parket visoke klase
- keramika prve klase
- sigurnosna vrata
- energetski pasoš
- kvalitetna i dugotrajna fasada
Parking mesto je u ceni!
Moguća kupovina putem stambenog kredita uz učešće od 30.000 eura.
Povrat PDV-a za kupce prve nekretnine.
Agencijska provizija je uračunata.
Aničić nekretnine, broj u registru posrednika 2043
*Sačuvaj oglas uz belešku i primaj obaveštenja o njihovom pojeftinjenju ili pojavljivanju sličnih
Prikaz stana na mapi
Parkovi u blizini
- Park Bistrica31 min

Obeležja kulture u blizini
- Mađarska reformatorska crkva sa zgradom parohijskog doma16 min
- Jodna Banja17 min
- Dvorac Eđšeg19 min

Škole/Fakulteti/Vrtići u blizini
- Osnovna škola (Osnovna škola Marija Trandafil)7 min
- Srednja škola (Privatna medicinska škola Dositej Obradović)6 min
- Vrtić (Dečiji vrtić Zlatno sunce)15 min
- Fakultet (Protestantski teološki fakultet)12 min

- Bolnica (Ginekološka bolnica Ferona)11 min
- Klinika (Poliklinika Consilium)11 min
- Teretana (Fitness studio Top Form)6 min
- Prodavnica (Mikromarket)4 min
- Restoran (Restoran Na kraj sela)17 min
- Kafana (Pivoteka 77)34 min
- Taksi stajalište (Taxi prevoz Novi Sad)32 min
- Autobuska stanica (Sportski Centar)9 min
- Banka (Poštanska štedionica)16 min
- Pošta (Pošta Veternik 21203)6 min
Kontakt oglašivača
Krediti OTP banke
Saznaj više
Prikazana rata odnosi se na maksimalni period otplate. Kalkulator je informativnog karaktera.
* Nakon isteka 5 godina, prelazi se na varijabilnu kamatnu stopu






















