Lokal na prodaju, Metohijska, 48.000€, 15m²












48.000 €
3.200 € / m2
- Renovirano
- Opremljenost: Prazno - klima, kanalizacija
- Oglas oglašava agencija pod reg. brojem 167
- Kanalizacija
Opis oglasa
Vračar, Crveni krst - Metohijska
lokal, 15m2, prizemlje, klima
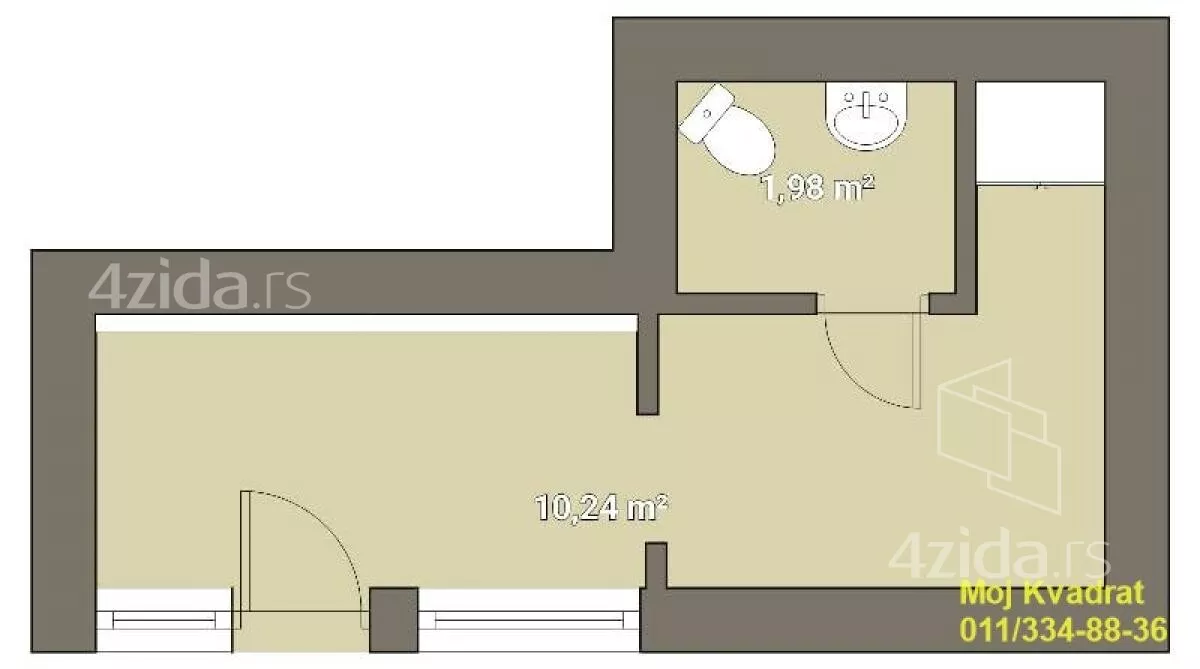
Prodaje se lokal na Vračaru i prizemlju stambene zgrade. Lokal ima dosta prirodne svetlosti od ulaznog dela koji je većinski u staklu, kao izlog.
Sastoji se od prijemnog dela, male čajne kuhinje i toaleta.
Renoviran je, a grejanje je na klima uređaj.
Uknjižen na 15m2.
Agencijska provizija 1.000€.
Agent Vladimir Nikolić: 065... (prikaži broj telefona) (licenca br. 6571)
*Sačuvaj oglas uz belešku i primaj obaveštenja o njihovom pojeftinjenju ili pojavljivanju sličnih
Prikaz poslovnog prostora na mapi
Parkovi u blizini
- Park Urbani džep4 min
- Park Šumice15 min
- Park Slavujev potok16 min

Obeležja kulture u blizini
- Spomenik Petru Kočiću6 min
- Vozarev krst10 min
- Osnovna škola Kralj Petar II Karađorđević13 min

Škole/Fakulteti/Vrtići u blizini
- Osnovna škola (Specijalna osnovna škola Dušan Dugalić)8 min
- Srednja škola (Arhitektonska tehnička škola)7 min
- Vrtić (Dečiji vrtić Lunja)4 min
- Fakultet (Univerzitet u Beogradu Geografski fakultet)13 min

- Bolnica (Specijalna bolnica za bolesti zavisnosti Dr Boro Lazić)8 min
- Klinika (Poliklinika As Medicus Biorezonanca)7 min
- Teretana (Lucky Fitness)5 min
- Prodavnica (Dolina ukusa - prodavnica suhomesnatih i mlečnih proizvoda)5 min
- Restoran (Restoran Nota)4 min
- Kafana (Pivnica JB)6 min
- Taksi stajalište (Auto taxi Ševarlić Dimitrije)6 min
- Autobuska stanica (Đerdapska)6 min
- Tramvajska stanica (Pijaca Zvezdara)16 min
- Trolejbuska stanica (Bregalnička)5 min
- Banka (Raiffeisen Bank)6 min
- Pošta (Pošta Beograd 151)6 min
Kontakt oglašivača
Krediti OTP banke
Saznaj više
Prikazana rata odnosi se na maksimalni period otplate. Kalkulator je informativnog karaktera.
* Nakon isteka 5 godina, prelazi se na varijabilnu kamatnu stopu





















