Kuća na prodaju, Voždovac, 830.000€, 280m²
OBIĐI 3D TURU




































































830.000 €
2.964 € / m2
- Dvojna kuća
- Površina: 280 m²
- Grejanje na struju
- Uknjiženo
- Oglas oglašava agencija pod reg. brojem 331
- 1 garažno mesto
Opis oglasa
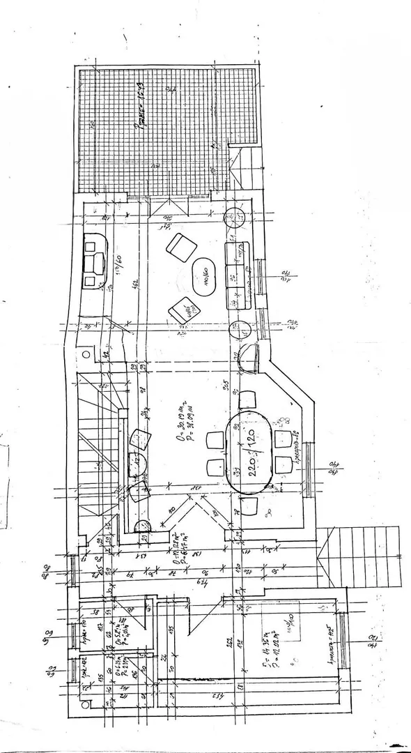
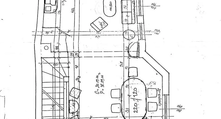
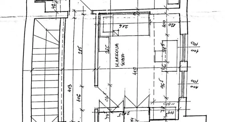
Porodićna kuća, vertikala, sa fizički odvojenim dvorištem. Sastoji se od Su+Pr+1+2. Prizemni deo kuće sastoji se od ulaza, odvojene kuhinje sa ostavom, toaleta, prostranog dnevnog boravka sa trpezarijom i izlaskom na terasu koja ima izlaz na dvorište. Na prvom spratu nalaze se 2 spavaće sobe, radna soba i kupatilo. Drugi sprat ima 3 spavaće i kupatilo. Polusuteren ima radnu kuhinju, dnevni boravak i višenamensku prostoriju. U dvorištu se nalazi garaža.
Family house, vertical, with a physically separate yard. The ground floor of the house consists of an entrance, a separate kitchen with a pantry, a toilet, a spacious living room with a dining room and an exit to the terrace that has an exit to the yard. On the first floor there are 2 bedrooms, a study and a bathroom. The second floor has 3 bedrooms and a bathroom. The semi-basement has a study kitchen, a living room and a multipurpose room. There is a garage in the yard.
*Sačuvaj oglas uz belešku i primaj obaveštenja o njihovom pojeftinjenju ili pojavljivanju sličnih
Prikaz kuće na mapi
Parkovi u blizini
- Park Šumice9 min
- Bajronov park23 min
- Park mira Jelena Šantić24 min

Obeležja kulture u blizini
- Kuća Flašar6 min
- Spomenik oslobodilaca Beograda 1806. godine6 min
- Spomenik Internacionalnim brigadama7 min

Škole/Fakulteti/Vrtići u blizini
- Osnovna škola (Osnovna škola Miodrag Matić)5 min
- Srednja škola (Škola za negu lepote)5 min
- Vrtić (Dečiji vrtić Biseri)9 min
- Fakultet (Univerzitet Singidunum)5 min

- Bolnica (Klinika za fizikalnu medicinu Saint James)4 min
- Klinika (Poliklinika Antamedica)5 min
- Teretana (Teretana Vožd Tim)3 min
- Prodavnica (Prodavnica Sunce)5 min
- Restoran (Restoran Stari bunar)3 min
- Kafana (Stara kafana Dušanovac)6 min
- Taksi stajalište (Taxi stanica)7 min
- Autobuska stanica (Dušanovac /Pošta)4 min
- Tramvajska stanica (Bože Jankovića)19 min
- Trolejbuska stanica (Kruševačka)15 min
- Banka (Raiffeisen Bank)5 min
- Pošta (Pošta Beograd 11)5 min
Kontakt oglašivača

Stambeni krediti

- Period otplate od
96 -360 meseca
- NKS 4.75%
EKS 5.74%
Fiksna kamatna stopa
- Bez troškova obrade kredita
Za iznos kredita preko 300000 € poseti sajt banke.
Saznaj višestranici kreditnih kalkulatora
Keš krediti
Period otplate
13 meseci