Kuća na prodaju, Ripanj, 350.000€, 124m²
























350.000 €
2.823 € / m2
- Površina: 124 m²
- Etažno grejanje
- Prostorije: kuhinja, ostava
- Oglas oglašava agencija pod reg. brojem 6
- 1 garažno mesto
Opis oglasa
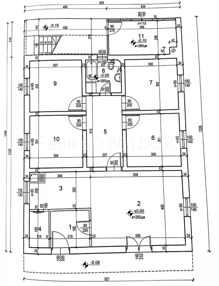
Ripanj, petosobna kuća, bruto površine 124m2. Parcela površine 6,17 ari. Legalizovana.
Sastoji se od dnevnog boravka sa kuhinjom, površine oko 30m2, četiri spavaće sobe površine od oko 9m2, antre, hodnik, ostava , kupatilo i kotlarnica. Kuća je prizemna, starije gradnje.
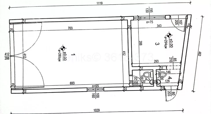
U dvorištu se nalazi garaža sa pomoćnim objektok, takođe legalizovana, sa površinom od 49m2.
Oba objekta imaju sprovedeno etažno grejanje sa dva kotla na čvrsta goriva.
Na parceli je zasađeno voće, uređeni travnjaci i staze. Poseduje i druge pomoćne prostorije razne namene.
U blizini kuće se nalazi osnovna škola, četiri autobuske linije, Beovoz , dom zdravlja, trgovine i pošta.
*Sačuvaj oglas uz belešku i primaj obaveštenja o njihovom pojeftinjenju ili pojavljivanju sličnih
Prikaz kuće na mapi
Obeležja kulture u blizini
- Stara kuća porodice Protić9 min
- Spomenik sovjetskim ratnim veteranima12 min
- Spomenik Vasi Čarapiću13 min

Škole/Fakulteti/Vrtići u blizini
- Osnovna škola (Osnovna škola Vojvoda Putnik)5 min
- Srednja škola (Gimnazija Patrijarh Pavle)19 min
- Vrtić (Dečiji vrtić Radosno detinjstvo)7 min
- Fakultet (Univerzitet u Beogradu Farmaceutski fakultet)20 min

- Bolnica (Hirurška bolnica Aesculap)16 min
- Klinika (Poliklinika Vaša kuća zdravlja)21 min
- Teretana (Green fitness - fitness klub)18 min
- Restoran (Restoran Lipovica)43 min
- Autobuska stanica (Čaršija)5 min
- Banka (NLB Komercijalna banka)19 min
- Pošta (Pošta Ripanj 3)7 min
Kontakt oglašivača
Krediti OTP banke
Saznaj više
Prikazana rata odnosi se na maksimalni period otplate. Kalkulator je informativnog karaktera.
* Nakon isteka 5 godina, prelazi se na varijabilnu kamatnu stopu


