2-etažna kuća na prodaju, Vojvode Brane, 364.000€, 97m²






























364.000 €
3.753 € / m2
- Samostalna kuća
- Etaž: 2
- Površina: 97 m²
- Podno grejanje
- Renovirano
- Prostorije: terasa
- Opremljenost: Namešteno - kuhinjski elementi, frižider, šporet, plakar
- Uknjiženo
- Oglas oglašava agencija pod reg. brojem 1299
Opis oglasa
Ovo je nekretnina koja se retko pojavljuje na tržištu. Radi se o zasebnom objektu na odličnoj lokaciji. Kuća je kompletno renovirana, kako spolja, tako i iznutra, uz pomoć i savete arhitekte.
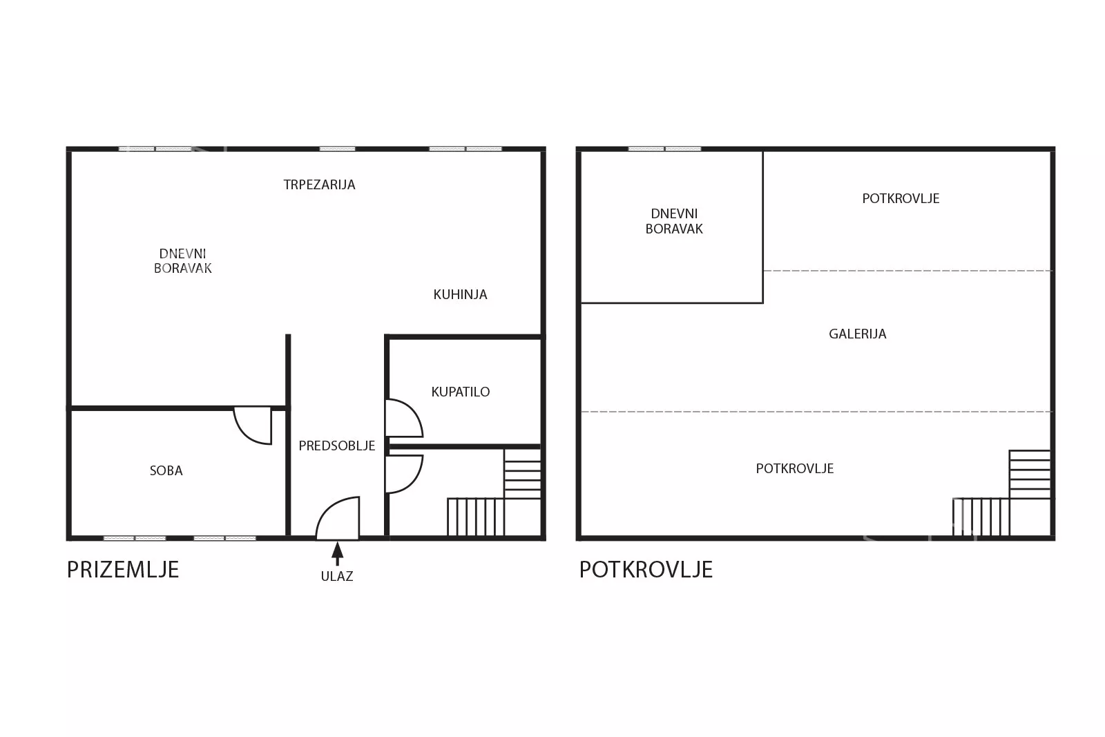
Sastoji se od dve etaže.
Prva etaza poseduje ulazni deo, dnevni boravak spojen sa trpezarijom i kuhinjom, spavaću sobu i veliko kupatilo.
Druga etaza je predviđena za spavaću sobu sa garderoberom i prostorima predvidjenim za odlaganje stvari.
Poseban momenat koji treba istaći je visina plafona u delu dnevnog boravka od 4 metra, kao i izuzetno dobro organizovana rasveta.
Prilikom renoviranja ove nekretnine su korišćeni najbolji materijali.
Grejanje je podno, a moze se koristiti i klima.
Visina plafona na gornjoj etazi se po potrebi moze korigovati jednostavnom intervencijom.
Kuca poseduje i terasu od 4,5 kvadrata, a krasi je i prelep trem od 14 kvadrata sa malim dvorištem.
Izuzetna nekretnina, kako za život, tako i za potencijalno investiciju.
Nasa preporuka
Agencijska provizija 2% od prodajne cene.
Licencirani agent prodaje Sasa Nikolic tel 064... (prikaži broj telefona) .
Это объект недвижимости, который крайне редко появляется на рынке. Речь идет об отдельно стоящем доме, расположенном в отличном районе. Дом полностью отреставрирован — как снаружи, так и внутри — с участием и рекомендациями архитектора.
Дом состоит из двух этажей.
На первом этаже расположены прихожая, гостиная, объединенная с столовой и кухней, спальня и просторная ванная комната.
Второй этаж предназначен для спальни с гардеробной и дополнительными помещениями для хранения вещей.
Особого внимания заслуживает высота потолков в зоне гостиной — 4 метра, а также исключительно хорошо продуманное освещение.
При реконструкции данного объекта использовались материалы высочайшего качества.
Отопление — теплые полы, также возможно использование кондиционера.
Высоту потолков на верхнем этаже при необходимости можно скорректировать с помощью простой конструктивной интервенции.
Дом также располагает террасой площадью 4,5 м², а его украшением является красивый крытый портик площадью 14 м² с небольшим двором.
Исключительная недвижимость — как для комфортного проживания, так и в качестве инвестиции.
Наша рекомендация.
Агентская комиссия составляет 2% от цены продажи.
Лицензированный агент по продаже:
Саша Николич
Тел.: +38... (prikaži broj telefona) .
This is a property that rarely appears on the market. It is a detached house located in an excellent area. The house has been completely renovated, both externally and internally, with the assistance and guidance of an architect.
The property consists of two levels.
The first level includes an entrance area, a living room connected to the dining area and kitchen, a bedroom, and a spacious bathroom.
The second level is designed as a bedroom with a walk-in wardrobe and additional storage areas.
A special highlight is the ceiling height of 4 meters in the living room area, as well as the exceptionally well-designed lighting.
*Sačuvaj oglas uz belešku i primaj obaveštenja o njihovom pojeftinjenju ili pojavljivanju sličnih
Prikaz kuće na mapi
Parkovi u blizini
- Park Ćirila i Metodija7 min
- Park Starine Novaka11 min
- Park Mike Oklopa11 min

Obeležja kulture u blizini
- Spomenik Ćirilu i Metodiju5 min
- Spomenik Puškinu5 min
- Spomenik Vuku Karadžiću5 min

Škole/Fakulteti/Vrtići u blizini
- Osnovna škola (Osnovna škola Ivan Goran Kovačić)1 min
- Srednja škola (Srednja škola Arhimed)7 min
- Vrtić (Dečiji vrtić Happy Kids)1 min
- Fakultet (MiT Akademija za marketing i informatiku)4 min

- Bolnica (Oftalmološka bolnica Revida)4 min
- Klinika (Poliklinika Argirović)7 min
- Teretana (Fitness centar Oaza)2 min
- Prodavnica (IDEA)2 min
- Restoran (Kafana Pavle Korčagin)2 min
- Kafana (Pab Marshall)2 min
- Taksi stajalište (Taxi stanica)7 min
- Autobuska stanica (Vukov spomenik)6 min
- Tramvajska stanica (Dalmatinska)5 min
- Trolejbuska stanica (Podvožnjak)3 min
- Banka (Banca Intesa)5 min
- Pošta (Pošta Beograd 14)8 min
Kontakt oglašivača
Krediti OTP banke
Saznaj više
Prikazana rata odnosi se na maksimalni period otplate. Kalkulator je informativnog karaktera.
* Nakon isteka 5 godina, prelazi se na varijabilnu kamatnu stopu


