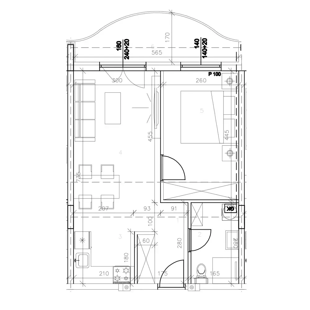
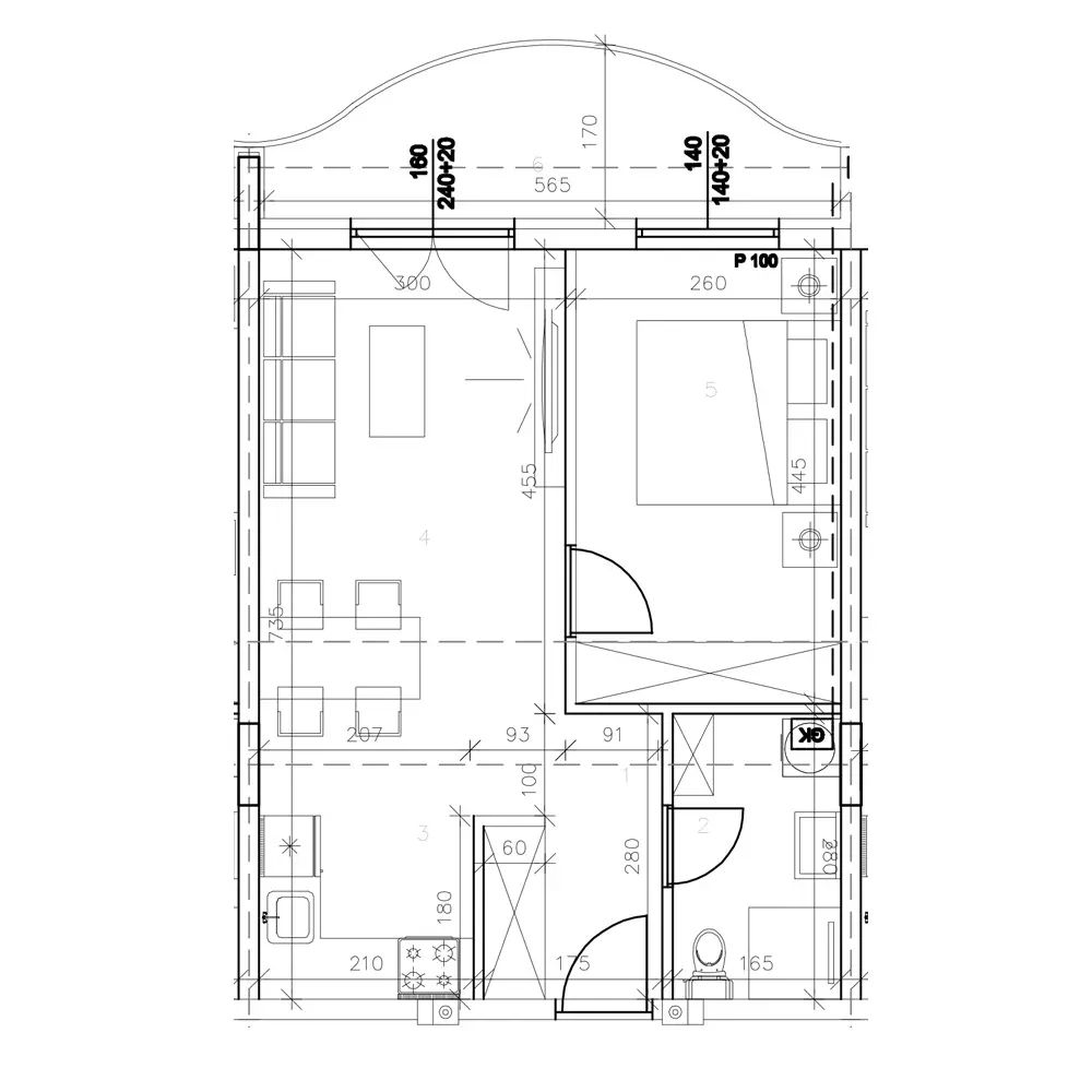
Jednoiposoban stan na prodaju, Novogradnja, Vrdnik, 89300€, 47m²
Vrdnik, Okolne lokacije, Irig


od 89.300 €
1.900 € / m2
Jednoiposoban stan
47m²
1/5 spratova
Nije uknjiženo
- Status izgradnje: U izgradnji
- Status prodaje: Na prodaju
- Podno grejanje
- Energent: Gas
- Materijal gradnje: Termo blok
- Stolarija: PVC
- Podovi: Pločice
- Energetski pasoš: Da
- 1 lift
- Kalorimetar: Ne
- Godina izgradnje: 2027.
Ovaj oglas je deo projekta
Avenia Grand Royal
Keser Inženjering 2020Vrdnik, Okolne lokacije, Irig

O projektu oglašivača Keser Inženjering 2020
Avenia Grand Royal je moderan kompleks koji u svom sastavu ima luksuzne apartmane, savremeni spa centar, kao i recepciju sa kompletnom uslugom izdavanja apartmana.
Stambeni krediti

- Period otplate od
96 -360 meseca
- NKS 4.75%
EKS 5.74%
Fiksna kamatna stopa
- Bez troškova obrade kredita
373 € / mesečno
Saznaj višePogledaj detaljnije i menjaj uslove kreditiranja na
stranici kreditnih kalkulatora
stranici kreditnih kalkulatora
Keš krediti
RSDIznos kredita
Period otplate
13 meseciOsiguranje domaćinstva online
Osiguraj svoje domaćinstvo u slučaju požara...