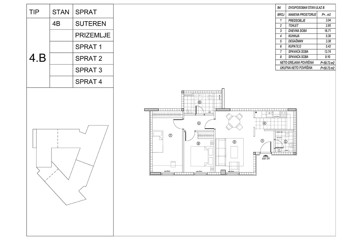
Dvoiposoban stan na prodaju, Novogradnja, Voždovac opština, 59.73m²


Cena na upit
- Status izgradnje: U izgradnji
- Status prodaje: Na prodaju
- Etažno grejanje
- Energent: Struja
- Materijal gradnje: Termo blok
- Stolarija: Aluminijum
- Podovi: Tarket
- Energetski pasoš: Da
- Prodaja parkinga: Dostupno
- 1 lift
- Kalorimetar: Ne
- Godina izgradnje: 2027.
Ovaj oglas je deo projekta
Vojvode Vlahovića

O projektu oglašivača Art nekretnine
Sigurna budućnost za vašu porodicu počinje u modernom kompleksu. Moderan stil gradnje, podređen porodičnom komforu. Na ušuškanoj lokaciji u kompleksu izuzetnog kvaliteta. Višespratna zgrada sa tri odvojena ulaza Unutrašnje dvorište namenjeno odmoru, druženju i bezbednom dečjem boravku Garaža i parking, obezbeđeni za sve stanare Moderni materijali, kvalitetna izolacija i odlična funkcionalnost stanova CENA JE SA PDVom. Rok završetka 04.2027. Veliki izbor različitih struktura. Izaberite svoj dom na vreme. Povraćaj PDV-a za kupce prvog stana. Bez plaćanja provizije za kupce. Agent: Nikola Franelić br. licence 505 “Art nekretnine“ d.o.o. Beograd. Reg. br.339 011... (prikaži broj telefona)
Krediti OTP banke
Saznaj više
Prikazana rata odnosi se na maksimalni period otplate. Kalkulator je informativnog karaktera.
* Nakon isteka 5 godina, prelazi se na varijabilnu kamatnu stopu
