Reklama

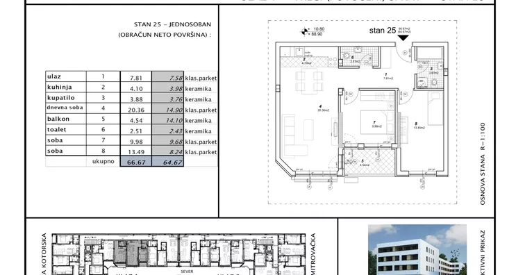
Trosoban stan na prodaju, Novogradnja, Telep, 64.67m²

Telep, Gradske lokacije, Novi Sad
Trosoban stan | 4zida
Trosoban stan | 4zida

Cena na upit

Trosoban stan
64.67m²
3/4 sprata
Nije uknjiženo

O stanu
  • Status izgradnje: U izgradnji
  • Status prodaje: Na prodaju
O zgradi
  • Etažno grejanje
  • Energent: Gas
  • Materijal gradnje: Građevinski blok
  • Stolarija: PVC
  • Podovi: Tarket
  • Energetski pasoš: Da
  • Prodaja parkinga: Dostupno
  • 2 lifta
  • Kalorimetar: Da
  • Godina izgradnje: 2026.

Ovaj oglas je deo projekta
Kotorska 2

STABILNOST DOO Novi SadTelep, Gradske lokacije, Novi Sad
pozadinska slika

O projektu oglašivača STABILNOST DOO Novi Sad

Novi kompleks od 52 stana na Telepu nudi jednu od najtraženijih lokacija za stanovanje u Novom Sadu. Nedaleko od limana 4, plaže Šordoš i Dunavske obale, pruža se prilika za život u atraktivnoj novogradnji. Stanovi su konkurentnih cena, među kojima dominiraju najtraženije strukture: dvosobni stanovi od oko 40m2 i trosobni stanovi od oko 65m2. Ovo je idealna prilika za porodično stanovanje ili investiciju jer se nalazi u mirnom ali ključnom delu grada. Kvalitet po meri savremenog čoveka Projekat se ističe visokokvalitetnom gradnjom i opremljenim enterijerima, uključujući troslojni parket, PVC stolariju, keramiku i sanitarije renomiranih brendova. Objekat je modernog izgleda, sa elegantnim listelama i rasvetom na fasadi. Grejanje na gas osigurava komfor, dok se troškovi obračunavaju prema individualnom utrošku preko kalorimetara. Demit fasada u kombinaciji sa ukrasnim listelama i rasvetom Fasadna izolacija od termo bloka debljine 25 cm i stiroporom od 12 cm Sobe i hodnici: Tarkett laminirani troslojni parket Višekomorna PVC stolarija sa troslojnim niskoemisionim staklima punjenim argonom Ulazna sigurnosna vrata Sobna vrata u beloj boji od medijapana, visine 220 cm Italijanska keramika I klasa Sanitarije renomiranih proizvođača iz EU (Geberit) Terase: parapet + prohromska ograda, protivklizna keramika Grejanje na gas sa kalorimetrima Priprema za klima uređaje u svakom stanu. Novom Sadu Novogradnja se nalazi u centralnoj ulici na Telepu, omogućavajući jednostavnu i brzu vezu sa Limanom 4 i ostatkom grada. Telep je poznat kao miran, ali ključno pozicioniran deo Novog Sada, koji pruža savršen balans između urbanog života i privatnosti. Ovaj projekat se nalazi u mirnom i povučenom okruženju, ali je strateški smešten u blizini svih ključnih infrastrukturnih objekata i ustanova, što ga čini idealnim izborom za porodični život. Vrtić "Dunavski cvet" - 850 m Predškolska ustanova "Bambino" - 500 m Privatna predškolska ustanova "Lilipit" - 250 m Osnovna škola "Jožef Atila" - 800 m IDEA market - 50 m Wellness Training & Spa - 300 m Šordoš plaža - 800 m.





Stambeni krediti

OTP Banka Logo
Period otplate od
96 -360 meseca
NKS 4.75%
EKS 5.74%
Fiksna kamatna stopa
  • Bez troškova obrade kredita
550 € / mesečno
Saznaj više
Pogledaj detaljnije i menjaj uslove kreditiranja na
stranici kreditnih kalkulatora
Pogledaj detaljnije
* Prikazana rata odnosi se na maksimalni period otplate. Kalkulator je informativnog karaktera.

Keš krediti

RSDIznos kredita

Period otplate

13 meseci
OTP Banka Logo
Period otplate od 13 -71 mesec
NKS 10.55%
EKS 12.53%
  • Za klijente banke
od 12.261 RSD
mesečno
Saznaj više

Osiguranje domaćinstva online

Osiguraj svoje domaćinstvo u slučaju požara...