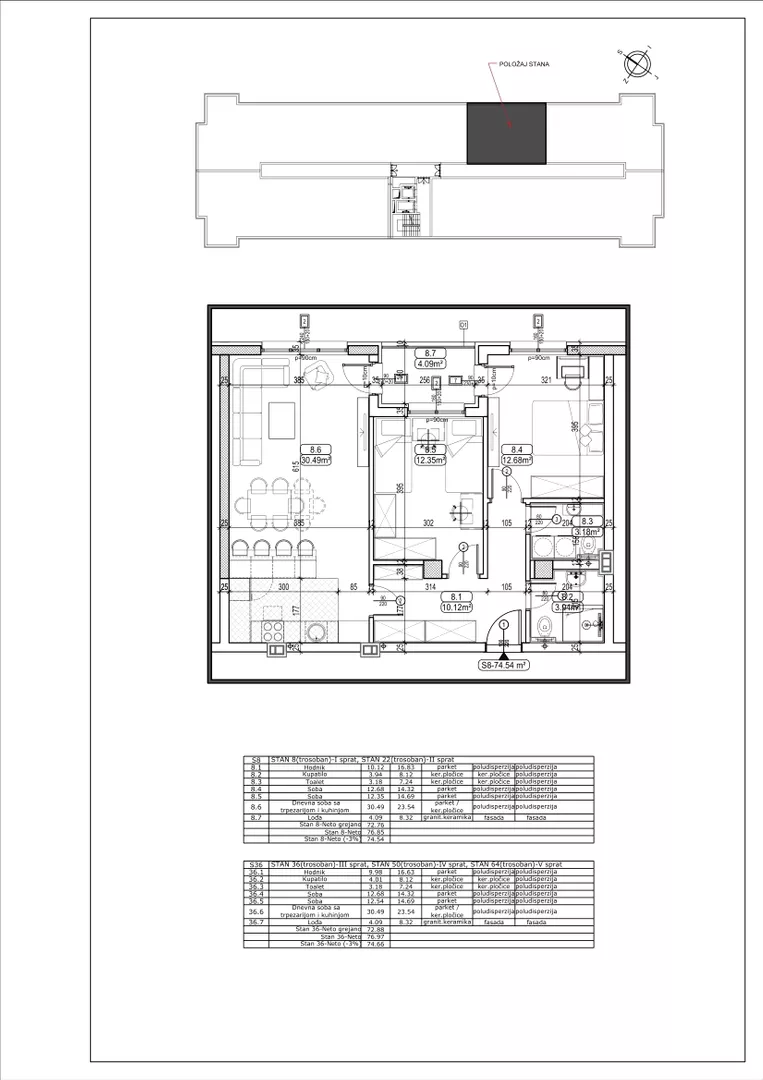
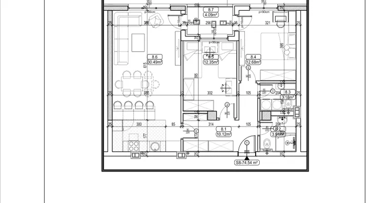
Trosoban stan na prodaju, Novogradnja, Strelište, 123189€, 74.66m²
Strelište, Gradske lokacije, Pančevo




od 123.189 €
1.650 € / m2
Trosoban stan
74.66m²
5/6 spratova
Uknjiženo
- Status izgradnje: U izgradnji
- Status prodaje: Na prodaju
- Centralno grejanje
- Materijal gradnje: Termo blok
- Stolarija: PVC
- Podovi: Pločice
- Energetski pasoš: Da
- Prodaja parkinga: Dostupno
- 2 lifta
- Kalorimetar: Da
- Godina izgradnje: 2027.
Ovaj oglas je deo projekta
Radivoja Koraća 13
Milenkovic GradnjaStrelište, Gradske lokacije, Pančevo

O projektu oglašivača Milenkovic Gradnja
Novi projekat renomirane građevinske firme Milenković-Gradnja DOO iz Pančeva gradi se u Pančevu, u naselju Strelište, u ulici Radivoja Koraća broj 13. 78 stanova svih struktura gradi se u skladu sa najsavremenijim standardima i obezbediće Vam maksimalan komfor u odlično projektovanom prostoru. Pogledajte našu ponudu i pronađite svoj novi dom!
Stambeni krediti
- Period otplate od
96 -360 meseca
- NKS 4.34%
Kombinovana kamatna stopa
- Bez troškova obrade kredita
- Odobrenje kredita do 48h
490 € / mesečno
Saznaj više- Period otplate od
96 -360 meseca
- NKS 4.75%
EKS 5.74%
Fiksna kamatna stopa
- Bez troškova obrade kredita
Pogledaj detaljnije i menjaj uslove kreditiranja na
stranici kreditnih kalkulatora
stranici kreditnih kalkulatora
Keš krediti
RSDIznos kredita
Period otplate
13 meseciOsiguranje domaćinstva online
Osiguraj svoje domaćinstvo u slučaju požara...