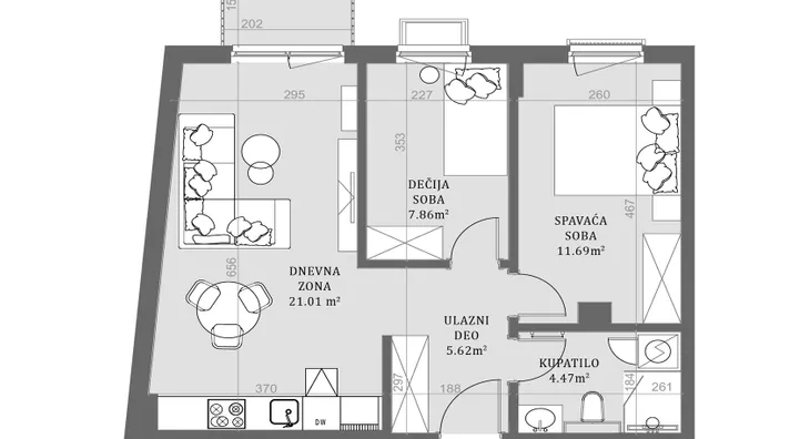
Dvosoban stan na prodaju, Novogradnja, Prozivka, 53.79m²







Cena na upit
- Status izgradnje: U izgradnji
- Status prodaje: Na prodaju
- Centralno grejanje
- Energent: Gas
- Materijal gradnje: Drugo
- Stolarija: PVC
- Podovi: Parket
- Energetski pasoš: Da
- Prodaja parkinga: Dostupno
- 4 lifta
- Kalorimetar: Ne
- Godina izgradnje: 2025.
Ovaj oglas je deo projekta
Urban Oasis

O projektu oglašivača Bomax
URBAN OASIS će obuhvatiti ukupno 181 stambenu jedinicu, dizajniranu tako da zadovolji potrebe različitih stilova života. Bez obzira na to da li tražite moderan stan za sebe ili investicionu nekretninu, ovaj projekat nudi raznovrsne opcije koje će ispuniti sva vaša očekivanja. Lokacija koja nudi sve Uz savršenu povezanost sa svim delovima grada, URBAN OASIS pruža stanarima blizinu svih ključnih sadržaja - škola, vrtića, trgovina, parkova i zdravstvenih ustanova. Istovremeno, osmišljen je tako da obezbedi mir i privatnost, stvarajući pravo urbano utočište za porodice i pojedince. Savremeni luksuz i funkcionalnost Svaki aspekt ovog projekta osmišljen je s posebnim akcentom na kvalitet gradnje i detalje koji unapređuju svakodnevni život. Od modernih arhitektonskih rešenja do energetski efikasnih materijala i pametnih tehnologija, URBAN OASIS obećava jedinstven doživljaj stanovanja.
Stambeni krediti
- Period otplate od
96 -360 meseca
- NKS 4.34%
Kombinovana kamatna stopa
- Bez troškova obrade kredita
- Odobrenje kredita do 48h
- Period otplate od
96 -360 meseca
- NKS 4.75%
EKS 5.74%
Fiksna kamatna stopa
- Bez troškova obrade kredita
stranici kreditnih kalkulatora
Keš krediti
Period otplate
13 meseci