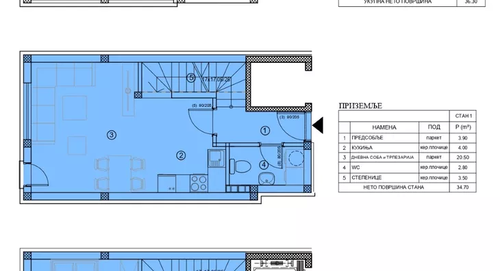
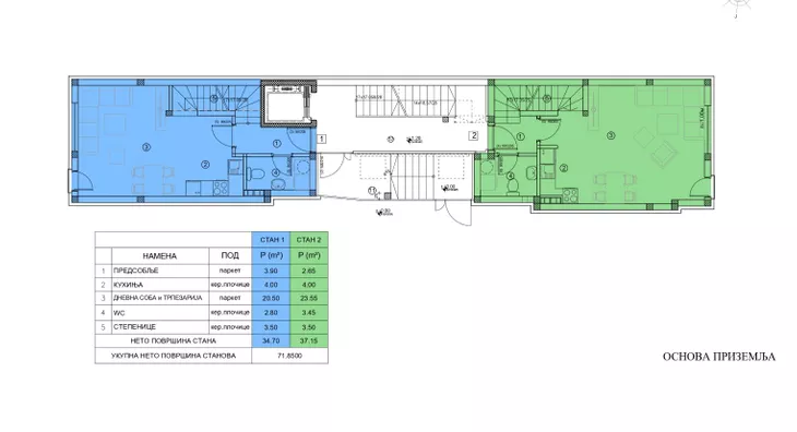
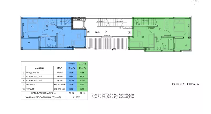
Troiposoban stan na prodaju, Novogradnja, Centar, 101.15m²
Centar, Medijana, Gradske lokacije, Niš








Cena na upit
Troiposoban stan
101.15m²
Prizemlje/3 sprata
Uknjiženo
- Status izgradnje: Useljivo
- Status prodaje: Na prodaju
- Etažno grejanje
- Materijal gradnje: Monolit
- Stolarija: PVC
- Podovi: Parket
- Energetski pasoš: Da
- Prodaja parkinga: Dostupno
- 1 lift
- Kalorimetar: Da
- Godina izgradnje: 2024.
Ovaj oglas je deo projekta
Cara Uroša
Milenović gradnjaCentar, Medijana, Gradske lokacije, Niš

O projektu oglašivača Milenović gradnja
Milenović gradnja
Niš, Centar
Cara Uroša
Useljiva novogradnja u centru Niša. U blizini 4 fakulteta - Pravni, Ekonomski, Zaštita na radu i DIF.
Stanovi su odlični i za poslovni prostor, kancelariju, školicu, kliniku. Zgrada poseduje video nadzor. Svaka soba u stanu poseduje klima uredjaj.Kablovska (MTS i SBB).
Stambeni krediti

- Period otplate od
96 -360 meseca
- NKS 4.75%
EKS 5.74%
Fiksna kamatna stopa
- Bez troškova obrade kredita
298 € / mesečno
Saznaj višePogledaj detaljnije i menjaj uslove kreditiranja na
stranici kreditnih kalkulatora
stranici kreditnih kalkulatora
Keš krediti
RSDIznos kredita
Period otplate
13 meseciOsiguranje domaćinstva online
Osiguraj svoje domaćinstvo u slučaju požara...
