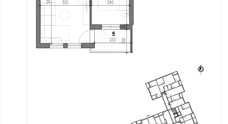
Jednoiposoban stan na prodaju, Novogradnja, Mirijevo, 88817€, 41.31m²






od 88.817 €
2.150 € / m2
- Status izgradnje: U izgradnji
- Status prodaje: Prodato
- Prostorije: kupatilo, terasa
- Norveški radijatori
- Energent: Struja
- Materijal gradnje: Građevinski blok
- Stolarija: PVC
- Podovi: Parket
- Energetski pasoš: Da
- Prodaja parkinga: Dostupno
- 2 lifta
- Kalorimetar: Ne
- Godina izgradnje: 2026.
Ovaj oglas je deo projekta
MIRIJEVO HILL VIEW

O projektu oglašivača MIKON COMPANY DOO
Nov projekat na vrhu Mirijeva sa pogledom na Dunav i Avalu. U okviru projekta se gradi Nova ulica, te objekat izlazi na dve ulice: Novu ulicu i ulicu Podmorničara Đorđa Mitrovića. Ova lokacija, dovoljno udaljena i zelenilom zaštićena od saobraćajnica, pruža jedinstvenu mogućnost za moderno i komforno stanovanje u ambijentu mira i tišine u okruženju prepunom zelenila, na obodu velikog naselja koje ima sve sadržaje za šetnju,sport,rekreaciju, igru i zdravo odrastanje dece. Istovremeno, gotovo svi sadržaji neophodni za zadovoljavanje svakodnevnih porodičnih potreba- OŠ Pavle Savić, vrtići za decu, pošta, banke, Maxi, snabdevanje, pijaca, Dom Zdravlja, policijska stanica, autobuske linije, buduće stanice Metro-a… nalaze se u krugu od 100m – 300 m udaljenosti od lokacije što je čini izuzetno atraktivnom za udoban i zdrav porodični život. Objekat je slobodnostojeći, osunčan i provetren sa svih strana. Udaljen je više desetina metara od susednih objekata tako da se iz svakog stana pruža lep pogled na okolno zelenilo i dalje okruženje uz potpuno očuvanu intimu stanovanja. Spratnost je prizemlje, tri sprata i povučeni sprat, objekat ima dve lamele, dva ulaza, dva lifta i dva stepeništa koji se spuštaju u dva nivoa podzemne garaže koja ima čak 155 parking mesta. U garažu se ulazi lako i direktno kolskom rampom a opremljena je sistemima za ventilaciju i protivpožarnu zaštitu. Fasada zgrade je moderna i elegantna prijatnih toplih boja u skladu sa namenom objekta, takođe na fasadi je projektovano diskretno, dekorativno noćno osvetljenje. Poseban akcenat je na termo i hidro izolaciji, objekat je visokog nivoa energetske efikasnosti. Stanovi su projektovani u skladu sa zahtevima modernog stanovanja , svi imaju terase. Dnevni prostor čine dnevna soba, trpezarija i kuhinja kao jedna celina. Prostorije su pravilnog oblika, funkcionalne i prozračne. Stanovi su različitih struktura. Opremaće se, savremenim, kvalitetnim atestiranim materijalima renomiranih proizvođača. Prozori su petokormna PVC stolarija, keramika je granitna I klase, kupatila imaju tuš kabine sa staklom i linijskim slivnikom, parket hrastov debljine 22mm, grejanje je na struju. Rok završetka radova novembar 2026. Cene stanova su sa pdv-om, te kupci prvog stana imaju pravo povraćaja PDVa. Nemamo uslove za kredit za mlade.
Stambeni krediti
- Period otplate od
96 -360 meseca
- NKS 4.34%
Kombinovana kamatna stopa
- Bez troškova obrade kredita
- Odobrenje kredita do 48h
- Period otplate od
96 -360 meseca
- NKS 4.50%
EKS 5.74%
Fiksna kamatna stopa
- Bez troškova obrade kredita
stranici kreditnih kalkulatora
Keš krediti
Period otplate
13 meseci