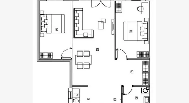
Trosoban stan na prodaju, Novogradnja, Mirijevo III, 166425€, 79.25m²
Mirijevo III, Mirijevo, Zvezdara opština, Beograd


od 166.425 €
2.100 € / m2
Trosoban stan
79.25m²
3/4 sprata
Nije uknjiženo
- Status izgradnje: U izgradnji
- Status prodaje: Na prodaju
- Podno grejanje
- Energent: Struja
- Materijal gradnje: Termo blok
- Stolarija: PVC
- Podovi: Tarket
- Energetski pasoš: Da
- Prodaja parkinga: Dostupno
- 4 lifta
- Kalorimetar: Ne
- Godina izgradnje: 2026.
Ovaj oglas je deo projekta
Mirijevski vrtovi
KvadratićMirijevo III, Mirijevo, Zvezdara opština, Beograd

O projektu oglašivača Kvadratić
Mirijevski vrtovi – Vaša Oaza mira u srcu zelenog Mirijeva. U modernom i pažljivo projektovanom stambenom kompleksu nudimo savršenu kombinaciju urbanog života i mirnog, porodičnog okruženja. Zgrade visokog standarda, sa elegantnim fasadama, kvalitetnom stolarijom, prvoklasnom keramikom i funkcionalnim rasporedima, pružaju maksimalan komfor i dugoročnu vrednost. Stanovnici Mirijevskih vrtova uživaće u lepo uređenim zelenim površinama, modernoj infrastrukturi i mirnom okruženju, uz odličnu povezanost sa ostatkom grada. Garažna mesta, lifti najnovije generacije, sigurnosni sistemi i savremeni pešački pristupi pružaju dodatnu sigurnost i udobnost.
Stambeni krediti
- Period otplate od
96 -360 meseca
- NKS 4.34%
Kombinovana kamatna stopa
- Bez troškova obrade kredita
- Odobrenje kredita do 48h
662 € / mesečno
Saznaj više- Period otplate od
96 -360 meseca
- NKS 4.75%
EKS 5.74%
Fiksna kamatna stopa
- Bez troškova obrade kredita
Pogledaj detaljnije i menjaj uslove kreditiranja na
stranici kreditnih kalkulatora
stranici kreditnih kalkulatora
Keš krediti
RSDIznos kredita
Period otplate
13 meseciOsiguranje domaćinstva online
Osiguraj svoje domaćinstvo u slučaju požara...
