Reklama

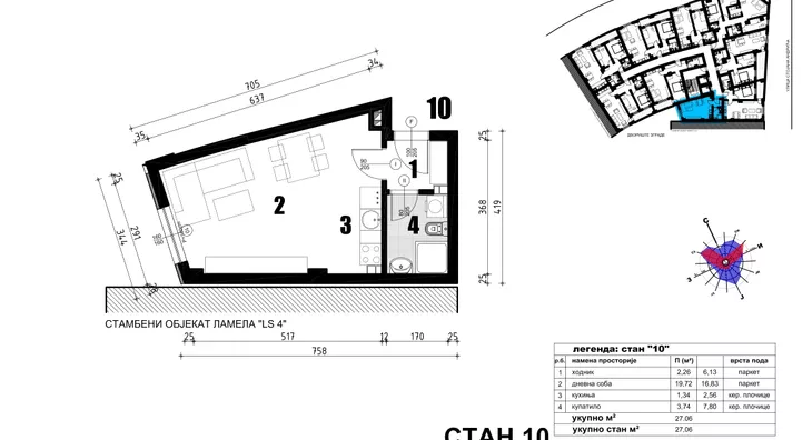
Garsonjera na prodaju, Novogradnja, Ledena Stena, 47355€, 27.06m²

Ledena Stena, Palilula, Gradske lokacije, Niš
Garsonjera | 4zida
Garsonjera | 4zida

od 47.355 €

1.750 € / m2

Garsonjera
27.06m²
2/6 spratova
U procesu uknjižavanja

O stanu
  • Status izgradnje: U izgradnji
  • Status prodaje: Na prodaju
O zgradi
  • Etažno grejanje
  • Materijal gradnje: Nepoznato
  • Stolarija: PVC
  • Podovi: Parket
  • 4 lifta
  • Kalorimetar: Ne
  • Godina izgradnje: 2024.

Ovaj oglas je deo projekta
Sunny Hill by Vagres

Vagres ing d.o.o.Ledena Stena, Palilula, Gradske lokacije, Niš
pozadinska slika

O projektu oglašivača Vagres ing d.o.o.

PRODAJA STANOVA DIREKTNO OD INVESTITORA - BEZ AGENCIJSKE PROVIZIJE Sunny Hill - Vagres ing d.o.o. Na lokaciji Ledena Stena planirana je izgradnja stambeno-poslovnog kompleksa koji čine sedam lamela spratnosti 2Po+P+6. Planirani stambeno-poslovni objekat okružuju ulica Bubanjski heroji, ulica Petra Aranđelovića, ulica Stojana Andrića i ulica Belotinačka. Objekat ima direktan pristup na površinu javne saobraćajnice, Bubanjski Heroji na severozapadu, ulica Petra Aranđelovića na severoistoku, ulica Stojana Andrića jugoistoku i ulica Belotinačka na jugozapadu. Ukupna površina parcele je 7.792m2. Parkiranje je planirano na parceli u podzemnim garažama i to za svaki stan po jedno parking mesto, i jedno parking mesto na 70m2 korisne površine poslovnog prostora. Ukupan broj parking i garažnih mesta je trista devedest I jedno (391) od čega dvadeset sedam (27) parking mesta smeštena na parteru su predviđena za lica sa posebnim potrebama. Na parceli je predviđena ukupna površina pod zelenilom, travom, niskim rastinjem što čini 13,65% od ukupne površine građevisnke parcele. Ispod površina namenjenih zelenilu nema podzemnih etaža, odnosno podrumskih prostorija. Stanovi u ponudi različitih veličina (30-100m2) i rasporedom prostorija koje savršeno odgovaraju standardnim veličinama nameštaja.





Stambeni krediti

NLB Komercijalna Banka Logo
Period otplate od
96 -360 meseca
NKS 4.34%
Kombinovana kamatna stopa
  • Bez troškova obrade kredita
  • Odobrenje kredita do 48h
188 € / mesečno
Saznaj više
OTP Banka Logo
Period otplate od
96 -360 meseca
NKS 4.75%
EKS 5.74%
Fiksna kamatna stopa
  • Bez troškova obrade kredita

Saznaj više
Pogledaj detaljnije i menjaj uslove kreditiranja na
stranici kreditnih kalkulatora
Pogledaj detaljnije
* Prikazana rata odnosi se na maksimalni period otplate. Kalkulator je informativnog karaktera.

Keš krediti

RSDIznos kredita

Period otplate

13 meseci
OTP Banka Logo
Period otplate od 13 -71 mesec
NKS 10.55%
EKS 12.53%
  • Za klijente banke
od 12.261 RSD
mesečno
Saznaj više

Osiguranje domaćinstva online

Osiguraj svoje domaćinstvo u slučaju požara...