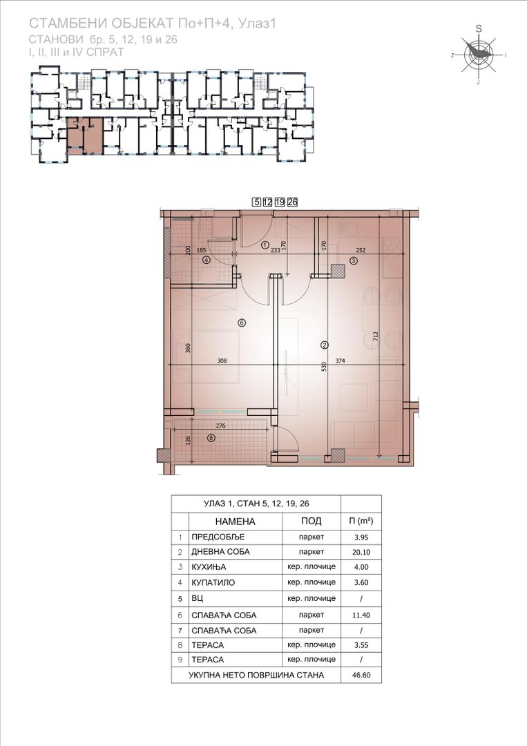
Trosoban stan na prodaju, Novogradnja, Kovanluk, 98.14m²





Cena na upit
- Status izgradnje: U izgradnji
- Status prodaje: Na prodaju
- Podno grejanje
- Energent: Struja
- Materijal gradnje: Termo blok
- Stolarija: PVC
- Podovi: Pločice
- Energetski pasoš: Da
- Prodaja parkinga: Dostupno
- 2 lifta
- Kalorimetar: Ne
- Godina izgradnje: 2025.
Ovaj oglas je deo projekta
Durllan 2

O projektu oglašivača New Line
Na prodaju je savremen porodični kompleks u Nišu, koji čine dve manje stambene zgrade osmišljene po principima moderne, tehnološki napredne gradnje. Posebna pažnja posvećena je sigurnosti korisnika, komforu stanovanja i prijatnom iskustvu življenja. U projekat su uključene najnovije tehnologije, sa fokusom na električno podno grejanje, koje omogućava uštede i do 40%. Okruženje je kreirano kao harmoničan prostor idealan za porodični ritam, sa omanjim rekreativnim sadržajima za decu, zonom za fizičku aktivnost odraslih kao i prostor za druženje namenjen isključivo stanarima. Stanovi su projektovani tako da obezbede logičan i funkcionalan raspored, optimalno korišćenje svake kvadratne jedinice. Korišćenjem kvalitetnih materijala za zvučnu izolaciju, budućim stanarima biće osiguran prijatan mir bez ometajućih zvukova iz susednih stanova i spoljašnje sredine. Takođe stambene jedinice donose obilje prirodne svetlosti koja čini prostor svetlim i prijatnim. Zelenilo i savremeno planiranje prostora stvaraju opušten i prijatan ambijent za svakodnevne aktivnosti. Stanovi se mogu rezervisati dok je objekat još u izgradnji, uz posebne pogodnosti za rane investitore. Za sve dodatne informacije možete nas kontaktirati telefonom.
Stambeni krediti
- Period otplate od
96 -360 meseca
- NKS 4.50%
EKS 5.74%
Fiksna kamatna stopa
- Bez troškova obrade kredita
- Period otplate od
96 -360 meseca
- NKS 4.34%
Kombinovana kamatna stopa
- Bez troškova obrade kredita
- Odobrenje kredita do 48h
stranici kreditnih kalkulatora
Keš krediti
Period otplate
13 meseci