Reklama

Dvosoban stan na prodaju, Novogradnja, Kovanluk, 52.06m²

Kovanluk, Palilula, Gradske lokacije, Niš
Dvosoban stan | 4zida
Dvosoban stan | 4zida
Video
Dvosoban stan | 4zida
Dvosoban stan | 4zida
Dvosoban stan | 4zida

Cena na upit

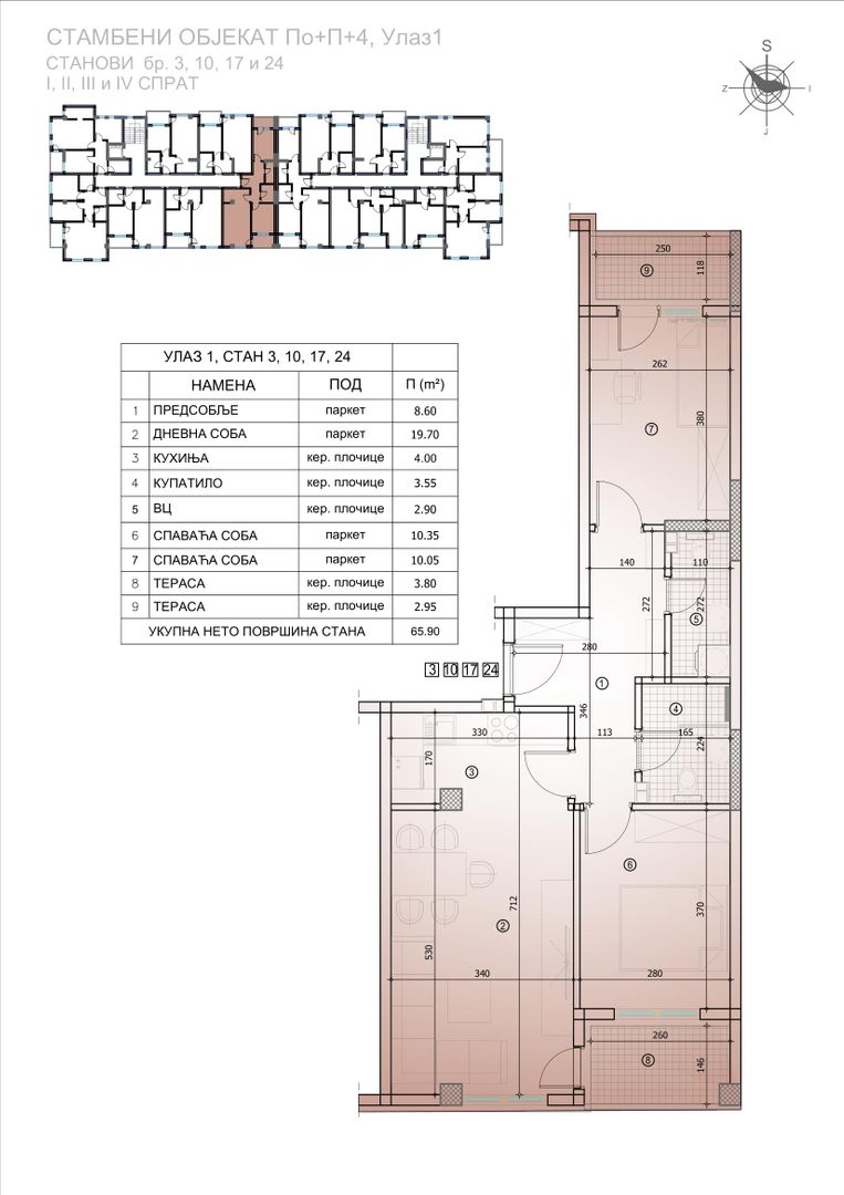
Dvosoban stan
52.06m²
2/4 sprata
Uknjiženo

O stanu
  • Status izgradnje: U izgradnji
  • Status prodaje: Na prodaju
O zgradi
  • Podno grejanje
  • Energent: Struja
  • Materijal gradnje: Termo blok
  • Stolarija: PVC
  • Podovi: Pločice
  • Energetski pasoš: Da
  • Prodaja parkinga: Dostupno
  • 2 lifta
  • Kalorimetar: Ne
  • Godina izgradnje: 2025.

Ovaj oglas je deo projekta
Durllan 2

New LineKovanluk, Palilula, Gradske lokacije, Niš
pozadinska slika

O projektu oglašivača New Line

Na prodaju je savremen porodični kompleks u Nišu, koji čine dve manje stambene zgrade osmišljene po principima moderne, tehnološki napredne gradnje. Posebna pažnja posvećena je sigurnosti korisnika, komforu stanovanja i prijatnom iskustvu življenja. U projekat su uključene najnovije tehnologije, sa fokusom na električno podno grejanje, koje omogućava uštede i do 40%. Okruženje je kreirano kao harmoničan prostor idealan za porodični ritam, sa omanjim rekreativnim sadržajima za decu, zonom za fizičku aktivnost odraslih kao i prostor za druženje namenjen isključivo stanarima. Stanovi su projektovani tako da obezbede logičan i funkcionalan raspored, optimalno korišćenje svake kvadratne jedinice. Korišćenjem kvalitetnih materijala za zvučnu izolaciju, budućim stanarima biće osiguran prijatan mir bez ometajućih zvukova iz susednih stanova i spoljašnje sredine. Takođe stambene jedinice donose obilje prirodne svetlosti koja čini prostor svetlim i prijatnim. Zelenilo i savremeno planiranje prostora stvaraju opušten i prijatan ambijent za svakodnevne aktivnosti. Stanovi se mogu rezervisati dok je objekat još u izgradnji, uz posebne pogodnosti za rane investitore. Za sve dodatne informacije možete nas kontaktirati telefonom.





Stambeni krediti

OTP Banka Logo
Period otplate od
96 -360 meseca
NKS 4.50%
EKS 5.74%
Fiksna kamatna stopa
  • Bez troškova obrade kredita

Saznaj više
NLB Komercijalna Banka Logo
Period otplate od
96 -360 meseca
NKS 4.34%
Kombinovana kamatna stopa
  • Bez troškova obrade kredita
  • Odobrenje kredita do 48h
994 € / mesečno
Saznaj više
Pogledaj detaljnije i menjaj uslove kreditiranja na
stranici kreditnih kalkulatora
Pogledaj detaljnije
* Prikazana rata odnosi se na maksimalni period otplate. Kalkulator je informativnog karaktera.

Keš krediti

RSDIznos kredita

Period otplate

13 meseci
OTP Banka Logo
Period otplate od 13 -71 mesec
NKS 10.55%
EKS 12.53%
  • Za klijente banke
od 12.261 RSD
mesečno
Saznaj više

Osiguranje domaćinstva online

Osiguraj svoje domaćinstvo u slučaju požara...