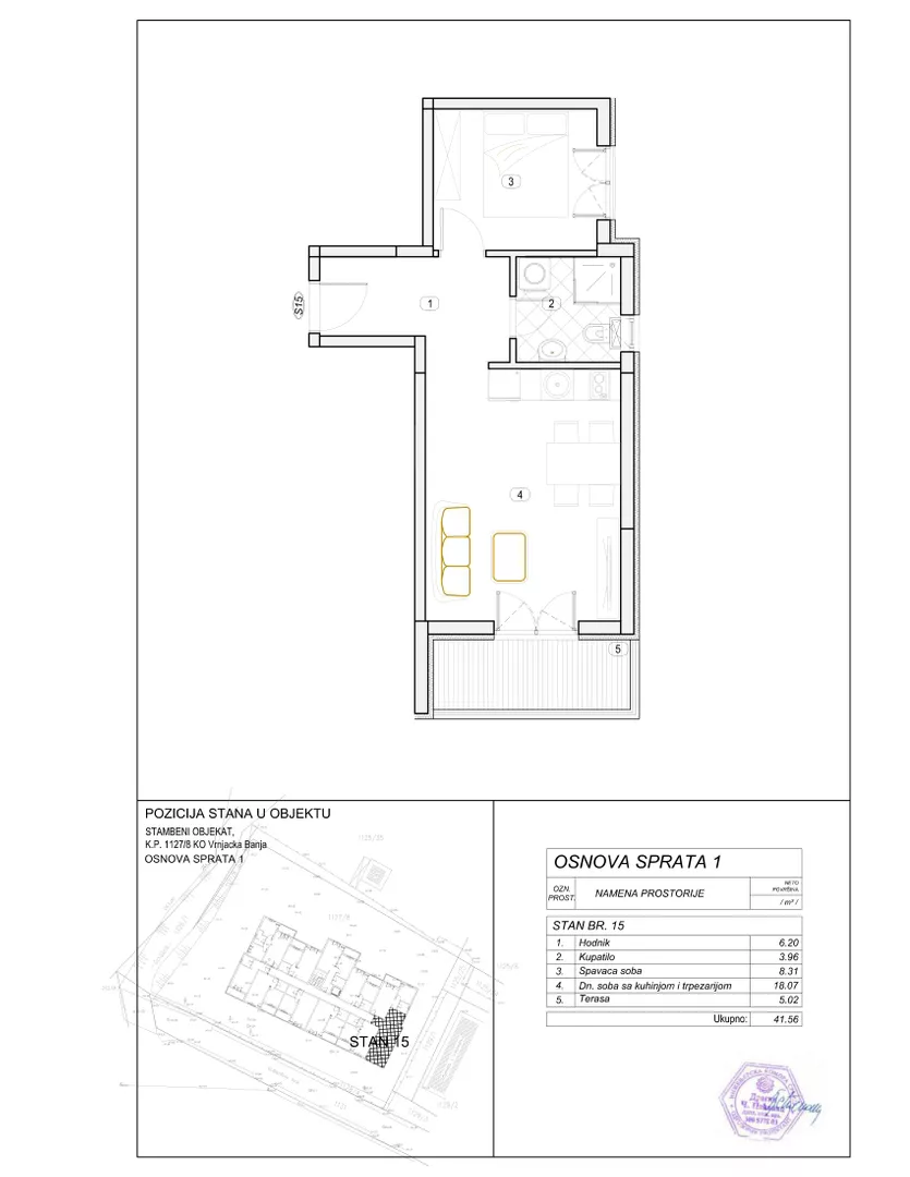
Dvosoban stan na prodaju, Novogradnja, Gradske lokacije, 41.56m²
Gradske lokacije, Vrnjačka Banja


Cena na upit
Dvosoban stan
41.56m²
1/5 spratova
Nije uknjiženo
- Status izgradnje: U izgradnji
- Status prodaje: Na prodaju
- Etažno grejanje
- Materijal gradnje: Građevinski blok
- Stolarija: Aluminijum
- Podovi: Parket
- Prodaja parkinga: Dostupno
- 1 lift
- Kalorimetar: Ne
- Godina izgradnje: 2025.
Ovaj oglas je deo projekta
David Lux 2
Banja nekretnine InvestitorGradske lokacije, Vrnjačka Banja

O projektu oglašivača Banja nekretnine Investitor
Nadomak izvora Slatina gradi se stambeni objekat koji će vašu pažnju privući svojim otmenim izgledom , atraktivnom lokacijom bez saobraćajne buke i pažljivo osmišljenim stambenim jedinicama.
David lux stanovi će Vam pružiti dane nezaboravnog odmora koje će Vam omogućiti neposredna blizina svega onog što Vrnjačka Banja može da ponudi.
Naša agencija Vam nudi 54 stambene jedinice od 24 m2 -48 m2, od kojih je .
Svi stanovi imaju terasu.
Od dodatnih sadržaja planirana je izgradnja otvorenog bazena, info pulta i recepcije.
Stambeni krediti

- Period otplate od
96 -360 meseca
- NKS 4.75%
EKS 5.74%
Fiksna kamatna stopa
- Bez troškova obrade kredita
793 € / mesečno
Saznaj višePogledaj detaljnije i menjaj uslove kreditiranja na
stranici kreditnih kalkulatora
stranici kreditnih kalkulatora
Keš krediti
RSDIznos kredita
Period otplate
13 meseciOsiguranje domaćinstva online
Osiguraj svoje domaćinstvo u slučaju požara...
