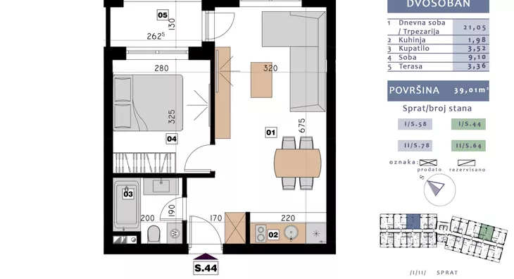
Dvosoban stan na prodaju, Novogradnja, Gradske lokacije, 39.01m²
Gradske lokacije, Vrnjačka Banja


Cena na upit
Dvosoban stan
39.01m²
1/5 spratova
Nije uknjiženo
- Status izgradnje: U izgradnji
- Status prodaje: Na prodaju
- Etažno grejanje
- Materijal gradnje: Građevinski blok
- Stolarija: Aluminijum
- Podovi: Parket
- Prodaja parkinga: Dostupno
- 2 lifta
- Kalorimetar: Ne
- Godina izgradnje: 2025.
Ovaj oglas je deo projekta
Aurora Residency
Banja nekretnine InvestitorGradske lokacije, Vrnjačka Banja

O projektu oglašivača Banja nekretnine Investitor
U nastavku Vrnjačkog parka, nalazi se Japanski vrt koji spajanjem dve kulture od 2011 bogati floru i faunu Vrnjačke Banje i nastoji da svojim specificnim okruženjem pruži dodatni mir svim posetiocima.
Baš u ovom okruženju nalaziće se stambeni objekat ,, Aurora Residency ” koji će svojom pozicijom svim vlasnicima pružiti neverovatan zvuk prirode.
Stambeni krediti
- Period otplate od
96 -360 meseca
- NKS 4.75%
EKS 5.74%
Fiksna kamatna stopa
- Bez troškova obrade kredita
- Period otplate od
96 -360 meseca
- NKS 4.34%
Kombinovana kamatna stopa
- Bez troškova obrade kredita
- Odobrenje kredita do 48h
597 € / mesečno
Saznaj višePogledaj detaljnije i menjaj uslove kreditiranja na
stranici kreditnih kalkulatora
stranici kreditnih kalkulatora
Keš krediti
RSDIznos kredita
Period otplate
13 meseciOsiguranje domaćinstva online
Osiguraj svoje domaćinstvo u slučaju požara...
