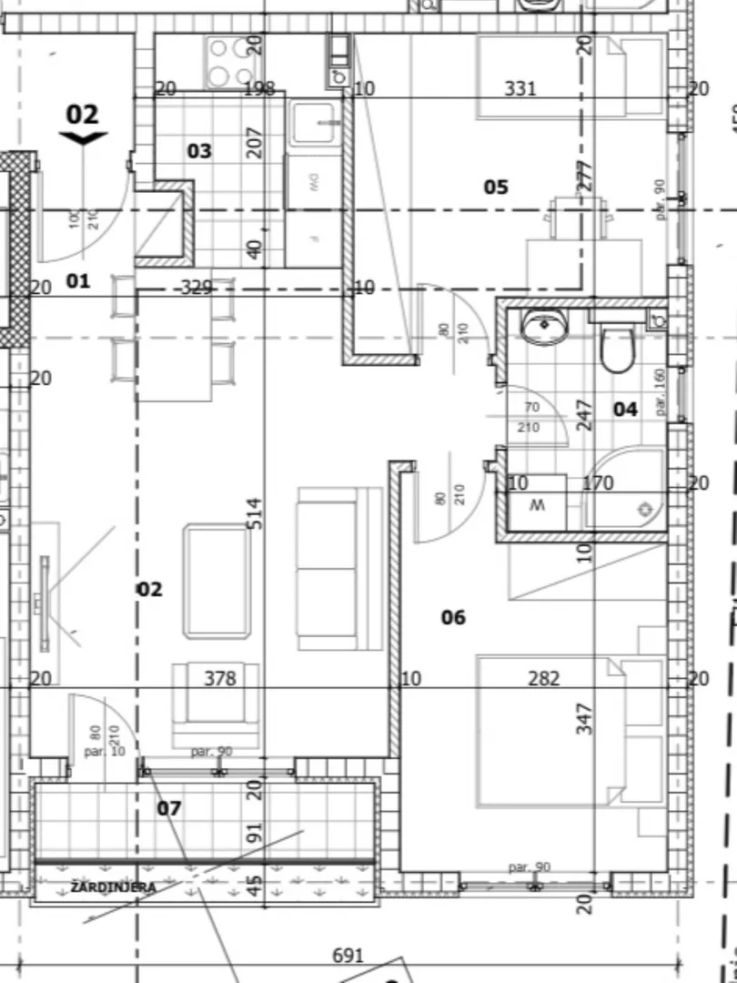
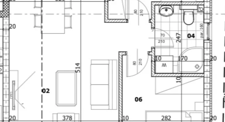
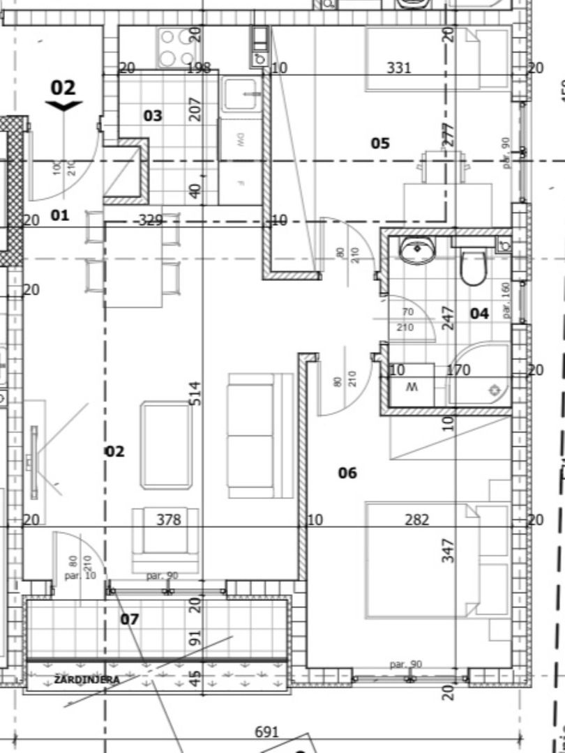
Dvoiposoban stan na prodaju, Novogradnja, Boleč, 88947€, 52.85m²


od 88.947 €
1.683 € / m2
- Status izgradnje: U izgradnji
- Status prodaje: Na prodaju
- Norveški radijatori
- Energent: Struja
- Materijal gradnje: Termo blok
- Stolarija: PVC
- Podovi: Tarket
- Energetski pasoš: Da
- Prodaja parkinga: Dostupno
- 1 lift
- Kalorimetar: Ne
- Godina izgradnje: 2027.
Ovaj oglas je deo projekta
Novogradnja Boleč

O projektu oglašivača LEVERAGE NEKRETNINE PRO
SPECIFIKACIJA MATERIJALA I OPREME OBJEKTA
Konstrukcija
Nosiva konstrukcija objekta izvedena je od armirano-betonskih ploča debljine 25 cm, projektovanih i izvedenih u skladu sa važećim propisima i statičkim proračunima.
Zidovi
Spoljašnji i unutrašnji zidovi zidani su termoblokom, čime se obezbeđuju odlična toplotna i zvučna izolacija, kao i visoka energetska efikasnost objekta.
Fasada
Fasada objekta izvedena je u demit sistemu sa termoizolacijom od stiropora debljine 10 cm i završnom dekorativnom fasadnom obradom otpornom na spoljne uticaje.
Stolarija
PVC prozori sa nemačkim PVC profilima i nemačkim okovima, sa višeslojnim termoizolacionim staklom. Ulazna i sobna vrata izrađena po meri, visokog kvaliteta izrade i modernog dizajna.
Podne obloge
U dnevnim i spavaćim sobama ugrađuje se tarket ili parket visokog kvaliteta, po izboru investitora.
U hodnicima, kuhinjama, kupatilima, terasama i drugim odgovarajućim prostorijama ugrađuje se granitna keramika prve klase, otporna na habanje, vlagu i temperaturne promene.
Grejanje
Grejanje objekta rešeno je putem norveških električnih radijatora, sa individualnom regulacijom temperature u svakoj prostoriji.
Lift
Okno lifta ima posebnu zvučnu i toplotnu izolaciju, izvedenu kombinacijom kamene vune i gips-kartonskih obloga, čime se smanjuje prenos buke i vibracija.
Krediti OTP banke
Saznaj više
Prikazana rata odnosi se na maksimalni period otplate. Kalkulator je informativnog karaktera.
* Nakon isteka 5 godina, prelazi se na varijabilnu kamatnu stopu

