Reklama

Jednoiposoban stan na prodaju, Novogradnja, Boleč, 52527€, 31.21m²

Boleč, Grocka opština, Beograd
Jednoiposoban stan | 4zida
Jednoiposoban stan | 4zida

od 52.527 €

1.683 € / m2

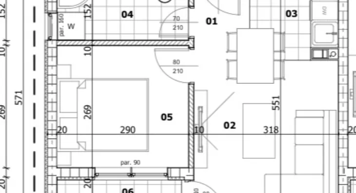
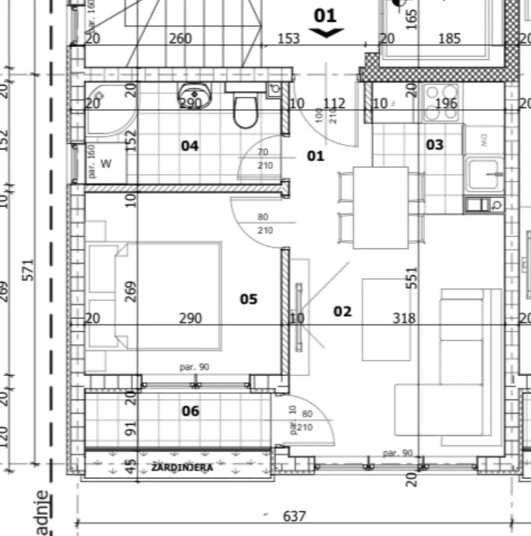
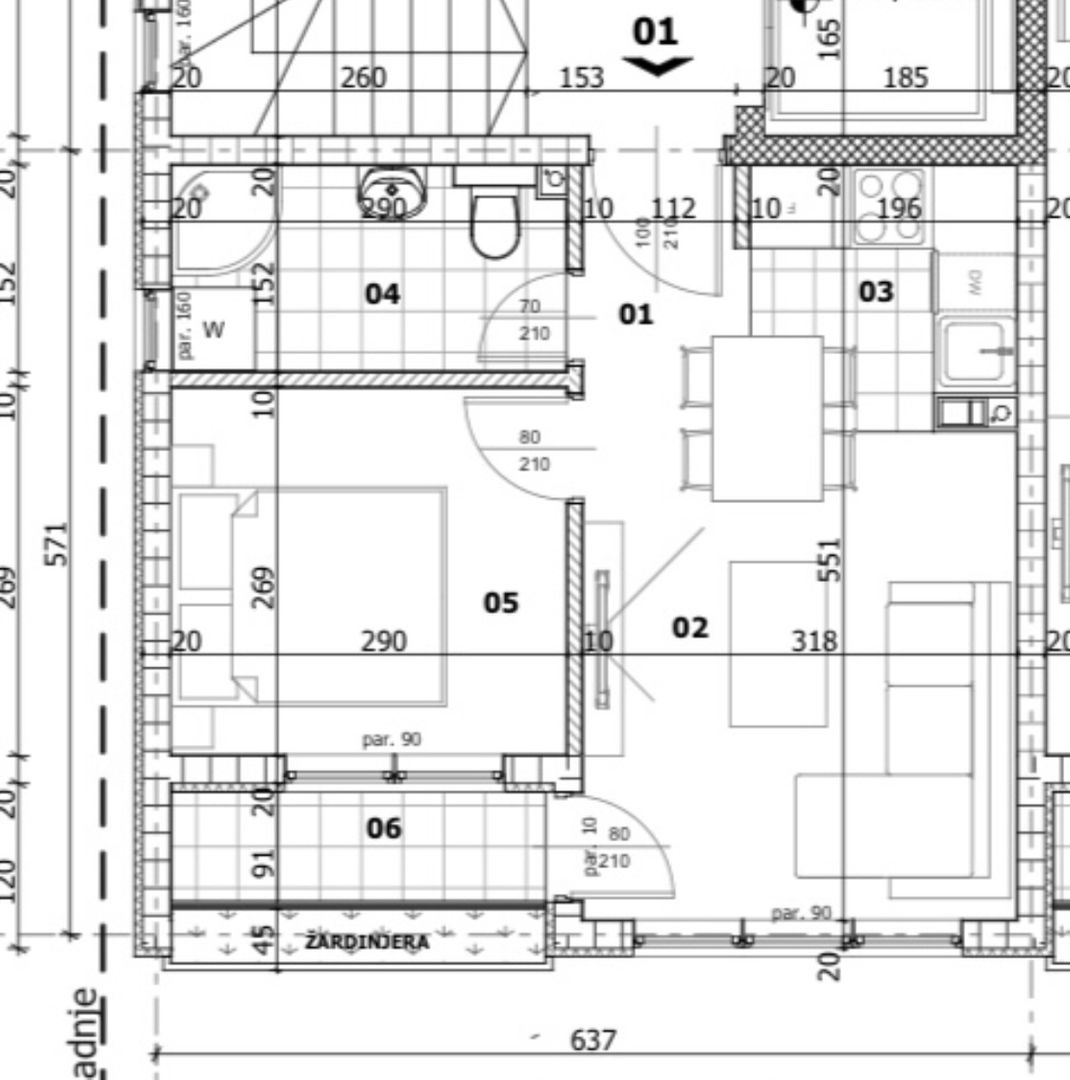
Jednoiposoban stan
31.21m²
1/3 sprata
Nije uknjiženo

O stanu
  • Status izgradnje: U izgradnji
  • Status prodaje: Na prodaju
O zgradi
  • Norveški radijatori
  • Energent: Struja
  • Materijal gradnje: Termo blok
  • Stolarija: PVC
  • Podovi: Tarket
  • Energetski pasoš: Da
  • Prodaja parkinga: Dostupno
  • 1 lift
  • Kalorimetar: Ne
  • Godina izgradnje: 2027.

Ovaj oglas je deo projekta
Novogradnja Boleč

LEVERAGE NEKRETNINE PROBoleč, Grocka opština, Beograd
pozadinska slika

O projektu oglašivača LEVERAGE NEKRETNINE PRO

SPECIFIKACIJA MATERIJALA I OPREME OBJEKTA

Konstrukcija

Nosiva konstrukcija objekta izvedena je od armirano-betonskih ploča debljine 25 cm, projektovanih i izvedenih u skladu sa važećim propisima i statičkim proračunima.

Zidovi

Spoljašnji i unutrašnji zidovi zidani su termoblokom, čime se obezbeđuju odlična toplotna i zvučna izolacija, kao i visoka energetska efikasnost objekta.

Fasada

Fasada objekta izvedena je u demit sistemu sa termoizolacijom od stiropora debljine 10 cm i završnom dekorativnom fasadnom obradom otpornom na spoljne uticaje.

Stolarija

PVC prozori sa nemačkim PVC profilima i nemačkim okovima, sa višeslojnim termoizolacionim staklom. Ulazna i sobna vrata izrađena po meri, visokog kvaliteta izrade i modernog dizajna.

Podne obloge

U dnevnim i spavaćim sobama ugrađuje se tarket ili parket visokog kvaliteta, po izboru investitora.

U hodnicima, kuhinjama, kupatilima, terasama i drugim odgovarajućim prostorijama ugrađuje se granitna keramika prve klase, otporna na habanje, vlagu i temperaturne promene.

Grejanje

Grejanje objekta rešeno je putem norveških električnih radijatora, sa individualnom regulacijom temperature u svakoj prostoriji.

Lift

Okno lifta ima posebnu zvučnu i toplotnu izolaciju, izvedenu kombinacijom kamene vune i gips-kartonskih obloga, čime se smanjuje prenos buke i vibracija.





Krediti OTP banke

OTP bank logo

Bez troškova obrade kredita
NKS 4.50% - EKS 5.74%
Period otplate 96 -360 meseca

Saznaj više

Prikazana rata odnosi se na maksimalni period otplate. Kalkulator je informativnog karaktera.

* Nakon isteka 5 godina, prelazi se na varijabilnu kamatnu stopu


Osiguranje domaćinstva online

Osiguraj svoje domaćinstvo u slučaju požara...