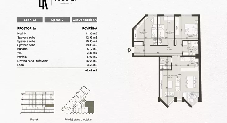
Četvorosoban stan na prodaju, Novogradnja, Beograd centar, 93.63m²


Cena na upit
- Status izgradnje: U izgradnji
- Status prodaje: Na prodaju
- Centralno grejanje
- Energent: Toplotna pumpa
- Materijal gradnje: Građevinski blok
- Stolarija: Aluminijum
- Podovi: Parket
- Energetski pasoš: Da
- Prodaja parkinga: Dostupno
- 2 lifta
- Kalorimetar: Ne
- Godina izgradnje: 2025.
Ovaj oglas je deo projekta
LA RUE 48

O projektu oglašivača BLOK REALTY DOO
LA RUE je novi stambeno-poslovni objekat smešten u srcu grada, na prestižnoj adresi Ruzveltova 48, koja svojim interesantnim i prepoznatljivim dizajnom i visokim kvalitetom gradnje, nudi idealno mesto za život urbanom orkuženju.
Vizija sofisticiranog življenja
La Rue 48 je novogradnja smeštena u neposrednoj blizini Vukovog spomenika, prestižnih fakulteta Beogradskog unuverziteta i sportskog centra Pionir. Ovo dinamično okruženje, prepoznatljivo po svojoj kulturi i energiji, savršeno je za one koji teže sofisticiranom načinu života, za one koji cene urbanost i komfor. Projekat je dizajniran s posebnom pažnjom prema detaljima, opremljen najprestižnijim materijalima, vrhunskog kvaliteta renomiranih evropskih proizvođača. Objekat krasi moderna fasada koja daje zgradi estetski privlačan izgled uz energetsku efikasnost. Ulaskom u zgradu zakoračićete u elegantan prostor obložen kamenim travertin pločama koji povećava osećaj komfora i luksuza.
U centru urbanog načina života
Ovo dinamično okruženje, savršeno je za one koji teže sofisticiranom načinu života. Lokacija pruža sve pogodnosti života u centralnom gradskom jezgru. Blizina fakulteta, predškolskih i školskih ustanova, parkova, sportskih centara, Paliluske i Kalinić pijace čini LA RUE pravom destinacijom za one koji cene urbanost i komfor.
Istražite sofisticirane enterijere
Redefinišemo sofisticirano življenje sa savremenom estetikom. Naš arhitektonski dizajn je simbol vizuelne privlačnosti, osmišljen da zadovolji zahteve onih koji vode brz način života.
Elegancija unutar zidova
Uronite u svet sofisticiranih dizajnerskih rešenja i udobnosti koja transformiše svaki prostor.
Savremeni standardi gradnje i Smart Sistemi
Koristeći se sistemom toplotnih pumpi (vazduh-voda ili vazduh-vazduh), kao i podnim i plafonskim panelima za grejanje i hlađenje, stanovi su konstruisani da pruže optimalnu temperaturu tokom cele godine. Regulacija temperature u stanovima se vrši putem smart sistema, omogućavajući Vam da prilagodite temperaturu prema potrebama.
Stambeni krediti

- Period otplate od
96 -360 meseca
- NKS 4.75%
EKS 5.74%
Fiksna kamatna stopa
- Bez troškova obrade kredita
stranici kreditnih kalkulatora
Keš krediti
Period otplate
13 meseci