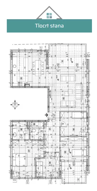
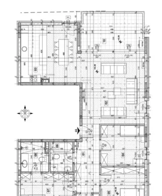
Četvorosoban stan na prodaju, Novogradnja, Adamovićevo Naselje, 140.3m²










Cena na upit
- Status izgradnje: U izgradnji
- Status prodaje: Na prodaju
- Podno grejanje
- Energent: Gas
- Materijal gradnje: Termo blok
- Stolarija: Aluminijum
- Podovi: Pločice
- Energetski pasoš: Da
- Prodaja parkinga: Dostupno
- 1 lift
- Kalorimetar: Da
- Godina izgradnje: 2026.
Ovaj oglas je deo projekta
Vila Mila II

O projektu oglašivača Miltop invest doo
Vila Mila II – novo poglavlje modernog stanovanja u Adamovićevom naselju
U mirnom delu Adamovićevog naselja u Novom Sadu, na adresi Braće Lučić 19, gradi se Vila Mila II, ekskluzivna urbana vila investitora Miltop Invest doo. Ovaj projekat spaja moderan dizajn, vrhunski kvalitet gradnje i udobnost života u manjoj, luksuznoj zgradi sa svega tri stambene jedinice.
Objekat ima tri etaže i pažljivo je projektovan da svakom stanu obezbedi komfor i privatnost. Prizemni stan poseduje sopstveno dvorište od okvirno 50 m², dok penthouse nudi krovnu terasu od čak 170 m². U suterenu se nalaze prostrane ostave od 15 do 25 m², a u dvorištu natkrivena parking mesta dostupna za kupovinu.
Vila je građena od termobloka, sa PVC stolarijom, parketom i podnim grejanjem na struju. Projekat poseduje energetski pasoš i kalorimetre, što garantuje visoku efikasnost i niske troškove održavanja. Završetak izgradnje planiran je do kraja 2026. godine.
Vila Mila II nudi savršen spoj privatnosti, elegancije i modernog komfora – idealno mesto za one koji žele miran, ali urbani život u srcu Novog Sada.
Stambeni krediti
- Period otplate od
96 -360 meseca
- NKS 4.50%
EKS 5.74%
Fiksna kamatna stopa
- Bez troškova obrade kredita
- Period otplate od
96 -360 meseca
- NKS 4.34%
Kombinovana kamatna stopa
- Bez troškova obrade kredita
- Odobrenje kredita do 48h
stranici kreditnih kalkulatora
Keš krediti
Period otplate
13 meseci