Lokal za izdavanje, Dimitrija Tucovića, 3.000€, 180m²


















3.000 €
- Prizemlje
- Opremljenost: Prazno - kanalizacija
- Oglas oglašava agencija pod reg. brojem 167
- Kanalizacija
Opis oglasa
Zvezdara, Đeram pijaca - Dimitrija Tucovića
lokal, 180m2, prizemlje, veliki izlog, bašta, parking
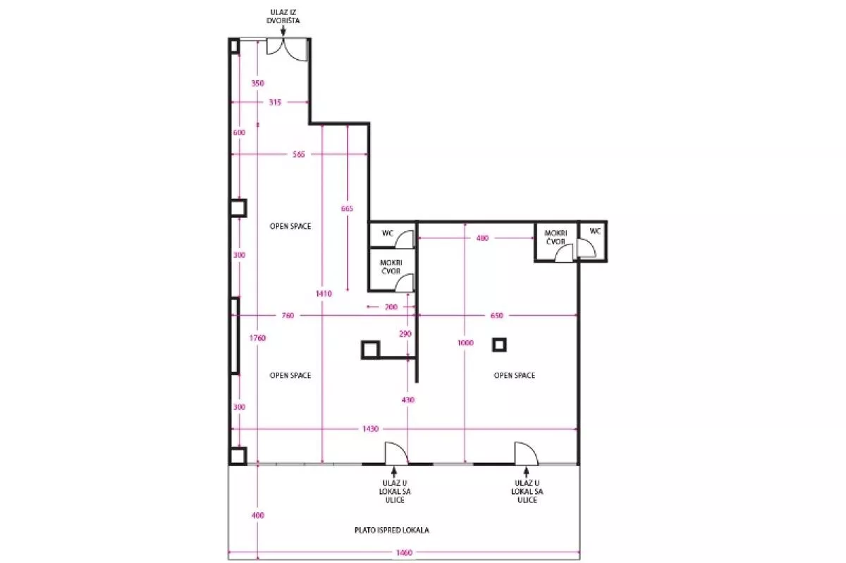
Izdaje se izuzetno atraktivan lokal površine 180 m², idealan za ugostiteljstvo, maloprodaju, salon, showroom, kliniku, market ili kancelarijski prostor.
Karakteristike prostora:
• Veliki, reprezentativni ulični izlog (preko 15m)
• Dva odvojena ulaza (glavni + servisni)
• Poseban ulaz za utovar i istovar robe
• Mogućnost korišćenja ogromne bašte ispred lokala
• Obezbeđen jedan parking
• Fleksibilan raspored – lako prilagodljiv različitim delatnostima
• Izuzetna vidljivost i frekventna lokacija
Jačina struje je preko 80 KW.
Prostor nudi odličan potencijal za poslovanje koje zahteva dobru prezentaciju, protok ljudi i dodatni spoljašnji prostor.
Za više informacija i zakazivanje obilaska – kontaktirajte.
Agencijska provizija u skladu sa Opštim uslovima poslovanja.
Commercial Space for Lease – 180 m² | Large Shopfront | Terrace | Two Entrances
An exceptionally attractive 180 m² commercial space available for lease, ideal for hospitality, retail, beauty salons, showrooms, clinics, supermarkets or office use.
Property features:
• Large, representative street-facing shopfront
• Two separate entrances (main entrance + service entrance)
• Dedicated loading and unloading access
• Possibility to use a very large outdoor terrace in front of the premises
• One secured parking space
• Flexible layout – easily adaptable to various business activities
• Excellent visibility in a high-traffic location
Power is over 80 KW.
The space offers outstanding potential for businesses that require strong visual exposure, high foot traffic and additional outdoor space.
For more information or to schedule a viewing, please contact us.
Agency commission in accordance with the General Terms and Conditions.
*Sačuvaj oglas uz belešku i primaj obaveštenja o njihovom pojeftinjenju ili pojavljivanju sličnih
Prikaz poslovnog prostora na mapi
Parkovi u blizini
- Park Ćirila i Metodija13 min
- Park Starine Novaka14 min
- Park Hadžipopovac15 min

Obeležja kulture u blizini
- Spomen groblje oslobodiocima Beograda4 min
- Spomenik Oslobodiocima Beograda5 min
- Novo groblje Beograd6 min

Škole/Fakulteti/Vrtići u blizini
- Osnovna škola (Osnovna škola Ivan Goran Kovačić)5 min
- Srednja škola (Zubotehnička škola Beograd)6 min
- Vrtić (Dečiji vrtić Simba)3 min
- Fakultet (MiT Akademija za marketing i informatiku)5 min

- Bolnica (Oftalmološka bolnica Revida)15 min
- Klinika (Poliklinika Argirović)6 min
- Teretana (Ethnogym fitnes klub)2 min
- Prodavnica (Shop&Go)1 min
- Restoran (Kubanski restoran Garmer)2 min
- Kafana (Kafana Limun žut)4 min
- Taksi stajalište (Taxi stanica)6 min
- Autobuska stanica (Toplička)6 min
- Tramvajska stanica (Dalmatinska)11 min
- Trolejbuska stanica (Marka Oreškovića)1 min
- Banka (Banca Intesa)5 min
- Pošta (Pošta Beograd 14)5 min
Kontakt oglašivača
Krediti OTP banke
Period otplate
13 mesecimesečno
Period otplate 13 - 71 mesec
Saznaj više




















