4-etažna kuća za izdavanje, Poručnika Spasića I Mašere 59A, 3.200€, 330m²
































































3.200 €
mesečno
- Samostalna kuća
- Kvadratura: 330m²
- Etaž: 4
- Površina placa: 3a
- Luksuzno
- Prostorije: kupatila (3+), kuhinja, ostava, terase (3+)
- Opremljenost: Namešteno - klima, kuhinjski elementi, sudo mašina, frižider, mikrotalasna rerna, šporet, rerna, ležaj, plakar, ugradni plakar
- Izdavanje direktno od vlasnika
- Objekat poseduje: dvorište
Opis oglasa
IZDAJE SE LUKSUZNA KUĆA – 330 m², 4 ETAŽE + GARAŽA + UREĐENO DVORIŠTE (3 ara)
Izdaje se prostrana, luksuzno uređena kuća površine 330 m², sa četiri etaže, garažom i prelepim dvorištem od 3 ara, idealna za porodično stanovanje, ambasade ili rezidencijalne potrebe.
DVORIŠTE
• Površina 3 ara
• Uredno održavan travnjak
• Zimzeleno i listopadno drveće, profesionalno oblikovano i negovano
• Intimna i mirna atmosfera, idealna za odmor i boravak na otvorenom
• ljuljaška i tobogan za decu
⸻
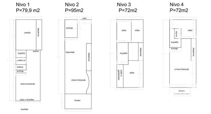
PRVA ETAŽA
• Dnevni boravak sa kaminom i stilskom bibliotekom
• Potpuno opremljena kuhinja
• Kupatilo
• Prostorija za pranje veša
• Zasebna ostava
• Garaža
DRUGA ETAŽA
• Prostrani i luksuzno opremljeni dnevni boravak
• Zasebna moderna kuhinja
• Terasa velika ka dvorištu
TREĆA ETAŽA
• Tri komforne spavaće sobe, u jednoj je veliki poseban garderober
• Veliko kupatilo sa đakuzi kadom i tuš kabinom
• Predsoblje i terasa ka ulici
ČETVRTA ETAŽA
• Veliki dnevni boravak sa klavirom
• Čajna kuhinja
• Prostorija sa finskom saunom
• Kupatilo
• Dodatna spavaća soba
• Terasa sa predivnim pogledom
⸻
Kuća odiše toplinom, komforom i luksuzom. Ambijent je miran, uređen i idealan za sve koji žele visoki standard života.
Grejanje na gas.
Svaki nivo je klimatizovan.
Cena i dodatne informacije na upit.
*Sačuvaj oglas uz belešku i primaj obaveštenja o njihovom pojeftinjenju ili pojavljivanju sličnih
Prikaz kuće na mapi
Parkovi u blizini
- Dečje igralište24 min
- Park Banovo Brdo26 min
- Park Bele vode29 min

Obeležja kulture u blizini
- Česma izvor Bele vode6 min
- Spomenik partizanskim borcima Žarkova7 min
- Česma izvor Zmajevac9 min

Škole/Fakulteti/Vrtići u blizini
- Osnovna škola (Osnovna škola Đorđe Krstić)5 min
- Srednja škola (Obrazovni sistem Crnjanski)6 min
- Vrtić (Dečiji vrtić Plavi maslačak)5 min
- Fakultet (Visoka sportska i zdravstvena škola)6 min

- Bolnica (Eterna Hospital)12 min
- Klinika (Poliklinika Vaša kuća zdravlja)11 min
- Teretana (Fitness centar Good life fitness)6 min
- Prodavnica (Maxi Supermarket)3 min
- Restoran (Restoran Mavijan)5 min
- Kafana (Brothers Pub)6 min
- Taksi stajalište (Taxi stanica)7 min
- Autobuska stanica (Vodovodska)4 min
- Tramvajska stanica (Trebevićka)12 min
- Banka (Addiko Bank)6 min
- Pošta (Pošta 11134 Beograd 54 (šalter))3 min
Kontakt oglašivača
Keš krediti
Period otplate
13 meseci