Trosoban stan na prodaju, Cara Dušana, 163.200€, 55m²






163.200 €
2.967 € / m2
- Stan u zgradi
- Etažno grejanje
- U izgradnji
- Prostorije: kupatilo, terasa
- Pogled na: dvorište
- U procesu uknjižavanja
- Oglas oglašava agencija pod reg. brojem 1299
- Godina izgradnje: 2026.
Opis oglasa
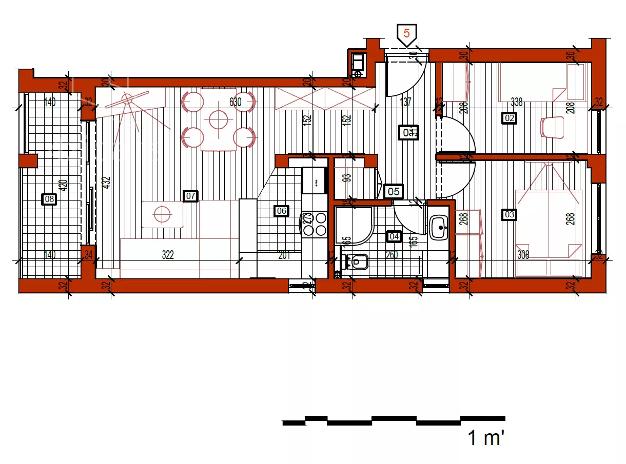
PRODAJA – jedinstven trosoban stan u izgradnji, 55m², Cara Dušana, Zemun
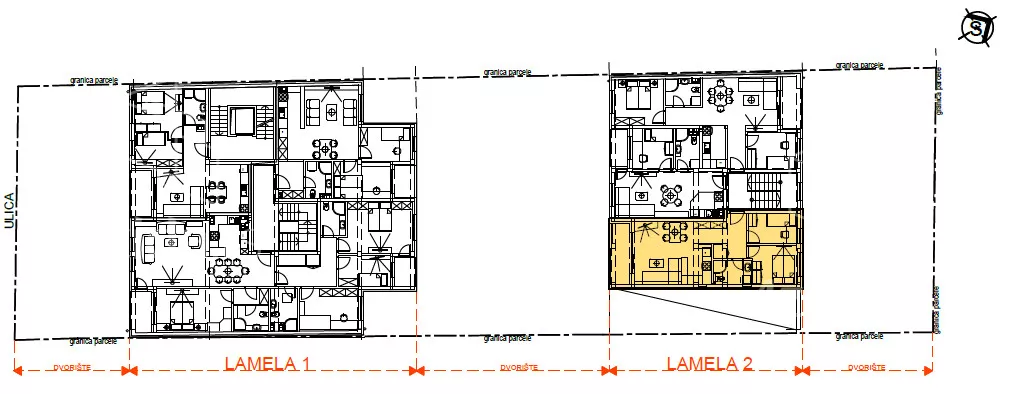
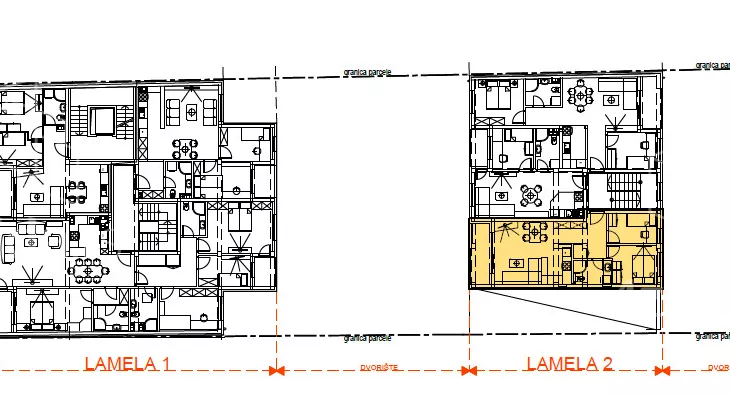
U ponudi je moderan trosoban stan površine 55m² u izgradnji, smešten u mirnom dvorišnom objektu u ulici Cara Dušana u Zemunu. Ovakav koncept stanovanja pruža potpunu privatnost, mir i sigurnost, a istovremeno ste na korak od svih važnih sadržaja – šetališta pored Dunava, škola, prodavnica i javnog prevoza.
Stan se nalazi na prvom spratu i odlikuje se izuzetno funkcionalnim rasporedom prostorija: dnevni boravak sa kuhinjom i trpezarijom, dve spavaće sobe, kupatilo i terasa.
Svaki detalj projektovan je s pažnjom kako bi se obezbedila maksimalna iskorišćenost prostora i komfor za svakodnevni život.
Zahvaljujući položaju u dvorišnom delu objekta, stan pruža osećaj mira i intime, što ga čini idealnim izborom za porodično stanovanje, ali i odličnom investicijom.
Kupcima je omogućeno da u ovoj fazi izgradnje učestvuju u izboru završnih materijala, prema sopstvenom ukusu i željama.
Posrednička naknada je u skladu sa Opštim uslovima poslovanja posrednika kompanije "Etagi com" d.o.o.
FOR SALE – Unique Three-Bedroom Apartment Under Construction, 55m², Cara Dušana, Zemun
We present a modern three-bedroom apartment of 55m², currently under construction, located in a quiet courtyard building on Cara Dušana Street in Zemun. This type of housing concept provides complete privacy, peace, and security, while keeping you within walking distance of all key amenities – the Danube promenade, schools, shops, and public transport.
The apartment is situated on the first floor and features a highly functional layout: a living room with kitchen and dining area, two bedrooms, a bathroom, and a terrace.
Every detail has been carefully designed to ensure maximum space efficiency and everyday comfort.
Thanks to its position within the courtyard section of the building, the apartment offers a true sense of peace and intimacy, making it an ideal choice for family living as well as an excellent investment opportunity.
Buyers have the option, at this stage of construction, to choose finishing materials according to their own taste and preferences.
The brokerage fee is charged in accordance with the General Terms and Conditions of the real estate agency "Etagi com" d.o.o.
*Sačuvaj oglas uz belešku i primaj obaveštenja o njihovom pojeftinjenju ili pojavljivanju sličnih
Prikaz stana na mapi
Parkovi u blizini
- Park Sava Kovačević19 min
- Dečje igralište26 min
- Park Jelovac27 min

Obeležja kulture u blizini
- Livnica Pantelić6 min
- Kula Sibinjanin Janka Gardoš7 min
- Kuća porodice Karamata7 min

Škole/Fakulteti/Vrtići u blizini
- Osnovna škola (Specijalna osnovna škola Branko Pešić)6 min
- Srednja škola (Specijalna srednja škola Veljko Ramadanović)11 min
- Vrtić (Dečiji vrtić Povratak prirodi)3 min
- Fakultet (Kriminalističko policijski univerzitet)10 min

- Bolnica (Gradski zavod za plućne bolesti i tuberkulozu)6 min
- Klinika (Poliklinika O2)4 min
- Teretana (Namaste Yoga Centar)4 min
- Prodavnica (Shop&Go)4 min
- Restoran (Restoran A la Grekos)9 min
- Kafana (Kaš Pivara)14 min
- Taksi stajalište (Taxi stanica)17 min
- Autobuska stanica (Tršćanska)2 min
- Banka (Poštanska štedionica)5 min
- Pošta (Pošta Beograd 82)14 min
Kontakt oglašivača
Stambeni krediti

- Period otplate od
96 -360 meseca
- NKS 4.75%
EKS 5.74%
Fiksna kamatna stopa
- Bez troškova obrade kredita
stranici kreditnih kalkulatora
Keš krediti
Period otplate
13 meseci
