Dvosoban stan na prodaju, Zemun, 161.336€, 58m²








161.336 €
2.782 € / m2
- Stan u zgradi
- Etažno grejanje
- U izgradnji
- Prostorije: kupatilo, terasa
- Orijentacija ka: jugozapad
- Pogled na: ulicu
- U procesu uknjižavanja
- Oglas oglašava agencija pod reg. brojem 1299
- Garaža u sklopu zgrade
- Parking u dvorištu zgrade
- 1 lift
- Godina izgradnje: 2026.
Opis oglasa
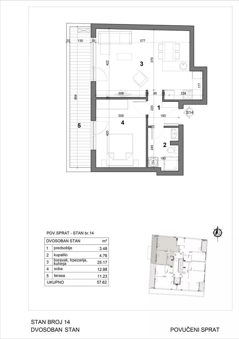
Dvosoban stan 57.62 m² – novogradnja, povučeni sprat, Zemun
U ponudi je moderan dvosoban stan površine 57.62 m², smešten na povučenom spratu kvalitetne novogradnje sa ukupno četiri sprata.
Stan ima funkcionalan raspored – svetla dnevna soba sa trpezarijom i kuhinjom, izlazom na prostranu terasu, dok su spavaća soba i kupatilo pažljivo odvojeni u zaseban deo stana, što obezbeđuje komfor i privatnost. Zahvaljujući jugozapadnoj orijentaciji, stan je izuzetno svetao i prijatan tokom celog dana.
Smešten u srcu Zemuna, ovaj kompleks pruža idealan spoj urbanog života i mira. Okružen je zelenilom i nalazi se u neposrednoj blizini svih važnih sadržaja – škola, vrtića, prodavnica, restorana i javnog prevoza.
Moderna arhitektura i pažljivo osmišljen dizajn savršeno se uklapaju u okruženje, nudeći udobnost, kvalitet i praktičnost za savremen način života.
Idealno za parove, pojedince ili kao sigurnu investiciju.
Posrednička naknada je u skladu sa Opštim uslovima poslovanja posrednika kompanije "Etagi com" doo.
Two-Bedroom Apartment 57.62 m² – New Construction, Setback Floor, Zemun A modern two-bedroom apartment of 57.62 m² is available, located on the setback (penthouse) floor of a high-quality new building with a total of four floors. The apartment features a functional layout – a bright living room with a dining area and kitchen, with access to a spacious terrace, while the bedroom and bathroom are thoughtfully separated into a private section, ensuring comfort and privacy. Thanks to its southwest orientation, the apartment is bright and pleasant throughout the entire day. Situated in the heart of Zemun, this complex offers an ideal combination of urban living and tranquility. Surrounded by greenery, it is within close proximity to all essential amenities – schools, kindergartens, shops, restaurants, and public transport. Modern architecture and a carefully designed layout blend perfectly with the surroundings, offering comfort, quality, and practicality for contemporary living. Ideal for couples, individuals, or as a secure investment. The brokerage fee is in accordance with the General Terms and Conditions of the intermediary company "Etagi com" d.o.o.
Двухкомнатная квартира 57.62 м² – Новостройка, Отступной этаж, Земун
В продаже современная двухкомнатная квартира площадью 57.62 м², расположенная на отступном (пентхаус) этаже качественного жилого дома с четырьмя этажами.
Квартира имеет функциональную планировку – светлая гостиная с обеденной зоной и кухней, с выходом на просторную террасу. Спальня и ванная комната аккуратно отделены в отдельную зону, что обеспечивает комфорт и приватность. Благодаря юго-западной ориентации квартира очень светлая и уютная на протяжении всего дня.
Расположенный в самом сердце Земуна, жилой комплекс сочетает удобство городской жизни и спокойствие. Вокруг много зелени, а рядом находятся все необходимые объекты инфраструктуры – школы, детские сады, магазины, рестораны и общественный транспорт.
Современная архитектура и продуманный дизайн идеально вписываются в окружающую среду, предлагая комфорт, качество и практичность для современного образа жизни.
Идеальный вариант для пар, одиночек или в качестве надежного инвестиционного вложения.
Комиссия посредника взимается в соответствии с Общими условиями компании «Etagi com» d.o.o.
*Sačuvaj oglas uz belešku i primaj obaveštenja o njihovom pojeftinjenju ili pojavljivanju sličnih
Prikaz stana na mapi
Parkovi u blizini
- Park Sava Kovačević15 min
- Dečje igralište20 min
- Park Kalvarija22 min

Obeležja kulture u blizini
- Ičkova kuća5 min
- Livnica Pantelić7 min
- Kula Sibinjanin Janka Gardoš7 min

Škole/Fakulteti/Vrtići u blizini
- Osnovna škola (Specijalna osnovna škola Branko Pešić)7 min
- Srednja škola (Elektrotehnička škola Zemun)5 min
- Vrtić (Dečiji vrtić Čudesno carstvo)8 min
- Fakultet (ITAcademy)5 min

- Bolnica (Očna bolnica Profesional Dr Suvajac)6 min
- Klinika (Poliklinika O2)3 min
- Teretana (Art Sport Gym)6 min
- Prodavnica (Market Nada)7 min
- Restoran (Restoran A la Grekos)3 min
- Kafana (Kafana Biblioteka kod Majora)13 min
- Taksi stajalište (Taxi stanica)14 min
- Autobuska stanica (Branka Pešića)2 min
- Banka (Banca Intesa)9 min
- Pošta (Pošta Beograd 82)5 min
Kontakt oglašivača
Stambeni krediti
- Period otplate od
96 -360 meseca
- NKS 4.50%
EKS 5.74%
Fiksna kamatna stopa
- Bez troškova obrade kredita
- Period otplate od
96 -360 meseca
- NKS 4.34%
Kombinovana kamatna stopa
- Bez troškova obrade kredita
- Odobrenje kredita do 48h
stranici kreditnih kalkulatora
Keš krediti
Period otplate
13 meseci
