Dvosoban stan na prodaju, Zemun, 148.000€, 53m²








148.000 €
2.792 € / m2
- Stan u zgradi
- Etažno grejanje
- U izgradnji
- Prostorije: kupatilo, terasa
- U procesu uknjižavanja
- Oglas oglašava agencija pod reg. brojem 1299
Opis oglasa
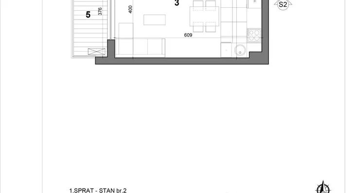
Dvosoban stan 52.94 m² – novogradnja, Zemun
U ponudi je moderan dvosoban stan površine 52.94 m², smešten na prvom spratu kvalitetne novogradnje sa ukupno pet spratova.
Stan ima funkcionalan raspored – svetla dnevna soba sa trpezarijom i kuhinjom, izlazom na terasu, dok su spavaća soba i kupatilo pažljivo odvojeni u zaseban deo stana, što obezbeđuje komfor i privatnost. Zahvaljujući jugozapadnoj orijentaciji, stan je izuzetno svetao i prijatan tokom celog dana.
Smešten u srcu Zemuna, ovaj kompleks pruža idealan spoj urbanog života i mira. Okružen je zelenilom i nalazi se u neposrednoj blizini svih važnih sadržaja – škola, vrtića, prodavnica, restorana i javnog prevoza.
Moderna arhitektura i pažljivo osmišljen dizajn savršeno se uklapaju u okruženje, nudeći udobnost, kvalitet i praktičnost za savremen način života.
Ideally za parove, pojedince ili kao sigurnu investiciju.
Posrednička naknada je u skladu sa Opštim uslovimaposlovanja posrednika kompanije "Etagi com" doo.
Two-Bedroom Apartment 52.94 m² – New Construction, Zemun A modern two-bedroom apartment of 52.94 m² is available, located on the first floor of a high-quality new building with a total of five floors. The apartment features a functional layout – a bright living room with a dining area and kitchen, with access to the terrace, while the bedroom and bathroom are thoughtfully separated, providing comfort and privacy. Thanks to its southwest orientation, the apartment is bright and pleasant throughout the day. Situated in the heart of Zemun, this complex offers an ideal blend of urban living and tranquility. Surrounded by greenery, it is conveniently close to all essential amenities – schools, kindergartens, shops, restaurants, and public transport. Modern architecture and a carefully designed interior perfectly fit the surroundings, offering comfort, quality, and practicality for contemporary living. Ideal for couples, individuals, or as a safe investment.
*Sačuvaj oglas uz belešku i primaj obaveštenja o njihovom pojeftinjenju ili pojavljivanju sličnih
Prikaz stana na mapi
Parkovi u blizini
- Park Sava Kovačević12 min
- Dečje igralište19 min
- Park Jelovac19 min

Obeležja kulture u blizini
- Ičkova kuća9 min
- Livnica Pantelić11 min
- Kula Sibinjanin Janka Gardoš11 min

Škole/Fakulteti/Vrtići u blizini
- Osnovna škola (Osnovna škola Petar Kočić)7 min
- Srednja škola (Specijalna srednja škola Veljko Ramadanović)13 min
- Vrtić (Dečiji vrtić Povratak prirodi)11 min
- Fakultet (Kriminalističko policijski univerzitet)4 min

- Bolnica (Hirurška ordinacija Renova)7 min
- Klinika (Poliklinika O2)5 min
- Teretana (Fitness club Pump It Up)5 min
- Prodavnica (Market Mona)2 min
- Restoran (Restoran Dubočica)4 min
- Kafana (Kafana Biblioteka kod Majora)9 min
- Taksi stajalište (Taxi stanica)2 min
- Autobuska stanica (Rada Končara /Dom Zdravlja/)2 min
- Banka (Eurobank Direktna)10 min
- Pošta (Pošta Beograd 100)9 min
Kontakt oglašivača
Stambeni krediti
- Period otplate od
96 -360 meseca
- NKS 4.50%
EKS 5.74%
Fiksna kamatna stopa
- Bez troškova obrade kredita
- Period otplate od
96 -360 meseca
- NKS 4.34%
Kombinovana kamatna stopa
- Bez troškova obrade kredita
- Odobrenje kredita do 48h
stranici kreditnih kalkulatora
Keš krediti
Period otplate
13 meseci
