Dvoiposoban stan na prodaju, Pariske Komune 11, 145.000€, 59m²


















145.000 €
2.458 € / m2
- Stan u zgradi
- Centralno grejanje
- Renovirano
- Prostorije: kupatilo, ostava, terasa
- Opremljenost: Polunamešteno - kuhinjski elementi, šporet, rerna
- Orijentacija ka: zapad
- Pogled na: dvorište
- Uknjiženo
- Kupovina direktno od vlasnika
- 1 lift
- Zgrada poseduje: podrum
Opis oglasa
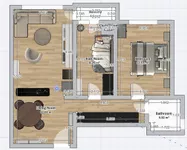
Komforan dvoiposoban stan koji se sastoji od dnevne sobe sa trpezarijom, decje sobe, spavace sobe, kupatila i terase. Stan je kompletno renoviran: vodovodna instalacija, strujna instalacija, tabla sa osiguracima i TV tabla radi konfigurabilnosti, parket je hoblovan ili nov (tarket), nova spoljna PVC stolarija, nova unutrasnja vrata, sigurnosna ulazna vrata. Kompletno opremljena kuhinja i kupatilo, nova tehnika i sanitarije, led rasveta, sve je ukljuceno u cenu. Stan ima garderober, kao i pogodno mesto u hodniku za ogroman plakar. Pripadajuca podrumska prostorija. Vrlo miran kraj a u blizini svih bitnih sadrzaja. Neposredna blizina Bulevara i Sajma. Odmah useljivo. 1/1, bez tereta.
*Sačuvaj oglas uz belešku i primaj obaveštenja o njihovom pojeftinjenju ili pojavljivanju sličnih
Prikaz stana na mapi
Kontakt oglašivača
Krediti OTP banke
Saznaj više
Prikazana rata odnosi se na maksimalni period otplate. Kalkulator je informativnog karaktera.
* Nakon isteka 5 godina, prelazi se na varijabilnu kamatnu stopu

