Dvosoban stan na prodaju, Odabašićeva, 150.000€, 48m²
OBIĐI 3D TURU



























150.000 €
3.125 € / m2
- Grejanje na gas
- Novo
- Prostorije: kupatilo
- Opremljenost: Polunamešteno - interfon
- Uknjiženo
- Oglas oglašava agencija pod reg. brojem 339
- 1 parking mesto
- 1 telefonska linija
Opis oglasa
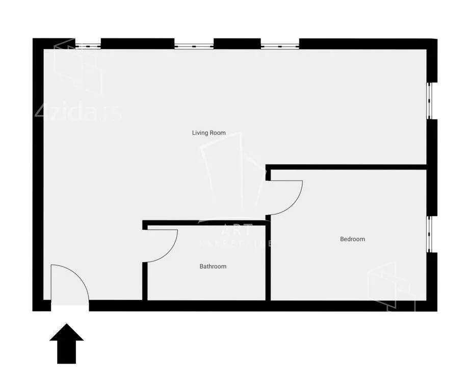
Na prodaju uknjižen odmah useljiv dvosoban stan površine 48m², smešten u mirnom delu Žarkova, u Odabašićevoj ulici.
Stan se nalazi u kvalitetno građenoj novijoj zgradi (2019. godina), spratnosti P+3, što garantuje mir, privatnost i manji broj stanara.
Stan je moderno uređen i izuzetno funkcionalnog rasporeda:
• Dnevni boravak povezan sa kuhinjom,šankom za sedenje i izdvojenim trpezarijskim delom (open space koncept)
• Odvojena spavaća soba
• Kupatilo
• Predsoblje
Stan odiše savremenim stilom, sa modernim nameštajem i bez potrebe za dodatnim ulaganjima — spreman za useljenje. Idealan je kako za stanovanje, tako i kao investicija za izdavanje.
Grejanje je etažno na gas, što omogućava potpunu kontrolu troškova tokom cele godine.
Stan se prodaje sa delom nameštaja (po dogovoru sa kupcem).
Agencijska provizija 2%
Agent: Ana Varnica br. Licence: 6609
"Art nekretnine" d.o.o. Beograd.
Reg. br. 339
011... (prikaži broj telefona)
AV
.
*Sačuvaj oglas uz belešku i primaj obaveštenja o njihovom pojeftinjenju ili pojavljivanju sličnih
Prikaz stana na mapi
Parkovi u blizini
- Park Bele vode16 min
- Dečje igralište39 min
- Park Banovo Brdo39 min

Obeležja kulture u blizini
- Česma izvor Zmajevac5 min
- Spomenik partizanskim borcima Žarkova7 min
- Česma izvor Bele vode5 min

Škole/Fakulteti/Vrtići u blizini
- Osnovna škola (Osnovna škola Miroslav Antić)4 min
- Srednja škola (Obrazovni sistem Crnjanski)9 min
- Vrtić (Dečiji vrtić Plavi maslačak)8 min
- Fakultet (Visoka sportska i zdravstvena škola)9 min

- Bolnica (Eterna Hospital)14 min
- Klinika (Poliklinika Vaša kuća zdravlja)9 min
- Teretana (Body building i fitness klub Ahilej)3 min
- Prodavnica (Aroma market)6 min
- Restoran (Restoran Čedić)4 min
- Kafana (Kafana Složna braća)11 min
- Taksi stajalište (Taxi stanica)15 min
- Autobuska stanica (Bele Vode)3 min
- Tramvajska stanica (Trebevićka)27 min
- Banka (Banca Intesa)6 min
- Pošta (Pošta 11134 Beograd 54)10 min
Kontakt oglašivača
Krediti OTP banke
Saznaj više
Prikazana rata odnosi se na maksimalni period otplate. Kalkulator je informativnog karaktera.
* Nakon isteka 5 godina, prelazi se na varijabilnu kamatnu stopu





















