Dvosoban stan na prodaju, Golsvordijeva, 299.900€, 63m²







































299.900 €
4.760 € / m2
- Stan u zgradi
- Centralno grejanje
- Uobičajeno stanje
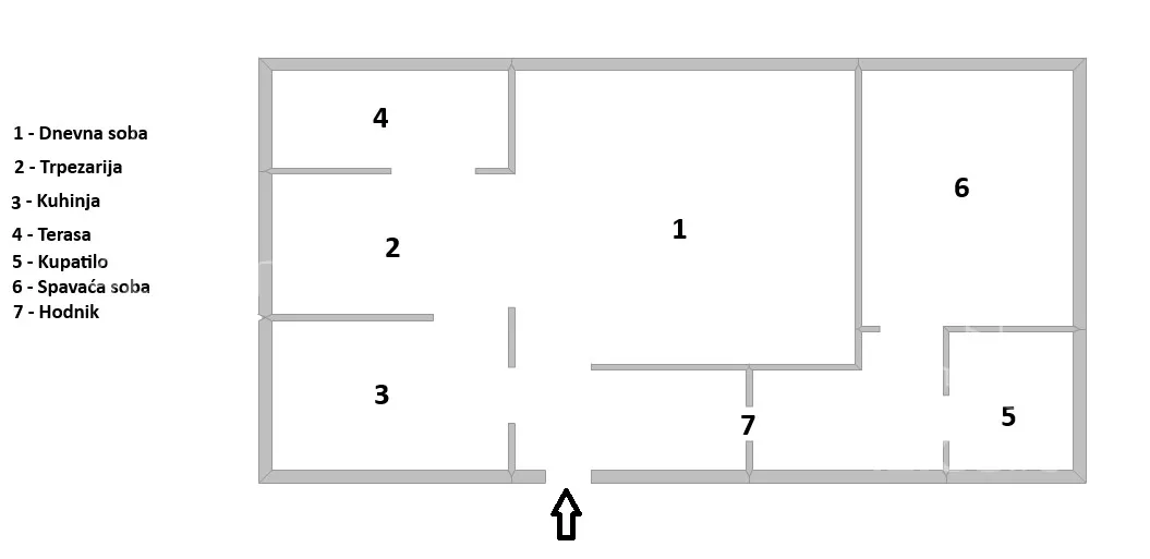
- Prostorije: kupatilo, terasa
- Opremljenost: Namešteno - internet
- Pogled na: dvorište
- Uknjiženo
- Oglas oglašava agencija pod reg. brojem 2064
- 1 parking mesto, parking u dvorištu zgrade
- 1 lift
Opis oglasa
Na prodaju prelep, opremljen dvosoban stan od 63 m², smešten na 4. spratu uredno održavane zgrade iz 80-ih, u jednoj od najlepših i najmirnijih ulica na Vračaru.
Stan je orijentisan ka unutrašnjem dvorištu, što mu daje poseban osećaj mira i privatnosti.
Sastoji se od prostranog dnevnog boravka sa izlazom na terasu, spavaće sobe, kuhinje i kupatila. (Napomena: terasa nije uračunata u ukupnu kvadraturu.)
Stan se prodaje sa nameštajem i tehnikom koji su uključeni u cenu, tako da je odmah useljiv bez dodatnih ulaganja.
U okviru zgrade nalazi se privatni parking prostor, dostupan samo stanarima, što dodatno doprinosi komforu.
Mikrolokacija je fantastična — u blizini Kalenić pijace, prodavnica, restorana i javnog prevoza, sve što je potrebno za svakodnevni život nalazi se na dohvat ruke.
Ovaj stan je odličan izbor kako za porodično stanovanje, tako i kao investicija za izdavanje.
Agent: Dejan Jovanović, br.licence 2752
Urban Nest Real Estate d.o.o. Beograd.
Reg. br. 2064
064... (prikaži broj telefona)
*Sačuvaj oglas uz belešku i primaj obaveštenja o njihovom pojeftinjenju ili pojavljivanju sličnih
Prikaz stana na mapi
Parkovi u blizini
- Park vojvode Petra Bojovića2 min
- Park Mike Oklopa7 min
- Park Ćirila i Metodija7 min

Obeležja kulture u blizini
- Genčićeva kuća4 min
- Spomenik Nikoli Tesli4 min
- Spomenik Svetozaru Markoviću7 min

Škole/Fakulteti/Vrtići u blizini
- Osnovna škola (Osnovna škola Jovan Miodragović)7 min
- Srednja škola (Četrnaesta beogradska gimnazija)3 min
- Vrtić (Dečiji vrtić Nada Purić)7 min
- Fakultet (Univerzitet u Beogradu Građevinski fakultet)8 min

- Bolnica (Neurološka bolnica Affidea)5 min
- Klinika (Poliklinika Vuk Prima)5 min
- Teretana (Fitness centar Team fit)7 min
- Prodavnica (IDEA)manje od 1 min
- Restoran (Restoran Bella Via)2 min
- Kafana (Pejton Pub)8 min
- Taksi stajalište (Taxi stanica)3 min
- Autobuska stanica (GO Vračar)3 min
- Tramvajska stanica (Vukov spomenik)7 min
- Trolejbuska stanica (Katanićeva)7 min
- Banka (Eurobank Direktna)7 min
- Pošta (Pošta Beograd 17)7 min
Kontakt oglašivača
Krediti OTP banke
Saznaj više
Prikazana rata odnosi se na maksimalni period otplate. Kalkulator je informativnog karaktera.
* Nakon isteka 5 godina, prelazi se na varijabilnu kamatnu stopu

