Dvosoban stan na prodaju, Vojvode Stepe, 200.000€, 45m²






















200.000 €
4.444 € / m2
- Centralno grejanje
- Renovirano
- Prostorije: kupatilo, terasa
- Uknjiženo
- Oglas oglašava agencija pod reg. brojem 298
- 1 garažno mesto
- 1 lift
- 1 telefonska linija
Opis oglasa
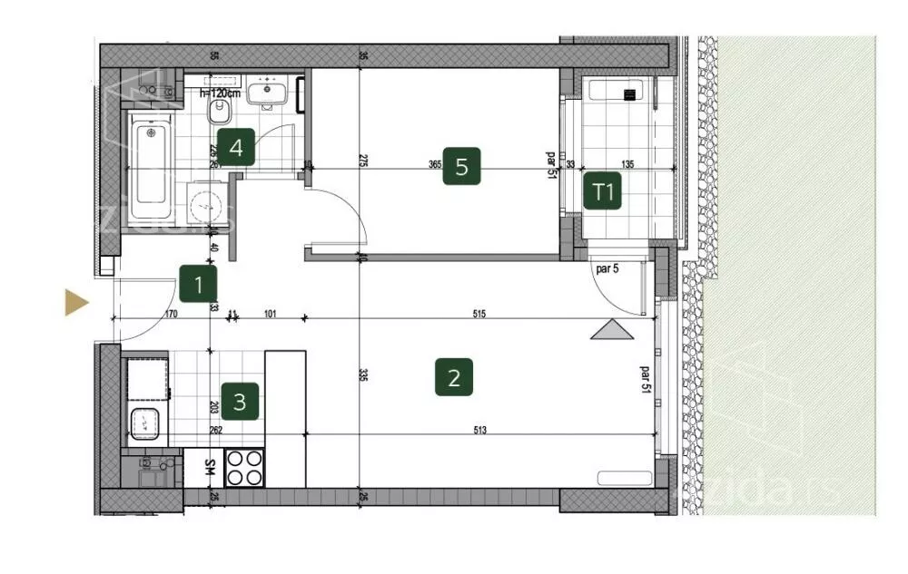
U uređenom i bezbednom okruženju kompleksa Voždove kapije, na potezu uz ulicu Vojvode Stepe, prodaje se prijatan dvosoban uknjižen stan od 45 m². Kompleks je poznat po visokom kvalitetu gradnje, uređenim zelenim površinama, dečijim igralištima, podzemnoj garaži i 24-časovnom obezbeđenju, što stanarima obezbeđuje komfor i mir svakog dana. Stan se nalazi na prvom spratu novoizgrađene zgrade koja je useljena prošle godine. Jednostrano zapadno orijentisan. Gleda na lepu uređenu krovnu terasu sa zelenilom, pa je prostor tokom dana ispunjen prijatnom svetlošću i potpuno zaštićen od gradske buke. Spratna visina od 275 cm dodatno pojačava osećaj komfora i prostranosti. Raspored funkcionalan: otvoreni koncept dnevnog boravka i kuhinje, spavaća soba, kupatilo i terasa kojoj se pristupa iz dnevne zone. U stanu ostaje ugradna kuhinja sa kompletnom belom tehnikom, pa novi vlasnik može lako da uredi ostatak prostora po sopstvenom ukusu i bez velikih početnih ulaganja. Grejanje je centralno, sa merenjem po potrošnji, što omogućava kontrolu troškova tokom cele godine. Stan je odličan izbor i za život i za izdavanje, imajući u vidu stabilnu potražnju u ovom kompleksu i kontinuirani rast kupoprodajnih i zakupnih cena. Dostupna je i opcija kupovine garažnog mesta u okviru objekta po ceni od 25.000 EUR. Prodaja se vrši isključivo zbog potrebe prelaska u veći stambeni prostor. Stan je odmah useljiv. Agencijska provizija za kupca 2%. Broj agencije u Registru posrednika 298. Mapa je informativnog karaktera, ne prikazuje tačnu lokaciju nekretnine.
*Sačuvaj oglas uz belešku i primaj obaveštenja o njihovom pojeftinjenju ili pojavljivanju sličnih
Prikaz stana na mapi
Parkovi u blizini
- Banjička šuma11 min
- Park Jove Ilića13 min
- Bajronov park24 min

Obeležja kulture u blizini
- Spomenik Franše Depereu12 min
- Spomenik heroju Milanu Tepiću13 min
- Kuća Flašar14 min

Škole/Fakulteti/Vrtići u blizini
- Osnovna škola (Osnovna škola Filip Filipović)5 min
- Srednja škola (Srednja škola Vasa Stajić)6 min
- Vrtić (Dečiji vrtić Avantura)7 min
- Fakultet (Univerzitet u Beogradu Saobraćajni fakultet)4 min

- Bolnica (Opšta bolnica Medicinski sistem Beograd MSB)3 min
- Klinika (Poliklinika Nera)5 min
- Teretana (Školica sporta Activity Centar)8 min
- Prodavnica (IDEA)manje od 1 min
- Restoran (Kapija koncept bar)4 min
- Kafana (Pivnica Drvce Kiselo 2002)13 min
- Taksi stajalište (Taxi stanica)7 min
- Autobuska stanica (Mosorska)6 min
- Tramvajska stanica (Saobraćajni Fakultet)2 min
- Trolejbuska stanica (Plivalište Banjica)15 min
- Banka (Erste Bank)8 min
- Pošta (Pošta Beograd 39)2 min
Kontakt oglašivača
Stambeni krediti
- Period otplate od
96 -360 meseca
- NKS 4.34%
Kombinovana kamatna stopa
- Bez troškova obrade kredita
- Odobrenje kredita do 48h
- Period otplate od
96 -360 meseca
- NKS 4.50%
EKS 5.74%
Fiksna kamatna stopa
- Bez troškova obrade kredita
stranici kreditnih kalkulatora
Keš krediti
Period otplate
13 meseci
