Jednoiposoban stan na prodaju, Vojna Bolnica, 140.400€, 52m²


















140.400 €
2.700 € / m2
- Etažno grejanje
- Novo
- Prostorije: kupatilo, terasa
- Oglas oglašava agencija pod reg. brojem 940
- 1 lift
- 1 telefonska linija
Opis oglasa
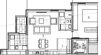
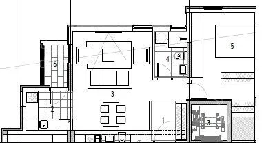
Prodaje se nov dvoiposoban stan kod Vojne bolnice. Stan je površine 52m2, nalazi se na I spratu stambene zgrade sa liftom. Sastoji se od hodnika, dnevne (kombinovane) sobe sa kuhinjom i trpezarijom, dve spavaće sobe, kupatila i terase. Stambeno-porodični objekat se sastoji od glavnog ulaza, pripadajućih podrumskih prostorija, video nadzora na i oko objekta i parking mesta, sa više vrste osvetljenja, jednog savremenog lifta, kako i same instalacije koje će biti ugrađene u svaki stan. U izgradnji se koristi najkvaliteniji termo blok, granitna keramika, višeslojni parket, mono blok u kupatilima, linijski slivnik, staklena tuš kabina, spoljašnja Aluminijumska stolarija sa aluminijimskim roletnama, izolacija i dekorativna ukrasna fasada i led rasveta. Grejanje će biti etažno sa svojim zasebnim kotlovima. Moguća je kupovina parking mesta na parceli, od kojih je većina natkrivena, po ceni od 8000eur. Sama pozicija objekta se nalazi u delu grada koji je jako miran, okružen zelenilom i infrastukturom koja je izgrađena u blizini ( škole, vrtići,tržni centar, pijaca, klinički centar, marketi ). U cenu je uključen PDV i kupci prvog stana imaju pravo na povraćaj PDV-a u iznosu od 10%. Hvala Vam što ste pogledali oglas. Za više informacija o ovoj ili drugim nekretninama i zakazivanje razgledanja kontaktirajte agenta na broj telefona iz oglasa (poziv, sms, viber) ili putem e-maila. Kompletnu ponudu dostupnih nekretnina možete pronaći na našem sajtu.Agencija Proagent nekretnine je upisana u Registru posrednika pod brojem: 940.
*Sačuvaj oglas uz belešku i primaj obaveštenja o njihovom pojeftinjenju ili pojavljivanju sličnih
Prikaz stana na mapi
Parkovi u blizini
- Park Svetog Save10 min
- Park složnih komšija10 min
- Park Čair15 min

Obeležja kulture u blizini
- Zgrada Oficirskog doma7 min
- Zgrada Pasterovog zavoda7 min
- Ćele kula9 min

Škole/Fakulteti/Vrtići u blizini
- Osnovna škola (Osnovna škola Car Konstantin)4 min
- Srednja škola (Medicinska škola Dr Milenko Hadžić)8 min
- Vrtić (Dečiji vrtić Plavi čuperak)4 min
- Fakultet (Univerzitet u Nišu Medicinski fakultet)4 min

- Bolnica (Opšta bolnica Sava Surgery)3 min
- Klinika (Poliklinika Naissa)4 min
- Teretana (Strongman fitness center)5 min
- Prodavnica (Zlatan Trag supermarket)4 min
- Restoran (Restoran Izvor)3 min
- Kafana (Pivnica Berta)18 min
- Taksi stajalište (Duga taksi)13 min
- Autobuska stanica (Medicinski fakultet)1 min
- Banka (UniCredit Bank)11 min
- Pošta (Pošta Niš 8)6 min
Kontakt oglašivača
Krediti OTP banke
Saznaj više
Prikazana rata odnosi se na maksimalni period otplate. Kalkulator je informativnog karaktera.
* Nakon isteka 5 godina, prelazi se na varijabilnu kamatnu stopu


