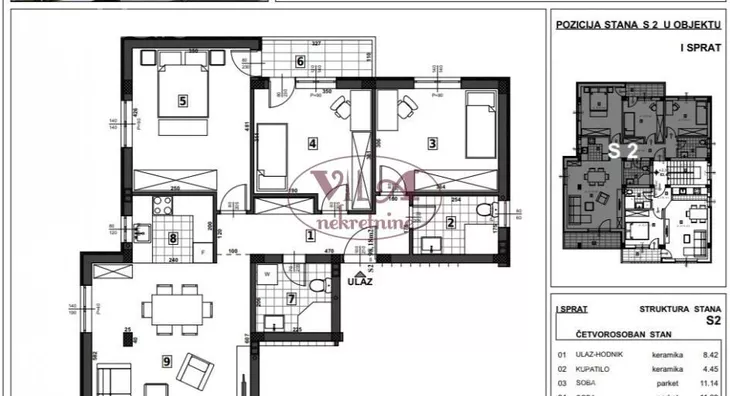
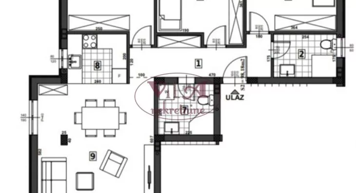
Četvorosoban stan na prodaju, Veternik, 191.269€, 95m²




191.269 €
2.013 € / m2
- Stan u zgradi
- Grejanje na gas
- Novo
- Oglas oglašava agencija pod reg. brojem 839
Opis oglasa
Prodaje se lep četvorosiban stan u manjoj zgradi, na samoj granici Novog Sada i Veternika u lepoj i širokoj ulici, blizu svih urbanih sadržaja. Stan se nalazi na prvom spratu urbane vile, kvalitetno gradjene po svim standardima modernog i komfornog stanovanja. Grejanje je podno na gas sa kalorimetrima. Stan ima veliku dnevnu sobu, koja je okrenuta na uličnu stranu, dok su tri spavaće sobe dvoriŝno orijentisane. Stan ima dva kupatila, predsoblje i kuhinju koja je povezana sa dnevnom sobom i dve terase.Pored stana se moze kupiti i garaža u prizemlju objekta. Investitor je siguran i pouzdan sa svom urednom dokumentacijom i dozvolama i za kupce prvog stana, može se ostvariti povrat Pdv-a od 10%.Rok završetka izgradnje je predvidjen za oktobar 2026. godine.Vredi pogledati, odlična nekretnina.Tel 065... (prikaži broj telefona) i 064... (prikaži broj telefona) . Više fotografija na našem sajtu.
*Sačuvaj oglas uz belešku i primaj obaveštenja o njihovom pojeftinjenju ili pojavljivanju sličnih
Prikaz stana na mapi
Kontakt oglašivača
Krediti OTP banke
Saznaj više
Prikazana rata odnosi se na maksimalni period otplate. Kalkulator je informativnog karaktera.
* Nakon isteka 5 godina, prelazi se na varijabilnu kamatnu stopu


