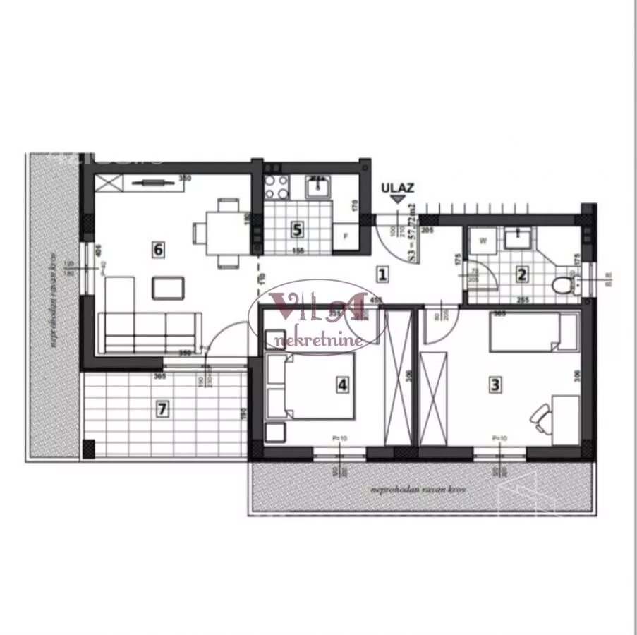
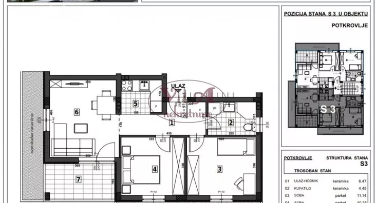
Trosoban stan na prodaju, Veternička Rampa, 138.380€, 56m²






138.380 €
2.471 € / m2
- Stan u zgradi
- Grejanje na gas
- Novo
- Opremljenost: Prazno - kanalizacija
- Oglas oglašava agencija pod reg. brojem 839
- Kanalizacija
Opis oglasa
Prodaje se odličan trosoban stan u manjoj zgradi, na samoj granici Novog Sada i Veternika u lepoj i širokoj ulici, blizu svih urbanih sadržaja. Stan se nalazi na drugom spratu urbane vile, kvalitetno gradjene po svim standardima modernog i komfornog stanovanja. Grejanje je podno na gas sa kalorimetrima. Stan ima dnevnu sobu i dve spavaće sobe, kupatilo, predsoblje i kuhinju koja je povezana sa dnevnom sobom i dve terase. Postoji mogućnost i pripajanja stanu veće krovne terase, po želji kupca. Investitor je siguran i pouzdan sa svom urednom dokumentacijom i dozvolama i za kupce prvog stana, može se ostvariti povrat Pdv-a od 10%.Rok završetka izgradnje je predvidjen za oktobar 2026. godine.Vredi pogledati, odlična nekretnina.Tel 065... (prikaži broj telefona) i 064... (prikaži broj telefona) . Više fotografija na našem sajtu.
*Sačuvaj oglas uz belešku i primaj obaveštenja o njihovom pojeftinjenju ili pojavljivanju sličnih
Prikaz stana na mapi
Parkovi u blizini
- Park Bistrica47 min

Obeležja kulture u blizini
- Dvorac Hadik-Kotek14 min
- Mađarska reformatorska crkva sa zgradom parohijskog doma15 min
- Jodna Banja20 min

Škole/Fakulteti/Vrtići u blizini
- Osnovna škola (Osnovna škola Mihajlo Pupin)5 min
- Srednja škola (Privatna medicinska škola Dositej Obradović)9 min
- Vrtić (Dečiji vrtić Zlatno sunce)10 min
- Fakultet (Protestantski teološki fakultet)14 min

- Bolnica (Opšta bolnica New Hospital)11 min
- Klinika (Poliklinika Consilium)13 min
- Teretana (Fitness studio Top Form)9 min
- Prodavnica (TSV Diskont)3 min
- Restoran (Restoran Na kraj sela)31 min
- Kafana (Pivoteka 77)50 min
- Taksi stajalište (Taxi prevoz Novi Sad)48 min
- Autobuska stanica (Veternik - Stadion)1 min
- Banka (Poštanska štedionica)5 min
- Pošta (Pošta Veternik 21203)4 min
Kontakt oglašivača
Krediti OTP banke
Saznaj više
Prikazana rata odnosi se na maksimalni period otplate. Kalkulator je informativnog karaktera.
* Nakon isteka 5 godina, prelazi se na varijabilnu kamatnu stopu


