Dvosoban stan na prodaju, Veternička Rampa, 89.500€, 41m²




89.500 €
2.183 € / m2
- Grejanje na toplotnu pumpu
- Oglas oglašava agencija pod reg. brojem 1781
- Godina izgradnje: 2026.
Opis oglasa
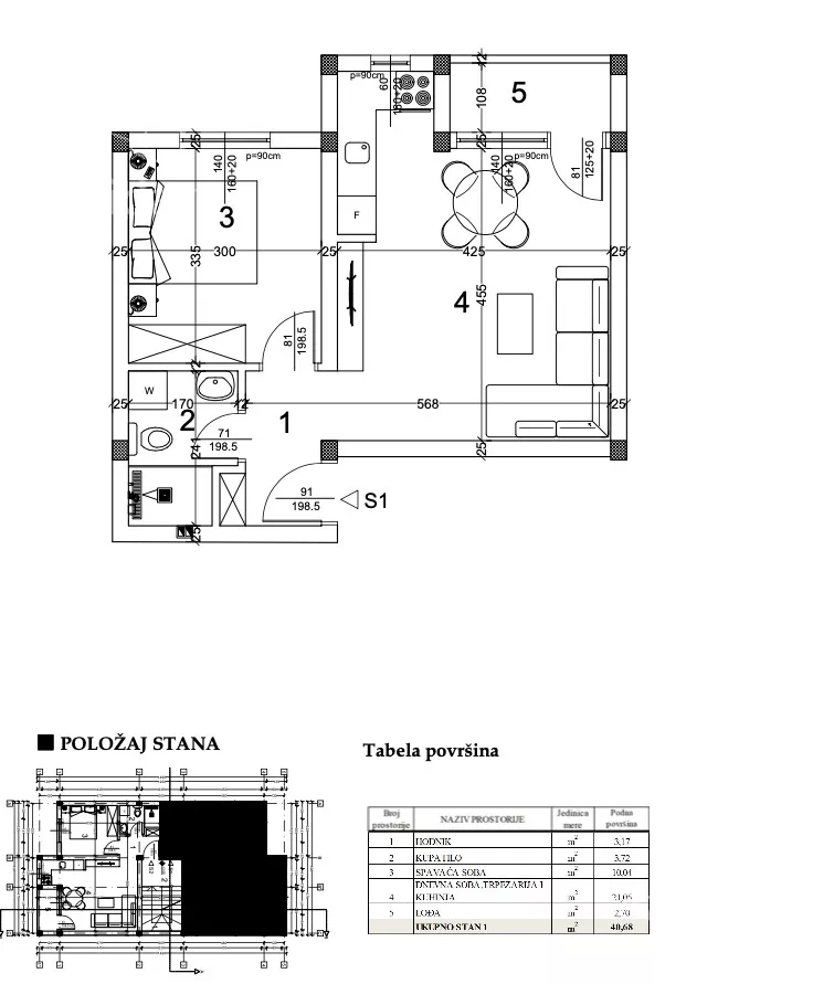
Dvosoban stan, Veternička rampa
Na prodaju stan u izgradnji.
Nalazi se na prvom spratu urbane vile sa dva sprata. Stan se sastoji od: prostrane dnevne sobe sa kuhinjom, i spavaće sobe, kupatila, terase i hodnika.
Oprema:
Podno grejanje na toplotne pumpe
Tarkett parket
Geberit ugradni vodokotlić
Uvozna keramika
Staklena tuš kabina
Šestokomorna PVC stolarija sa roletnama
Sigurnosna ulazna vrata
U cenu je uračunato parking mesto.
Planiran završetak radova Jul 2026. god.
Napomena:
Mogućnost etapnog plaćanja po dinamici gradnje
Navedena cena je sa PDV-om, kupci prve nekretnine imaju pravo na povrat PDV-a.
Na ugovorenu cenu stana se dodatno obračunava agencijska provizija 3%.
Za sve dodatne informacije i dogovor oko razgledanja stana, kontaktirajte nas na telefon 065... (prikaži broj telefona) , Select Nekretnine, Registar posrednika br. 1781.
*Sačuvaj oglas uz belešku i primaj obaveštenja o njihovom pojeftinjenju ili pojavljivanju sličnih
Prikaz stana na mapi
Parkovi u blizini
- Park Bistrica28 min

Obeležja kulture u blizini
- Jodna Banja18 min
- Dvorac Eđšeg20 min
- Spomen ploča Albertu Ajnštajnu i Milevi Marić21 min

Škole/Fakulteti/Vrtići u blizini
- Osnovna škola (Osnovna škola Mihajlo Pupin)7 min
- Srednja škola (Privatna medicinska škola Dositej Obradović)6 min
- Vrtić (Dečiji vrtić Zlatno sunce)4 min
- Fakultet (Protestantski teološki fakultet)12 min

- Bolnica (Specijalna bolnica za hemodijalizu Fresenius Medical Care FMC)12 min
- Klinika (Poliklinika Consilium)11 min
- Teretana (Fitness studio Top Form)6 min
- Prodavnica (Mikromarket)7 min
- Restoran (Restoran Na kraj sela)18 min
- Kafana (Pivoteka 77)31 min
- Taksi stajalište (Taxi prevoz Novi Sad)30 min
- Autobuska stanica (Novo naselje - Kružni tok)9 min
- Banka (Poštanska štedionica)20 min
- Pošta (Pošta Veternik 21203)6 min
Kontakt oglašivača
Krediti OTP banke
Saznaj više
Prikazana rata odnosi se na maksimalni period otplate. Kalkulator je informativnog karaktera.
* Nakon isteka 5 godina, prelazi se na varijabilnu kamatnu stopu


