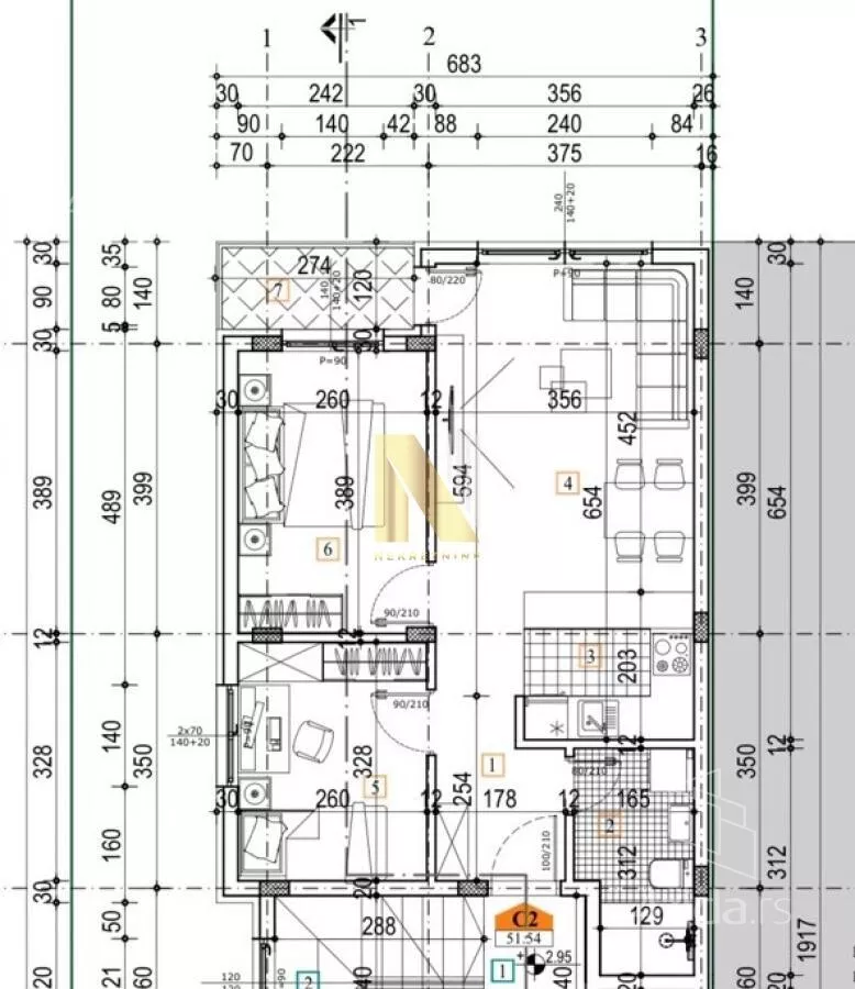
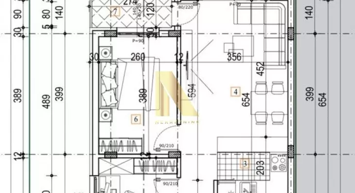
Dvoiposoban stan na prodaju, Veternička Rampa, 117.800€, 52m²


117.800 €
2.265 € / m2
- Stan u zgradi
- Oglas oglašava agencija pod reg. brojem 1405
Opis oglasa
Na prodaju je dvoiposoban stan površine 52 m², koji se nalazi na Veterničkoj Rampi - tik do Novog Naselja.
Nalazi se na prvom spratu stambene zgrade. Stan je u izgradnji, funkcionalnog rasporeda i idealan kako za život, tako i kao investicija.
U cenu uračunata agencijska provizija od 3%, a PDV od 10% se dodaje na cenu.
Rok izgradnje Jul 2026.
Za više informacija pozovite 066... (prikaži broj telefona) Jovana Lazić ili 066... (prikaži broj telefona) , Agencija N Nekretnine - Novi Sad, Alekse Šantića 64 - registar posrednika 1405
*Sačuvaj oglas uz belešku i primaj obaveštenja o njihovom pojeftinjenju ili pojavljivanju sličnih
Prikaz stana na mapi
Parkovi u blizini
- Park Bistrica30 min

Obeležja kulture u blizini
- Jodna Banja18 min
- Dvorac Eđšeg20 min
- Spomen ploča Albertu Ajnštajnu i Milevi Marić21 min

Škole/Fakulteti/Vrtići u blizini
- Osnovna škola (Osnovna škola Mihajlo Pupin)7 min
- Srednja škola (Privatna medicinska škola Dositej Obradović)6 min
- Vrtić (Dečiji vrtić Zlatno sunce)4 min
- Fakultet (Protestantski teološki fakultet)12 min

- Bolnica (Specijalna bolnica za hemodijalizu Fresenius Medical Care FMC)12 min
- Klinika (Poliklinika Consilium)11 min
- Teretana (Fitness studio Top Form)6 min
- Prodavnica (Mikromarket)7 min
- Restoran (Restoran Na kraj sela)18 min
- Kafana (Pivoteka 77)33 min
- Taksi stajalište (Taxi prevoz Novi Sad)31 min
- Autobuska stanica (Novo naselje - Kružni tok)10 min
- Banka (Poštanska štedionica)20 min
- Pošta (Pošta Veternik 21203)6 min
Kontakt oglašivača
Stambeni krediti

- Period otplate od
96 -360 meseca
- NKS 4.75%
EKS 5.74%
Fiksna kamatna stopa
- Bez troškova obrade kredita
stranici kreditnih kalkulatora
Keš krediti
Period otplate
13 meseci




















