Četvorosoban stan na prodaju, Prahovska, 129.000€, 108m²


































129.000 €
1.194 € / m2
- Stan u zgradi
- Etažno grejanje
- Luksuzno
- Prostorije: kupatilo, toalet, terase (2)
- Opremljenost: Prazno - internet
- U procesu uknjižavanja
- Kupovina direktno od vlasnika
- Parking u dvorištu zgrade
- Kablovska
Opis oglasa
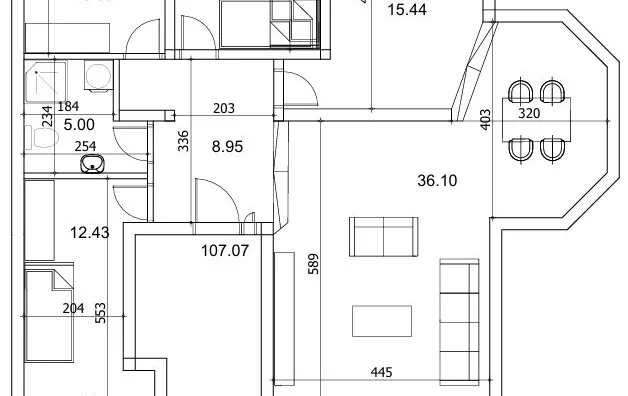
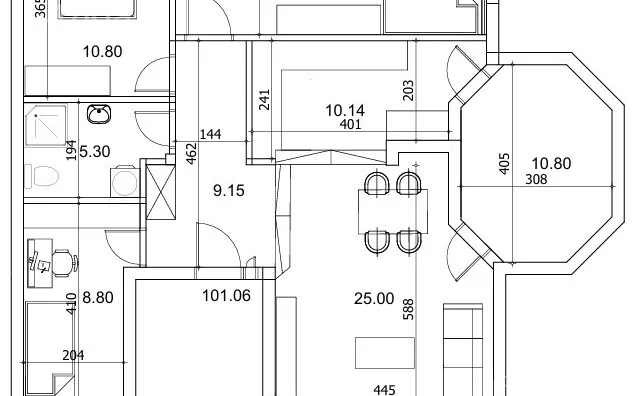
Na mirnoj lokaciji a u blizini velikih tržnih centara, prodavnica, pumpe, apoteke itd. prodaju se dva 4-sobna stana koji se nalaze u manjoj privatnoj zgradi, oba imaju po 108m2. Stanovi se sastoje od 3 spavaće sobe, ogromnog dnevnog boravka koji je otvoren prema kuhinji i trpezariji, od kupatila, wc-a i velike terase. Sve prostorije su povezane hodnikom. Stan na 1. spratu je odmah useljiv (moguća je prodaja zajedno sa nameštajem), a stan na 2. spratu je u fazi završnih radova i upravo je idealna prilika da potencijalni kupac učestvuje u izboru keramike, sanitarija, podova itd.
*Sačuvaj oglas uz belešku i primaj obaveštenja o njihovom pojeftinjenju ili pojavljivanju sličnih
Prikaz stana na mapi
Parkovi u blizini
- Park Svetog Save35 min
- Park složnih komšija41 min
- Park heroja NOB-a50 min

Obeležja kulture u blizini
- Ćele kula12 min
- Ranohrišćanska grobnica13 min
- Ranohrišćanska bazilika13 min

Škole/Fakulteti/Vrtići u blizini
- Osnovna škola (Osnovna škola Miroslav Antić)6 min
- Srednja škola (Trgovinska škola Niš)9 min
- Vrtić (Dečiji vrtić Zum-Zum)7 min
- Fakultet (Univerzitet u Nišu Prirodno matematički fakultet)13 min

- Bolnica (Bolnica Đorić)6 min
- Klinika (Poliklinika Bocokić)6 min
- Teretana (Fitness centar TNT Gym)7 min
- Prodavnica (Metla diskont)4 min
- Restoran (Garni Hotel Svrljižanka)7 min
- Kafana (Kafana Dva jarana)23 min
- Taksi stajalište (Duga taksi)37 min
- Autobuska stanica (Benzinska Stanica)2 min
- Banka (Poštanska štedionica)6 min
- Pošta (Pošta Niš 3)8 min
Kontakt oglašivača

Krediti OTP banke
Saznaj više
Prikazana rata odnosi se na maksimalni period otplate. Kalkulator je informativnog karaktera.
* Nakon isteka 5 godina, prelazi se na varijabilnu kamatnu stopu

