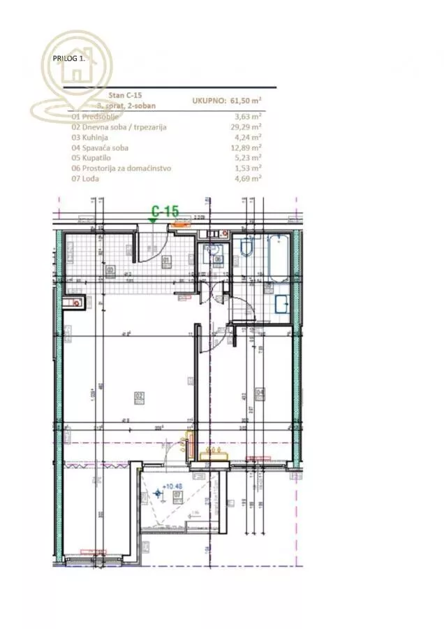
Dvoiposoban stan na prodaju, Trošarina, 202.950€, 62m²
















202.950 €
3.273 € / m2
- Stan u zgradi
- Novo
- Prostorije: terasa
- Opremljenost: Prazno - interfon, klima
- Oglas oglašava agencija pod reg. brojem 1596
- 1 garažno mesto
- 1 lift
Opis oglasa
Prodaje se moderan, neuseljavan stan u ekskluzivnom kompleksu Park Vila Residence, jednoj od najtraženijih lokacija na Voždovcu, uz sam Bulevar oslobođenja. Stan se nalazi na trećem spratu kvalitetne novogradnje, idealne za porodični život ili investiranje.
Osnovne prednosti:
• Privatno, ograđeno dvorište od 1700 m² namenjeno isključivo stanarima
• Veliki stambeni kompleks sa sadržajima koji pružaju komfor “malog grada”
• Video-nadzor i obezbeđenje 24/7
• Komercijalna garaža i kontrolisan pristup objektu
• Odlična saobraćajna povezanost i blizina škola, vrtića, fakulteta i svih važnih sadržaja
Garaža u podrumu dostupna je uz doplatu i može se kupiti zajedno sa stanom (25.000 €).
Stan je neuseljavan, odmah dostupan i spreman za uređenje po vašem ukusu.
Agencijska provizija u skladu sa opštim uslovima poslovanja.
*Sačuvaj oglas uz belešku i primaj obaveštenja o njihovom pojeftinjenju ili pojavljivanju sličnih
Prikaz stana na mapi
Kontakt oglašivača
Stambeni krediti

- Period otplate od
96 -360 meseca
- NKS 4.75%
EKS 5.74%
Fiksna kamatna stopa
- Bez troškova obrade kredita
stranici kreditnih kalkulatora
Keš krediti
Period otplate
13 meseci
