Dvoiposoban stan na prodaju, Trošarina, 82.720€, 44m²












82.720 €
1.880 € / m2
- Etažno grejanje
- Renovirano
- Prostorije: kupatilo
- Uknjiženo
- Oglas oglašava agencija pod reg. brojem 940
- 1 lift
- Zgrada poseduje: podrum
- 1 telefonska linija
Opis oglasa
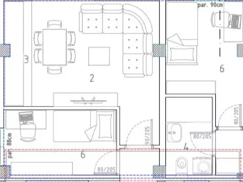
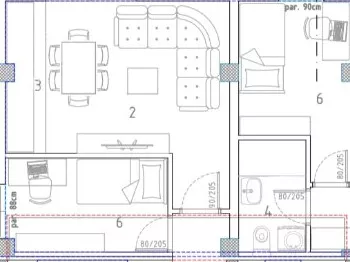
Prodaje se dvoiposoban stan u moderno dizajniranoj novogradnji na Trošarini. Površine je 44,47m2, nalazi na II spratu zgrade spratnosti Po+P+3 sa liftom. Stan je funkcionalnog rasporeda, sastoji se iz hodnika, dnevnog boravaka sa trpezarijom i kuhinjom, dve spavaće sobe i kupatila. Zgrada se gradi od visokokvalitetnih materijala, na podu je parket, stolarija je PVC profila, grejanje je putem klime uz mogućnost postavljanja podnog grejanja po dogovoru. Uz stan se dobija i pripadajuća podrumska prostorija. Postoji mogućnost kupovine parking mesta po ceni od 4.000 evra. Nalazi se na dobroj lokaciji, u neposrednoj blizini ima sve što je potrebno za miran i kvalitetan porodičan život i predstavlja dobru investiciju i za kasnije rentiranje. U cenu je uključen PDV i kupci prvog stana imaju pravo na povraćaj PDV-a u iznosu od 10%. Kupovina u ovoj fazi moguća samo za keš. Hvala Vam što ste pogledali oglas. Za više informacija o ovoj ili drugim nekretninama i zakazivanje razgledanja kontaktirajte agenta na broj telefona iz oglasa (poziv, sms, viber) ili putem e-maila. Kompletnu ponudu dostupnih nekretnina možete pronaći na našem sajtu. Agencija Proagent nekretnine je upisana u Registru posrednika pod brojem: 940.
*Sačuvaj oglas uz belešku i primaj obaveštenja o njihovom pojeftinjenju ili pojavljivanju sličnih
Prikaz stana na mapi
Parkovi u blizini
- Park Svetog Save21 min
- Park složnih komšija26 min
- Park Čair31 min

Obeležja kulture u blizini
- Zgrada Pasterovog zavoda8 min
- Vladičanski dvor11 min
- Ćele kula11 min

Škole/Fakulteti/Vrtići u blizini
- Osnovna škola (Osnovna škola Branko Miljković)4 min
- Srednja škola (Ugostiteljsko-turistička škola Niš)4 min
- Vrtić (Dečiji centar Eci peci pec)5 min
- Fakultet (Univerzitet u Nišu Prirodno matematički fakultet)6 min

- Bolnica (Opšta bolnica Sava Surgery)5 min
- Klinika (Poliklinika za laboratorijsku dijagnostiku Neolab)4 min
- Teretana (Strongman fitness center)6 min
- Prodavnica (TSV Diskont)4 min
- Restoran (Restoran Ognjište lux)3 min
- Kafana (Kafana Dva jarana)15 min
- Taksi stajalište (Duga taksi)26 min
- Autobuska stanica (Ćele kula 1)5 min
- Banka (OTP banka)5 min
- Pošta (Pošta Niš 11)15 min
Kontakt oglašivača
Krediti OTP banke
Saznaj više
Prikazana rata odnosi se na maksimalni period otplate. Kalkulator je informativnog karaktera.
* Nakon isteka 5 godina, prelazi se na varijabilnu kamatnu stopu


