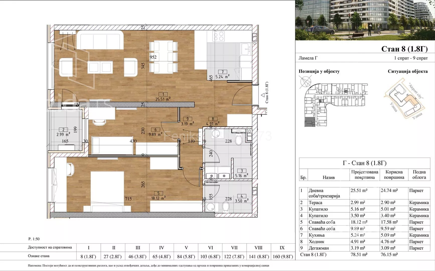
Trosoban stan na prodaju, Tošin bunar, 274.320€, 76m²
















274.320 €
3.609 € / m2
- Stan u zgradi
- Novo
- Prostorije: terasa
- Opremljenost: interfon, kanalizacija
- Oglas oglašava agencija pod reg. brojem 6
- 1 lift
- Kanalizacija
Opis oglasa
Pupinova palata na Novom Beogradu oslikava idealan spoj materijalizacije premium kvaliteta i najsavremenije tehnologije. Atraktivan izgled i moderan dizajn ovog objekta izuzetno doprinose funkcionalnosti i maksimalnoj iskorišćenosti prostora i lokacije. Odlično poslovno okruženje, koje podrazumeva blizinu nekih od najvećih biznis parkova, Pupinovu palatu čini optimalnim izborom za poslovni prostor.
Pored velikog biznis potencijala, Pupinova palata na Novom Beogradu nudi komforan i funkcionalan životni prostor, stanove namenjene svima onima koji teže sadržajnom i kvalitetnom životu u atraktivnom i dinamičnom delu prestonice.
Objekat se nalazi 50m od Airport City u neposrednoj blizini Delta City.
Cena bez PDV-a.
*Sačuvaj oglas uz belešku i primaj obaveštenja o njihovom pojeftinjenju ili pojavljivanju sličnih
Prikaz stana na mapi
Parkovi u blizini
- Dečje igralište27 min
- Park Jelovac35 min
- Park Blok 7038 min

Obeležja kulture u blizini
- Hangar Starog aerodroma na Novom Beogradu8 min
- Stara osnovna škola11 min
- Spomenik Žambilu Zambajevu14 min

Škole/Fakulteti/Vrtići u blizini
- Osnovna škola (Osnovna škola Borislav Pekić)7 min
- Srednja škola (Tehnička škola Novi Beograd)9 min
- Vrtić (Dečiji vrtić Čarobno carstvo)5 min
- Fakultet (Univerzitet u Beogradu Fakultet dramskih umetnosti)10 min

- Bolnica (Opšta bolnica Avala)7 min
- Klinika (Poliklinika Dr Sci. Hadžagić)5 min
- Teretana (Yoga studio N)4 min
- Prodavnica (Mini market Trivuk)4 min
- Restoran (Restoran Raskovnik)6 min
- Kafana (Pub Senat)20 min
- Taksi stajalište (NBA Taxi)4 min
- Autobuska stanica (Železnička Stanica Tošin Bunar)4 min
- Tramvajska stanica (Blok 23)45 min
- Banka (Addiko Bank)5 min
- Pošta (Pošta Beograd 99)8 min
Kontakt oglašivača
Krediti OTP banke
Saznaj više
Prikazana rata odnosi se na maksimalni period otplate. Kalkulator je informativnog karaktera.
* Nakon isteka 5 godina, prelazi se na varijabilnu kamatnu stopu


