Petosoban stan na prodaju, Tošin Bunar, 387.554€, 113m²
OBIĐI 3D TURU




387.554 €
3.430 € / m2
- Novo
- Prostorije: kupatila (2), toalet
- Oglas oglašava agencija pod reg. brojem 862
- Godina izgradnje: 2026.
Opis oglasa
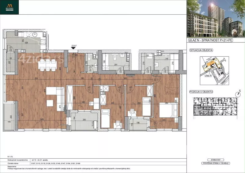
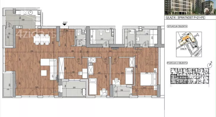
U ponudi petosoban stan površine 139,48 m², sa orijentacijom prema jugoistoku, smešten u
modernom stambenom kompleksu na atraktivnoj lokaciji u ulici Tošin bunar, Novi Beograd. Ova lokacija,
poznata po izuzetnoj povezanosti i razvijenoj infrastrukturi, smatra se novim centrom ove opštine.
Karakteristike stana:
Površina: 139,48 m²
Struktura: Petosoban stan – idealan za veće porodice ili one koji traže dodatni prostor i komfor.
Orijentacija: Jugoistočna – omogućava optimalno prirodno osvetljenje i prijatnu atmosferu tokom celog
dana.
Visok kvalitet gradnje: Korišćeni su savremeni materijali, a enterijer je luksuzno opremljen.
O kompleksu:
Projekat se realizuje u nekoliko faza i uključuje pet lamela sa različitim tipovima stanova. Kompleks nudi:
Zatvoreni park: Prostor za opuštanje sa modernim mobilijarom.
Dečije igralište: Sigurno i prilagođeno potrebama najmlađih.
Blizina sadržaja: U neposrednoj blizini nalaze se škole, vrtići, prodavnice, restorani, zdravstvene ustanove
i stanice javnog prevoza.
Cena je izražena bez PDV-a koji iznosi 10%.
Ovi stanovi pružaju savršen balans luksuza, funkcionalnosti i modernog dizajna, na jednoj od
najatraktivnijih lokacija na Novom Beogradu.
Za više informacija i zakazivanje obilaska, kontaktirajte nas!
*Sačuvaj oglas uz belešku i primaj obaveštenja o njihovom pojeftinjenju ili pojavljivanju sličnih
Prikaz stana na mapi
Parkovi u blizini
- Dečje igralište25 min
- Park Kalvarija35 min
- Park Jelovac35 min

Obeležja kulture u blizini
- Hangar Starog aerodroma na Novom Beogradu5 min
- Stara osnovna škola8 min
- Spomenik Žambilu Zambajevu12 min

Škole/Fakulteti/Vrtići u blizini
- Osnovna škola (Savremena osnovna škola)4 min
- Srednja škola (Tehnička škola Novi Beograd)6 min
- Vrtić (Dečiji vrtić Mladenac)13 min
- Fakultet (Univerzitet u Beogradu Fakultet dramskih umetnosti)8 min

- Bolnica (Opšta bolnica Avala)4 min
- Klinika (Poliklinika Dr Sci. Hadžagić)6 min
- Teretana (Fitness centar Maximus Fitness)12 min
- Prodavnica (Market Venera)4 min
- Restoran (Restoran Recept)4 min
- Kafana (Pub Senat)16 min
- Taksi stajalište (NBA Taxi)7 min
- Autobuska stanica (Železnička Stanica Tošin Bunar)3 min
- Tramvajska stanica (Blok 23)41 min
- Banka (ProCredit Bank)5 min
- Pošta (Pošta Beograd 99)5 min
Kontakt oglašivača
Krediti OTP banke
Saznaj više
Prikazana rata odnosi se na maksimalni period otplate. Kalkulator je informativnog karaktera.
* Nakon isteka 5 godina, prelazi se na varijabilnu kamatnu stopu

